Nous sommes Immprove, une grande équipe de plus de 200 experts en immobilier d’entreprise, implantés localement avec plus de 20 agences sur tout le territoire.Depuis 2009, notre proximité, notre ét ...
En savoir plus



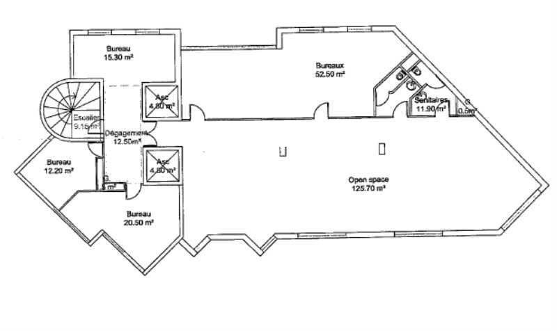
774 m² divisible dès 258 m²
HT HC
Location bureau - 774 m²
Boulogne-Billancourt (92100)
Dernière mise à jour : Il y a 18 jours
Au sein d'un immeuble de standing disposant d'une très bonne visibilité à la sortie immédiate du périphérique, Immprove vous propose plusieurs surfaces de bureaux aménagés et climatisés. Très bonne déserte en transport métro ligne 12 à 2 minutes à pied.
Plateaux traversants lumineux comprenant plusieurs bureaux fermés un grand open, une salle de réunion et coin cuisine équipé.
Impôt Foncier : 27,72 €/m²/an/HT
Régime Fiscal : T.V.A. (20%)
Dépôt de garantie : 3 mois de loyer HT HC
Honoraires : 15% HT du loyer annuel HT HC à la charge du preneur
Taxe Bureau : 25,5 €/m²/an
Prestations :
Accessibilité:
Bus MARCEL SEMBAT-METRO (123), DANJOU (126), RENE DESCARTES (175)
Métro Marcel Sembat (9)
Tram AVENUE VICTOR HUGO-MARCEL SEMBAT (T2)
Les informations sur les risques auxquels ce bien est exposé sont disponibles sur le site Géorisques : www.georisques.gouv.fr
Plateaux traversants lumineux comprenant plusieurs bureaux fermés un grand open, une salle de réunion et coin cuisine équipé.
| Étage | Type | Surfaces | Dispo | Loyer | Charges | Type de bailRév. annuelle |
|---|---|---|---|---|---|---|
| 5 | Bureaux | 258 | Immédiate | 310 m²/an HT HC | 78 m²/an HT | Bail Commercial 3-6-9 ansselon l'indice des loyers des activités tertiaires (ILAT) |
| 4 | Bureaux | 258 | 23 juillet 2025 | 310 m²/an HT HC | 78 m²/an HT | Bail Commercial 3-6-9 ansselon l'indice des loyers des activités tertiaires (ILAT) |
| 2 | Bureaux | 258 | Immédiate | 310 m²/an HT HC | 78 m²/an HT | Bail Commercial 3-6-9 ansselon l'indice des loyers des activités tertiaires (ILAT) |
| 1SS | Parkings | Immédiate | 1200 U/an HT HC | Bail Commercial 3-6-9 ansselon l'indice des loyers des activités tertiaires (ILAT) |
Impôt Foncier : 27,72 €/m²/an/HT
Régime Fiscal : T.V.A. (20%)
Dépôt de garantie : 3 mois de loyer HT HC
Honoraires : 15% HT du loyer annuel HT HC à la charge du preneur
Taxe Bureau : 25,5 €/m²/an
Prestations :
- Chauffage individuel
- 2 ascenseurs
- Climatisation
- Câblage
Accessibilité:
Bus MARCEL SEMBAT-METRO (123), DANJOU (126), RENE DESCARTES (175)
Métro Marcel Sembat (9)
Tram AVENUE VICTOR HUGO-MARCEL SEMBAT (T2)
Les informations sur les risques auxquels ce bien est exposé sont disponibles sur le site Géorisques : www.georisques.gouv.fr
Voir plus
Afficher les consommations énergétiques
Favoris
Exporter
Appeler
Contacter
Signaler cette annonce
