L’agence CBRE Nice-Sophia Antipolis conseille et accompagne les chefs d’entreprise dans leurs projets immobiliers quels que soient leur taille et leur secteur d’activité. Spécialistes de la transac ...
En savoir plus

942 m²
HT HC
Location bureau - 942 m²
Biot (06410)
Dernière mise à jour : Il y a 4 jours
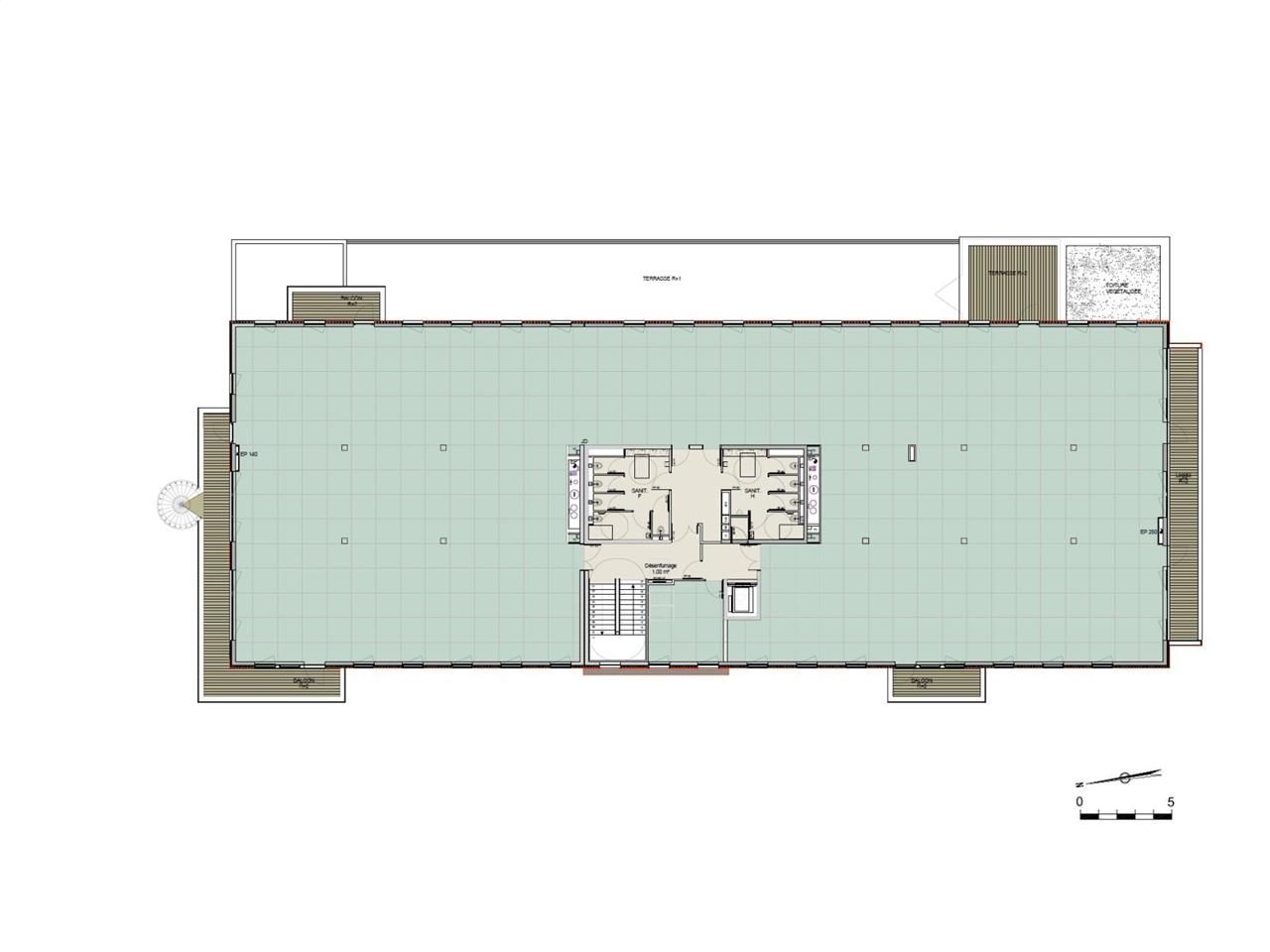
Implantez vos équipes dans un magnifique ensemble immobilier situé sur la technopole de Sophia-Antipolis (06410). CBRE vous propose des bureaux d'une surface de 942.50 m² non divisibles situés au 2ème étage avec ascenseur. Ces bureaux sont aménagés cloisonnés, climatisés et dotés de la fibre optique. Ils bénéficient de 36 places de parking. Ces bureaux sont facilement accessibles et proches de diverses commodités.
Bâtiment au Label certification HQE 9* niveau excellent
Nombreux services de proximité à moins de 5 mn : centre de vie de St Philippe : bureau de poste, restaurants, snacks, centre médical, pharmacie, supermarché, transports en commun, pistes cyclables
Si ces bureaux à louer vous intéressent n'hésitez pas à nous contacter pour organiser une visite et bénéficier de toutes les informations nécessaires pour votre projet immobilier.
Accessibilité :
Autoroute A8 (sortie 44) à 10 mn
Aéroport international de Nice à 30 mn
Transports en commun : réseau interurbain Envibus & ZOU
Régime Fiscal : T.V.A.
Dépôt de garantie : 3 mois de loyer HT/HC
Paiement Loyer : trimestriel
Honoraires : 15% HT du loyer annuel HT/HC à la charge du preneur
Prestations :
Accessibilité:
Autoroute A8 à 10 mn (sortie 44)
Bus Réseau Envibus, ZOU
Aeroport International de Nice à 20 mn
SNCF TGV/TER Antibes à 10 kms
La Poste St Philippe
Les informations sur les risques auxquels ce bien est exposé sont disponibles sur le site Géorisques : www.georisques.gouv.fr
Bâtiment au Label certification HQE 9* niveau excellent
Nombreux services de proximité à moins de 5 mn : centre de vie de St Philippe : bureau de poste, restaurants, snacks, centre médical, pharmacie, supermarché, transports en commun, pistes cyclables
Si ces bureaux à louer vous intéressent n'hésitez pas à nous contacter pour organiser une visite et bénéficier de toutes les informations nécessaires pour votre projet immobilier.
Accessibilité :
Autoroute A8 (sortie 44) à 10 mn
Aéroport international de Nice à 30 mn
Transports en commun : réseau interurbain Envibus & ZOU
| Étage | Type | Surfaces | Dispo | Loyer | Charges | Type de bailRév. annuelle |
|---|---|---|---|---|---|---|
| 2 | Bureaux | 942,5 | Immédiate | 215 m²/an HT HC | 22 HT/m²/an | 3-6-9 ansIndice ILAT |
Régime Fiscal : T.V.A.
Dépôt de garantie : 3 mois de loyer HT/HC
Paiement Loyer : trimestriel
Honoraires : 15% HT du loyer annuel HT/HC à la charge du preneur
Prestations :
- Bureaux aménagés cloisonnés
- Climatisation et chauffage réversible
- Terrasses accessibles et ombragées d'environ 91 m²
- Luminaires faux-plafonds
- Sanitaires en parties communes
- Avantages :
- Parkings : 36 places dont 17 extérieures
- Ascenseur
- Offres de services sur site : Espace coworking, conciergerie, salle séminaire, restauration
- Bâtiment au Label certification HQE 9* niveau excellent
- Label BBC EFFINERGIE 2017
- Sophia Antipolis : Le Hub Technologique qui Propulse Votre Avenir.
- Positionnez votre entreprise au centre de l'innovation dans les secteurs clés de la technologie, de la santé, de l'environnement et des smart cities. Sophia Antipolis est un catalyseur de croissance, offrant un accès privilégié aux ressources, aux financements et aux talents nécessaires pour réussir. Rejoignez un écosystème dynamique, stimulant et tourné vers l'avenir.
- Immeuble indépendant
Accessibilité:
Autoroute A8 à 10 mn (sortie 44)
Bus Réseau Envibus, ZOU
Aeroport International de Nice à 20 mn
SNCF TGV/TER Antibes à 10 kms
La Poste St Philippe
Les informations sur les risques auxquels ce bien est exposé sont disponibles sur le site Géorisques : www.georisques.gouv.fr
Voir plus
Afficher les consommations énergétiques
Favoris
Exporter
Appeler
Contacter
Signaler cette annonce










