Nous sommes Immprove, une grande équipe de plus de 200 experts en immobilier d’entreprise, implantés localement avec plus de 20 agences sur tout le territoire.Depuis 2009, notre proximité, notre ét ...
En savoir plus



584 m² divisible dès 121 m²
HT HC
LE SWAM - Location bureau - 584 m²
Lille (59000)
Dernière mise à jour : Il y a 7 jours
AU PIED DES GARES
Immeuble LE SWAM
Immprove vous propose, à proximité immédiate des gares Lille Flandres et Lille Europe, des bureaux spacieux, idéal pour votre entreprise. Ces locaux, très lumineux, offrent une vue imprenable sur le quartier d'Euralille. Il comprend un open space fonctionnel, plusieurs bureaux cloisonnés et une cuisine. Vous bénéficierez également de places de parking. Profitez de cet emplacement stratégique pour développer votre activité. N'hésitez pas à nous contacter pour plus de détails et organiser une visite ! Disponibilité immédiate.
Impôt Foncier : 23,84 €/HT/m²/an
Régime Fiscal : TVA
Dépôt de garantie : 3 mois de loyer TTC
Honoraires : 15 % HT du loyer annuel HT à la charge du Preneur
Prestations :
Accessibilité:
Autoroute Proximité accès autoroutiers
Route Proximité Grands Boulevards
SNCF Gares de Lille en pied d'immeuble
Métro Station Lille Flandres en pied d'immeuble
Bus Arrêts en pied d'immeuble
Tram Arrêt Lille Flandres à proximité
Les informations sur les risques auxquels ce bien est exposé sont disponibles sur le site Géorisques : www.georisques.gouv.fr
Immeuble LE SWAM
Immprove vous propose, à proximité immédiate des gares Lille Flandres et Lille Europe, des bureaux spacieux, idéal pour votre entreprise. Ces locaux, très lumineux, offrent une vue imprenable sur le quartier d'Euralille. Il comprend un open space fonctionnel, plusieurs bureaux cloisonnés et une cuisine. Vous bénéficierez également de places de parking. Profitez de cet emplacement stratégique pour développer votre activité. N'hésitez pas à nous contacter pour plus de détails et organiser une visite ! Disponibilité immédiate.
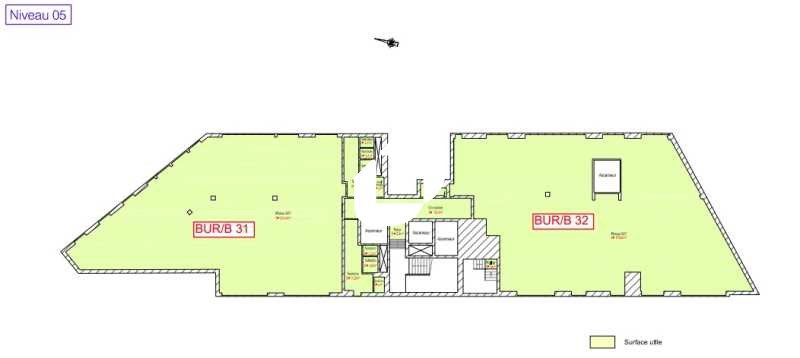
| Étage | Type | Surfaces | Dispo | Loyer | Charges | Type de bailRév. annuelle |
|---|---|---|---|---|---|---|
| 5 | Bureaux | 282 | Immédiate | 250 m²/an HT HC | 88,06 m²/an HT | Bail Commercial 3-6-9 ansIndice ILAT |
| 3 | Bureaux | 121 | Immédiate | 250 m²/an HT HC | 88,06 m²/an HT | Bail Commercial 3-6-9 ansIndice ILAT |
| RDC | Bureaux | 181 | Immédiate | 230 m²/an HT HC | 88,06 m²/an HT | Bail Commercial 3-6-9 ansIndice ILAT |
| Parkings | Immédiate | 1500 place/an HT HC | Bail Commercial 3-6-9 ansIndice ILAT |
Impôt Foncier : 23,84 €/HT/m²/an
Régime Fiscal : TVA
Dépôt de garantie : 3 mois de loyer TTC
Honoraires : 15 % HT du loyer annuel HT à la charge du Preneur
Prestations :
- Site clos
- Immeuble moderne
- Accès PMR
- Parties communes de qualité
- Ascenseur PMR
- Digicode - Interphone - Visiophone
- Accès sécurisé par badge
- Climatisation réversible
- Fibre optique
- Espace ouvert
- Bureaux cloisonnés
- Salle de réunion
- Cuisine
- Locaux traversants et lumineux
- Faux-plafonds
- Moquette
- Surface RDC : 181 m²
Accessibilité:
Autoroute Proximité accès autoroutiers
Route Proximité Grands Boulevards
SNCF Gares de Lille en pied d'immeuble
Métro Station Lille Flandres en pied d'immeuble
Bus Arrêts en pied d'immeuble
Tram Arrêt Lille Flandres à proximité
Les informations sur les risques auxquels ce bien est exposé sont disponibles sur le site Géorisques : www.georisques.gouv.fr
Voir plus
Afficher les consommations énergétiques
Localisation et transport aux alentours
Favoris
Exporter
Appeler
Contacter
Signaler cette annonce
