L’agence CBRE Bordeaux conseille et accompagne les chefs d’entreprise dans leurs projets immobiliers quels que soient leur taille et leur secteur d’activité. Spécialistes de la transaction de burea ...
En savoir plus

2 927 m²
HT HC
Location activité/entrepôt - 2927 m²
Carbon-Blanc (33560)
Dernière mise à jour : Il y a 4 jours
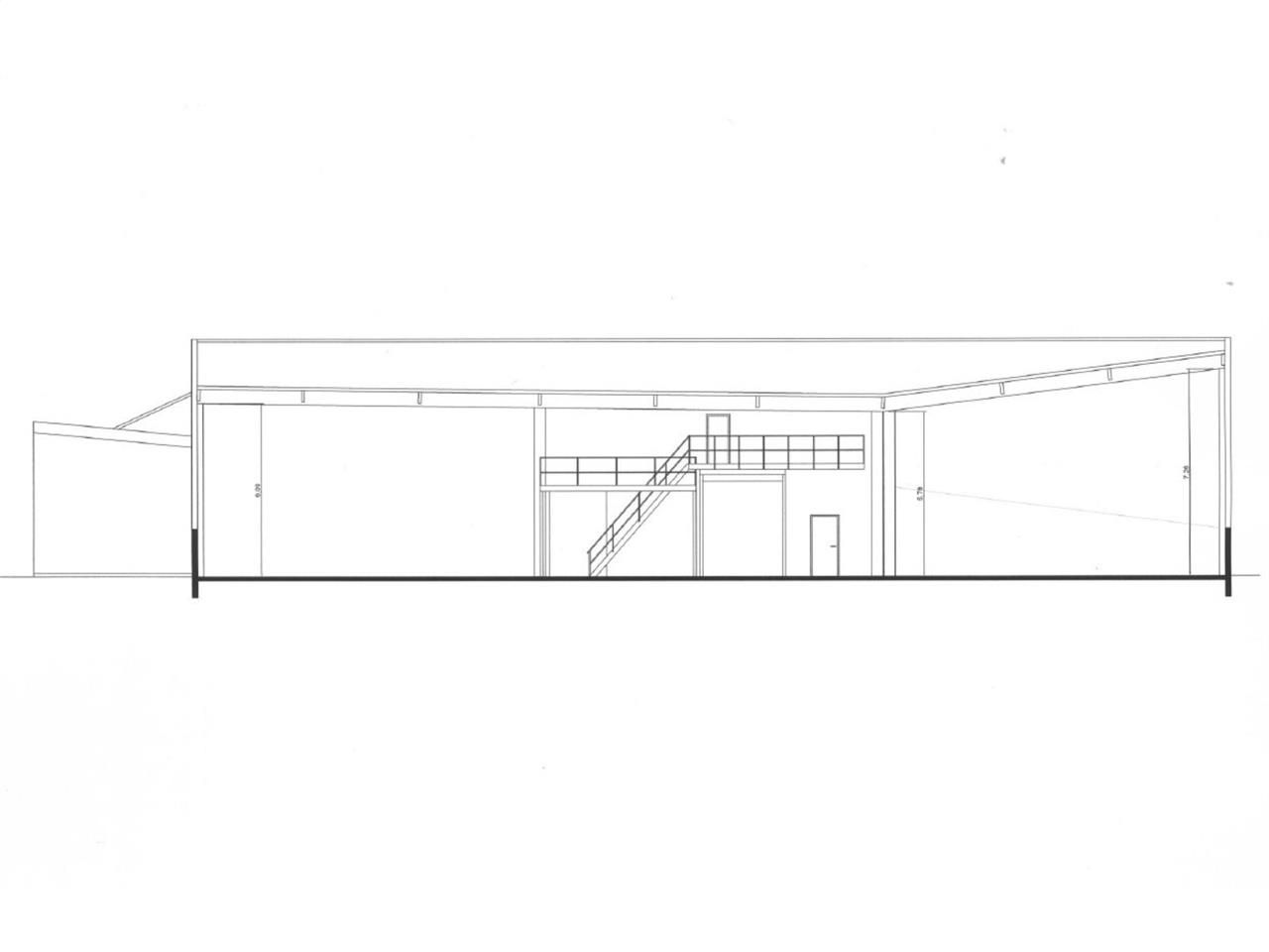
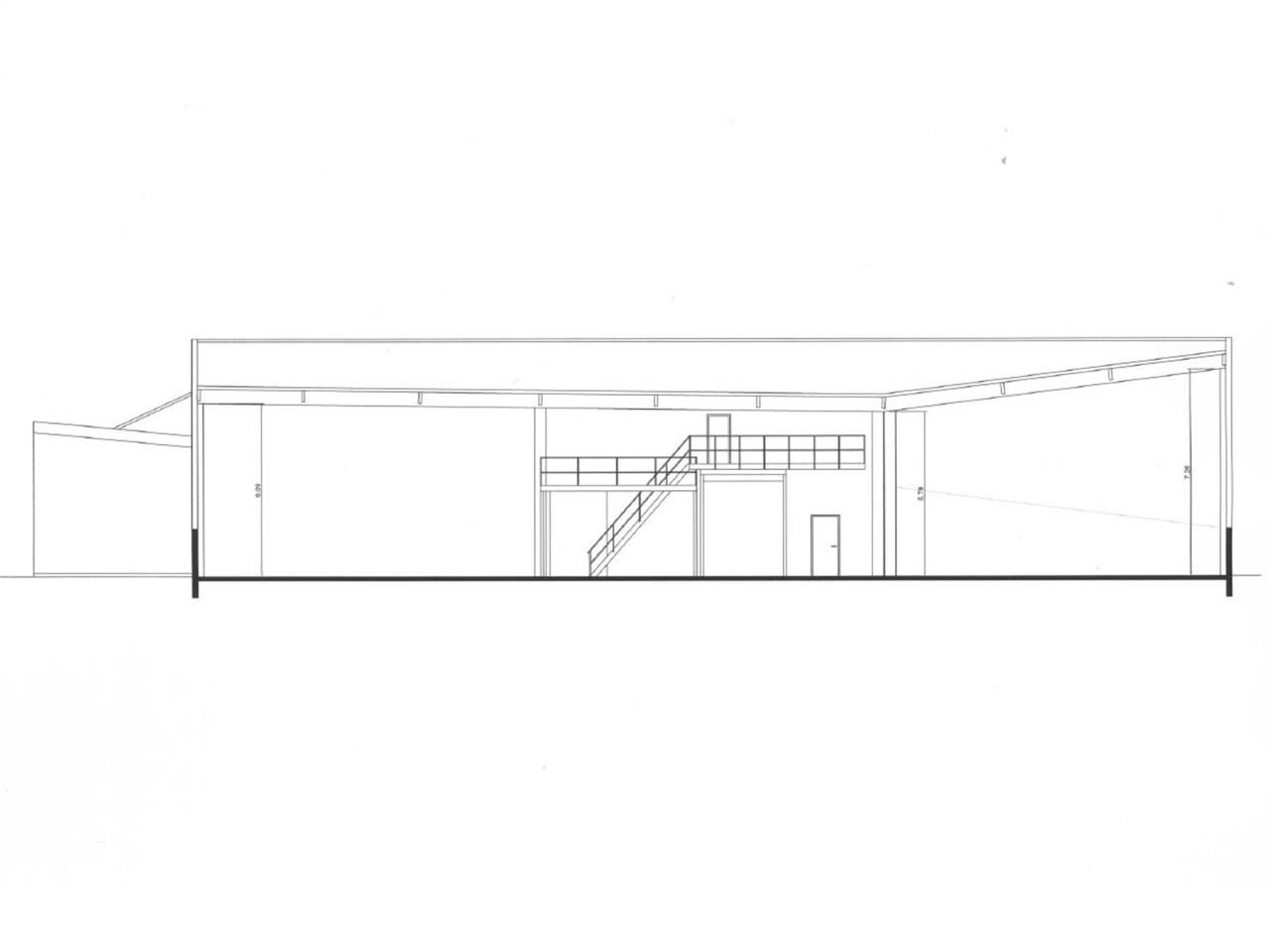
CBRE Bordeaux vous propose à la location un bâtiment indépendant sur la commune de CARBON BLANC d'une surface d'environ 2 900m² . Vous disposerez d'environ 600m2 de bureaux et locaux sociaux répartis entre le RDC et le R+1 et de 2100m2 d'espace de stockage/atelier. La partie des bureaux est à réhabiliter. Bel espace extérieur. Disponible immédiatement.
Pour plus de renseignements ou pour visiter, n'hésitez pas à nous contacter.
Impôt Foncier : 7274 €/an HT
Régime Fiscal : T.V.A.
Dépôt de garantie : 3 mois de loyer HT/HC
Honoraires : 15% HT du loyer annuel HT HC à la charge du preneur.
Prestations :
Les informations sur les risques auxquels ce bien est exposé sont disponibles sur le site Géorisques : www.georisques.gouv.fr
Pour plus de renseignements ou pour visiter, n'hésitez pas à nous contacter.
| Étage | Type | Surfaces | Dispo | Loyer | Charges | Type de bailRév. annuelle |
|---|---|---|---|---|---|---|
| RDC | Activités | 2166 | Immédiate | 61 m²/an HT HC | 3-6-9 ansIndice ILAT | |
| RDC | Bureaux | 275 | Immédiate | 61 m²/an HT HC | 3-6-9 ansIndice ILAT | |
| MEZ | Activités | 92 | Immédiate | 61 m²/an HT HC | 3-6-9 ansIndice ILAT | |
| 1 | Bureaux | 394 | Immédiate | 61 m²/an HT HC | 3-6-9 ansIndice ILAT |
Impôt Foncier : 7274 €/an HT
Régime Fiscal : T.V.A.
Dépôt de garantie : 3 mois de loyer HT/HC
Honoraires : 15% HT du loyer annuel HT HC à la charge du preneur.
Prestations :
- Bâtiment indépendant
- Places de parking
- Espace extérieur
- Triphasé
- 1 quai
- 3 portes sectionnelles
- Dalle béton quartz
- Accès PL
- Auvent
- Sanitaires
- Vestiaires
- Le loyer comprend l'aménagement des bureaux et la remise en état de l'atelier
- Bail dérogatoire possible
- Surface RDC : 2441 m²
- Haut. libre min. ss poutre : 5,78 m
- Haut. libre max. ss poutre : 7,26 m
- Ossature : Mur bardage double peau isolé
- Couverture : Bac acier isolé étanchéité multicouche
Les informations sur les risques auxquels ce bien est exposé sont disponibles sur le site Géorisques : www.georisques.gouv.fr
Voir plus
Afficher les consommations énergétiques
Favoris
Exporter
Appeler
Contacter
Signaler cette annonce










