Conseil en immobilier d'entreprise, Cushman & Wakefield est un acteur incontournable au rayonnement international. Cushman & Wakefield offre des solutions dans toutes les étapes que comporte un p ...
En savoir plus



3 980 m² divisible dès 796 m²
HT HC
Location activité/entrepôt - 3980 m²
Saint-Priest (69800)
Dernière mise à jour : Il y a 4 jours
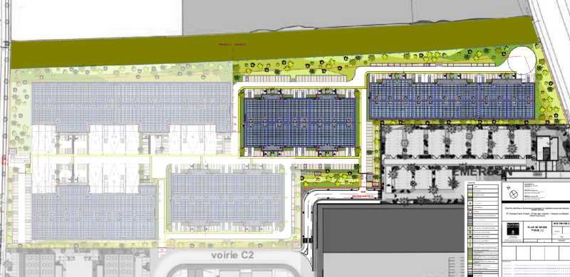
A LOUER PARC D'ACTIVITE NOUVELLE GENERATION ZAC URBAN EAST COMMUNE DE SAINT-PRIEST (69800).
A LOUER LOCAL INDUSTRIEL - SAINT PRIEST (69800)
Nous vous proposons à la location un parc d'activité neuf, réparti sur deux bâtiments au sein d'un parc clos et sécurisé. Ces locaux sont divisibles à partir de 796 m², offrant ainsi une grande flexibilité pour s'adapter à vos besoins spécifiques. Situé au coeur de la ZI MI-PLAINE, au sein de la ZAC URBAN EAST, ce parc est idéalement placé dans une zone concentrant une grande partie des activités industrielles, de stockage et artisanales. Le site bénéficie d'une accessibilité immédiate aux autoroutes A43, A46 et au boulevard périphérique Laurent Bonnevay, facilitant ainsi les déplacements et les livraisons.
Ce parc de nouvelle génération dispose de prestations de qualité et d'une certification BREEAM VERY GOOD, garantissant des standards élevés en termes de durabilité et d'efficacité énergétique.
Chaque lot est composé d'une partie bureau livrée aménagée, non cloisonnée, permettant une personnalisation selon vos besoins. La partie entrepôt est équipée d'une dalle béton industrielle avec une portance de 3t/m², assurant une robustesse et une durabilité optimales pour vos activités. De plus, chaque entrepôt dispose d'un accès de plain-pied par une porte sectionnelle de 4 x 4,5 m, facilitant les opérations de chargement et déchargement.
Hauteur libre des lots 6,8 mètres.
Chaque lot bénéficie également de ses propres places de stationnement, offrant ainsi une commodité supplémentaire pour vos employés et visiteurs. Le parc est entièrement clos et sécurisé.
En résumé, ce parc d'activité à Saint-Priest représente une opportunité exceptionnelle pour toute entreprise cherchant un espace moderne, fonctionnel et bien situé.
N'hésitez pas à nous contacter pour plus d'informations ou pour organiser une visite. Nous serons ravis de vous accompagner dans votre projet et de vous faire découvrir ce site exceptionnel.
Régime Fiscal : T.V.A.
Dépôt de garantie : 3 mois de loyer HT/HC
Paiement Loyer : Trimestriel
Honoraires : 15 % HT du loyer annuel HT/HC à la charge du preneur.
Information sur le Bail :
Loyer global E3 : 464 076,90 euros HT /HC
Prestations :
Accessibilité:
Métro Gare de Vénissieux (ligne D)
Bus TCL ligne 62 à 50 m.
Tram Europe-Université (T2) à 1 km
Accès routier A43 à 3 min
Accès routier Périph. L. Bonnevay à 5 min - Bd Urbain Est à 1 min
Les informations sur les risques auxquels ce bien est exposé sont disponibles sur le site Géorisques : www.georisques.gouv.fr
A LOUER LOCAL INDUSTRIEL - SAINT PRIEST (69800)
Nous vous proposons à la location un parc d'activité neuf, réparti sur deux bâtiments au sein d'un parc clos et sécurisé. Ces locaux sont divisibles à partir de 796 m², offrant ainsi une grande flexibilité pour s'adapter à vos besoins spécifiques. Situé au coeur de la ZI MI-PLAINE, au sein de la ZAC URBAN EAST, ce parc est idéalement placé dans une zone concentrant une grande partie des activités industrielles, de stockage et artisanales. Le site bénéficie d'une accessibilité immédiate aux autoroutes A43, A46 et au boulevard périphérique Laurent Bonnevay, facilitant ainsi les déplacements et les livraisons.
Ce parc de nouvelle génération dispose de prestations de qualité et d'une certification BREEAM VERY GOOD, garantissant des standards élevés en termes de durabilité et d'efficacité énergétique.
Chaque lot est composé d'une partie bureau livrée aménagée, non cloisonnée, permettant une personnalisation selon vos besoins. La partie entrepôt est équipée d'une dalle béton industrielle avec une portance de 3t/m², assurant une robustesse et une durabilité optimales pour vos activités. De plus, chaque entrepôt dispose d'un accès de plain-pied par une porte sectionnelle de 4 x 4,5 m, facilitant les opérations de chargement et déchargement.
Hauteur libre des lots 6,8 mètres.
Chaque lot bénéficie également de ses propres places de stationnement, offrant ainsi une commodité supplémentaire pour vos employés et visiteurs. Le parc est entièrement clos et sécurisé.
En résumé, ce parc d'activité à Saint-Priest représente une opportunité exceptionnelle pour toute entreprise cherchant un espace moderne, fonctionnel et bien situé.
N'hésitez pas à nous contacter pour plus d'informations ou pour organiser une visite. Nous serons ravis de vous accompagner dans votre projet et de vous faire découvrir ce site exceptionnel.
| Étage | Type | Surfaces | Dispo | Loyer | Charges | Type de bailRév. annuelle |
|---|---|---|---|---|---|---|
| RdC | Activités | 647 | 90 | Sur l'indice ILAT | ||
| R+1 | Bureaux | 149 | 135 | Sur l'indice ILAT | ||
| Total Cellule Lot 1 | Activités | 796 | 98,21 HT/HC/m²/an | 9,05 HT/m²/an | 3-6-9 ansSur l'indice ILAT | |
| RdC | Activités | 647 | 90 | Sur l'indice ILAT | ||
| R+1 | Bureaux | 149 | 135 | Sur l'indice ILAT | ||
| Total Cellule Lot 2 | Activités | 796 | 98,2 HT/HC/m²/an | 9,05 HT/m²/an | 3-6-9 ansSur l'indice ILAT | |
| RdC | Activités | 647 | 90 | Sur l'indice ILAT | ||
| R+1 | Bureaux | 149 | 135 | Sur l'indice ILAT | ||
| Total Cellule Lot 3 | Activités | 796 | 98,2 HT/HC/m²/an | 9,05 HT/m²/an | 3-6-9 ansSur l'indice ILAT | |
| RdC | Activités | 647 | 90 | Sur l'indice ILAT | ||
| R+1 | Bureaux | 149 | 135 | Sur l'indice ILAT | ||
| Total Cellule Lot 4 | Activités | 796 | 98,2 HT/HC/m²/an | 9,05 HT/m²/an | 3-6-9 ansSur l'indice ILAT | |
| RdC | Activités | 647 | 90 | Sur l'indice ILAT | ||
| R+1 | Bureaux | 149 | 135 | Sur l'indice ILAT | ||
| Total Cellule Lot 5 | Activités | 796 | 98,2 HT/HC/m²/an | 9,05 HT/m²/an | 3-6-9 ansSur l'indice ILAT |
Régime Fiscal : T.V.A.
Dépôt de garantie : 3 mois de loyer HT/HC
Paiement Loyer : Trimestriel
Honoraires : 15 % HT du loyer annuel HT/HC à la charge du preneur.
Information sur le Bail :
Loyer global E3 : 464 076,90 euros HT /HC
Prestations :
- Certification BREEAM Very Good
- Parc fermé et sécurisé
- Portail électrique
- Accès VL et PL
- Abris 2 roues
- Possibilité de bornes de recharge pour voitures électriques
- RT 2012
- Hauteur libre : 8 m
- Résistance au sol : 4t/m²
- Portes à quai : 2 pour la cellule 4 (E1)
- Portes plain-pied : 4 x 4,5 m
- Chauffage activité : aérotherme gaz manuel
- Chauffage bureaux : climatisation réversible par multisplit
- Éclairage LED
- Hauteur libre : 7,5 m
- Résistance au sol : 4 t/m²
- 1 porte plain-pied par cellule (4 x 4,5 m)
- Éclairage LED
- Chauffage activité : aérotherme gaz manuel
- Chauffage bureaux : climatisation réversible par multisplit
- 85 places VL pour E2 - E3 - F2
- Surface RDC : 3235 m²
Accessibilité:
Métro Gare de Vénissieux (ligne D)
Bus TCL ligne 62 à 50 m.
Tram Europe-Université (T2) à 1 km
Accès routier A43 à 3 min
Accès routier Périph. L. Bonnevay à 5 min - Bd Urbain Est à 1 min
Les informations sur les risques auxquels ce bien est exposé sont disponibles sur le site Géorisques : www.georisques.gouv.fr
Voir plus
Afficher les consommations énergétiques
Localisation et transport aux alentours
Favoris
Exporter
Appeler
Contacter
Signaler cette annonce
