Depuis 2003, KEOPS Toulouse accompagne les entreprises dans leurs projets immobiliers sur toute l’aire urbaine toulousaine.Notre équipe de professionnels passionnés met à votre service sa connaissa ...
En savoir plus

290 m²
Activité/Entrepôt à vendre - 290 m²
L'Union (31240)
Dernière mise à jour : Hier
Local d'activités rénové à vendre, idéalement situé à l'est de Toulouse
Accès : par périphérique sortie n° 13 "Borderouge" ou 14 "L'Union" Bus lignes n° 33 et 42
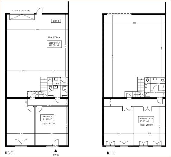
A proximité du périphérique, local d'activités d'une surface de 290 m² à vendreUne partie bureaux de 167 m² sur deux niveauxClimatisation réversibleKitchenetteSanitairesDoucheUne partie dépôt de 123 m²Dépôt avec dalle bétonPorte sectionnelleFaçades avec bardage neuf et peinture
Accès : par périphérique sortie n° 13 "Borderouge" ou 14 "L'Union" Bus lignes n° 33 et 42
A proximité du périphérique, local d'activités d'une surface de 290 m² à vendreUne partie bureaux de 167 m² sur deux niveauxClimatisation réversibleKitchenetteSanitairesDoucheUne partie dépôt de 123 m²Dépôt avec dalle bétonPorte sectionnelleFaçades avec bardage neuf et peinture
Voir plus
Afficher les consommations énergétiques
Localisation et transport aux alentours
Favoris
Exporter
Appeler
Contacter
Signaler cette annonce
