L'agence Blot Nantes - Entreprise conseille ses clients dans le cadre de leurs projets immobiliers d'achat, de vente, de location ou pour la gestion de leurs actifs (bureaux, entrepôts, locaux d'ac ...
En savoir plus

254 m²
Activité/Entrepôt à vendre - 254 m²
Pont-Saint-Martin (44860)
Dernière mise à jour : Hier
À VENDRE - LOCAL D'ACTIVITÉS 254 m² - PONT-SAINT-MARTIN
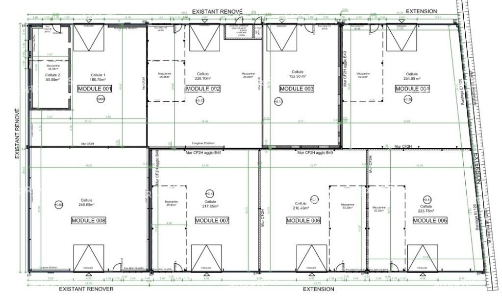
Au sein d'un parc d'activités neuf, nous vous proposons à la vente une cellule d'activités de 254,15 m², comprenant :
- 228,10 m² au sol et 26,05 m² en mezzanine (dont 22,50 m² inférieur à 1,80 m ht),
- 3 places de stationnement,
- 1 porte sectionnelle électrique.
Locaux isolés et livrés "bruts de béton", réseaux et fluides en attente. Le parc comporte 8 cellules, une fusion est possible (ici présentée, le lot 2).
Site clos et sécurisé avec aire de manoeuvres et accès poids lourds.
Les informations sur les risques naturels, miniers, ou technologiques, auxquels ces biens sont exposés, sont disponibles sur le site www.georisques.gouv.fr
Prestations :
- Ce bien est en copropriété
Couverture : Bac acier
Ossature : Métallique
Bardage : Double peau
Isolation : thermique 120 mm
Hauteur sous faîtage : 6,00 mètres
Terrain bitumé
Terrain clôturé
Portail à l'entrée du terrain : électrique - motorisé
Aire de manoeuvres
Accès poids lourds
Voirie lourde
Désenfumage
Locaux fibrés
Réseau informatique dans bâtiment
Avec stationnement(s)
Accès 4 voies immédiat
Éclairage LED
- . Exposition Nord-Est
- . Panneaux photovoltaques sur la toiture
- . Carrelage, Peinture
Année de construction : 2024
Nombre de portes sectionnelles : 1 par cellule
Etat : Locaux neufs, actuellement "bruts de béton"
Accès mobilité réduite
Tableau de Surfaces :
DPE en cours de détermination.
Cliquez ici pour le barème des honoraires.
Au sein d'un parc d'activités neuf, nous vous proposons à la vente une cellule d'activités de 254,15 m², comprenant :
- 228,10 m² au sol et 26,05 m² en mezzanine (dont 22,50 m² inférieur à 1,80 m ht),
- 3 places de stationnement,
- 1 porte sectionnelle électrique.
Locaux isolés et livrés "bruts de béton", réseaux et fluides en attente. Le parc comporte 8 cellules, une fusion est possible (ici présentée, le lot 2).
Site clos et sécurisé avec aire de manoeuvres et accès poids lourds.
Les informations sur les risques naturels, miniers, ou technologiques, auxquels ces biens sont exposés, sont disponibles sur le site www.georisques.gouv.fr
Prestations :
- Ce bien est en copropriété
Couverture : Bac acier
Ossature : Métallique
Bardage : Double peau
Isolation : thermique 120 mm
Hauteur sous faîtage : 6,00 mètres
Terrain bitumé
Terrain clôturé
Portail à l'entrée du terrain : électrique - motorisé
Aire de manoeuvres
Accès poids lourds
Voirie lourde
Désenfumage
Locaux fibrés
Réseau informatique dans bâtiment
Avec stationnement(s)
Accès 4 voies immédiat
Éclairage LED
- . Exposition Nord-Est
- . Panneaux photovoltaques sur la toiture
- . Carrelage, Peinture
Année de construction : 2024
Nombre de portes sectionnelles : 1 par cellule
Etat : Locaux neufs, actuellement "bruts de béton"
Accès mobilité réduite
Tableau de Surfaces :
| Niveau | Type de surface | Surface m² | Prix/m² |
|---|---|---|---|
| Ensemble de | Local d"activités | 254 | 1 500 |
| RDC | 228 | 1 500 | |
| Mezzanine | 26 | 1 500 |
DPE en cours de détermination.
Cliquez ici pour le barème des honoraires.
Voir plus
Afficher les consommations énergétiques
Favoris
Exporter
Appeler
Contacter
Signaler cette annonce
