Depuis 2011, FIKA Toulouse accompagne ses clients dans le cadre de leurs cessions et leurs acquisitions immobilières au sein de la métropole toulousaine pour les actifs suivants : bureaux, murs com ...
En savoir plus

600 m²
Activité/Entrepôt à vendre - 600 m²
L'Union (31240)
Dernière mise à jour : Il y a 2 jours
VEND LOCAL D'ACTIVITE 600 m² - 31240 UNION
Les informations sur les risques auxquels ce bien est exposé sont disponibles sur le site Géorisques : www.georisques.gouv.fr
Copropriété
- Bus ZI Montredon (247m) - supérieur à Lignes : 68, 106, 20, 381, 376
Disponibilité : Mars 2026
Accès plain-pied
Axe passant
Hauteur sous plafond : 7m
Nbre Parkings extérieurs : 5 places
Parking Extérieur
Porte Sectionelle : 2
Prêt à cloisonner
Stockage
Visibilité
Prix de vente : 900000 € NET VENDEUR
Honoraires à la charge de l'acquéreur : 5 % HT
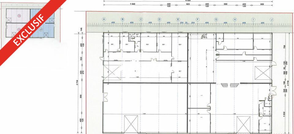
En exclusivité, cette cellule d'activité d'environ 600 m² bénéficie d'un emplacement privilégié au sein d'une zone d'activité à L'Union
Elle offre une excellente visibilité et un positionnement stratégique à proximité immédiate de l'autoroute A68.
Il est possible de diviser ce local de 600 m² en deux cellules distinctes de 300 m² chacun ou trois cellules de 200 m², disponibles à l'acquisition. La livraison des travaux est prévue pour la fin du premier semestre 2026.
Conditions financières :
Honoraires en sus : 5 % HT à la charge de l'acquéreur
Les informations sur les risques auxquels ce bien est exposé sont disponibles sur le site Géorisques : www.georisques.gouv.fr
Copropriété
- Bus ZI Montredon (247m) - supérieur à Lignes : 68, 106, 20, 381, 376
Disponibilité : Mars 2026
Accès plain-pied
Axe passant
Hauteur sous plafond : 7m
Nbre Parkings extérieurs : 5 places
Parking Extérieur
Porte Sectionelle : 2
Prêt à cloisonner
Stockage
Visibilité
Prix de vente : 900000 € NET VENDEUR
Honoraires à la charge de l'acquéreur : 5 % HT
| surface | prix vente | prix vente m2 | disponibilité |
| 600 m² | 900 000 € net vendeur | 1500 €/m² | mars 2026 |
| 300 m² | 450 000 € net vendeur | 1500 €/m² | mars 2026 |
| 200 m² | 300 000 € net vendeur | 1500 €/m² | mars 2026 |
Voir plus
Afficher les consommations énergétiques
Favoris
Exporter
Appeler
Contacter
Signaler cette annonce
