MALSH Realty accompagne les entreprises dans leurs projets immobiliers, qu’il s’agisse de locaux d’activités, de bureaux, de commerces, d’entrepôts ou de terrains. L’agence intervient aussi bien au ...
En savoir plus

715 m²
HT HC
Location activité/entrepôt - 715 m²
Vénissieux (69200)
Dernière mise à jour : Il y a 2 jours
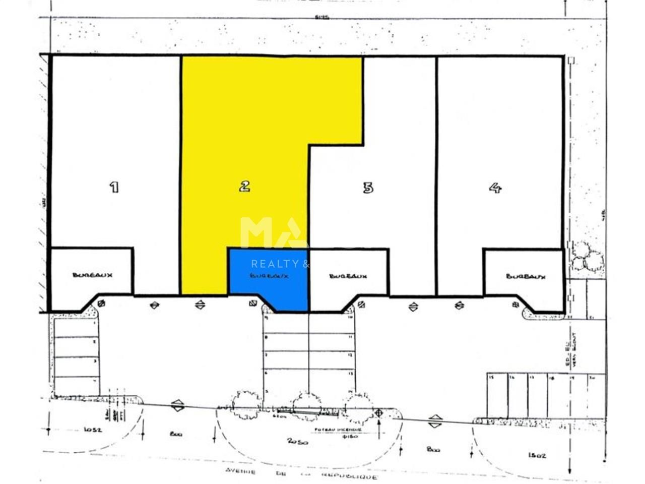
Local d'Activités à VENISSIEUX - A LOUER - 715 m²
Au sein d'un parc d'activités, nous vous proposons à la location, un local d'activités d'une surface totale d'environ 715 m² comprenant 249 m² d'activités toute hauteur, 226 m² de petite activité, vestiaires et autres surface, et 240 m² de bureaux. Ce bien bénéficie d'une bande de terrain de 88 m² à l'arrière du bâtiment et de 5 emplacements de parking.
Location Local d'Activités - Vénissieux (69200) - 715 m²
Impôt Foncier : 4355 €/HT/an
Régime Fiscal : T.V.A. (20%)
Dépôt de garantie : 3 mois de loyer HT/HC
Honoraires : 20 % HT du loyer annuel HT à la charge du preneur, payables à la signature du bail
Prestations :
Accessibilité:
Route A proximité du Boulevard Périphérique Laurent Bonnevay. Raccordement rapide à l'A7
Bus Bus TCL lignes C12, 35 et 93
Les informations sur les risques auxquels ce bien est exposé sont disponibles sur le site Géorisques : www.georisques.gouv.fr
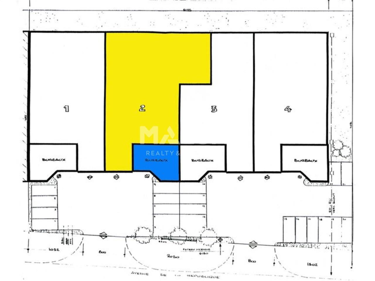
Au sein d'un parc d'activités, nous vous proposons à la location, un local d'activités d'une surface totale d'environ 715 m² comprenant 249 m² d'activités toute hauteur, 226 m² de petite activité, vestiaires et autres surface, et 240 m² de bureaux. Ce bien bénéficie d'une bande de terrain de 88 m² à l'arrière du bâtiment et de 5 emplacements de parking.
Location Local d'Activités - Vénissieux (69200) - 715 m²
| Étage | Type | Surfaces | Dispo | Loyer | Charges | Type de bailRév. annuelle |
|---|---|---|---|---|---|---|
| Activités | 249 | ILAT Indice des Loyers des Activités Tertiaires | ||||
| Bureaux | 240 | ILAT Indice des Loyers des Activités Tertiaires | ||||
| Activités | 226 | ILAT Indice des Loyers des Activités Tertiaires | ||||
| Parkings | ILAT Indice des Loyers des Activités Tertiaires | |||||
| Total Cellule 2 | Activités | 715 | Immédiate | 55,94 HT/HC/m²/an | 3420 HT/an | commercial 3-6-9 ansILAT Indice des Loyers des Activités Tertiaires |
Impôt Foncier : 4355 €/HT/an
Régime Fiscal : T.V.A. (20%)
Dépôt de garantie : 3 mois de loyer HT/HC
Honoraires : 20 % HT du loyer annuel HT à la charge du preneur, payables à la signature du bail
Prestations :
- Accès de plain-pied / Accès semi
- Porte sectionnelle
- 5 emplacements de parking extérieurs
- Bande de terrain d'une contenance de 88 m² à l'arrière du bâtiment
Accessibilité:
Route A proximité du Boulevard Périphérique Laurent Bonnevay. Raccordement rapide à l'A7
Bus Bus TCL lignes C12, 35 et 93
Les informations sur les risques auxquels ce bien est exposé sont disponibles sur le site Géorisques : www.georisques.gouv.fr
5 Parkings ext.
Voir plus
Afficher les consommations énergétiques
Localisation et transport aux alentours
Favoris
Exporter
Appeler
Contacter
Signaler cette annonce










