L’agence CBRE Nice-Sophia Antipolis conseille et accompagne les chefs d’entreprise dans leurs projets immobiliers quels que soient leur taille et leur secteur d’activité. Spécialistes de la transac ...
En savoir plus

950 m²
HT HC
Location activité/entrepôt - 950 m²
Vallauris (06220)
Dernière mise à jour : Aujourd'hui
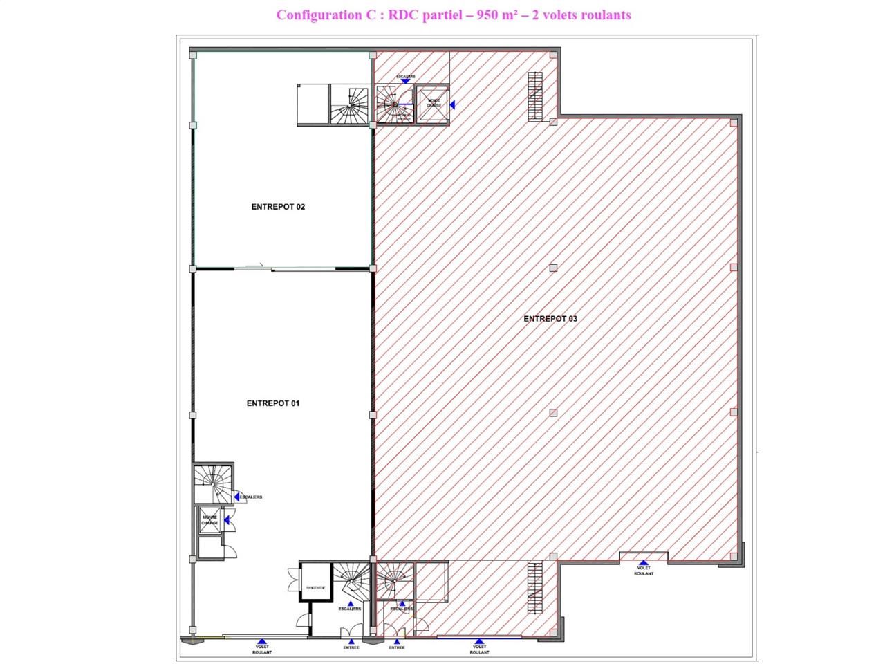
A LOUER LOCAL D'ACTIVITE 950 m²
Situés sur la zone commerciale de St Bernard à Vallauris (06220), CBRE vous propose à la location des locaux d'environ 950 m². lls bénéficient d'un accès de plain-pied, d'un accès poids-lourds (voirie adaptée aux semi-remorques) et d'une hauteur de 5.5 mètres pour l'entrepôt. De plus, les 9 places de parking privatives ajoutent une valeur supplémentaire.
Cet environnement offre de nombreux avantages, tels que la proximité des accès autoroutiers, des commerces, d'un supermarché, des services et des transports en commun.
Surfaces flexibles - plusieurs configurations possibles :
RDC complet 1 480 m² + 14 parkings - 3 volets roulants ou
R+1 : 702 m² + 7 parkings - 1 portes d'accès + 1 escalier au Rdc ou
2 182 m² (1 480M2 RDC+ 702M2R+1) - 21 parkings - 1 monte-charge, 1 ascenseur, 3 volets roulants, 3 escaliers et 1 accèsR+1.
Si vous êtes intéressés par ces locaux à louer n'hésitez pas à nous contacter pour planifier une visite et obtenir toutes les informations requises pour votre projet immobilier.
Accessibilité :
Autoroute A8 à 10 mn (sortie 44)
A 20 mn de l'aéroport international de Nice
Bus : réseau urbain
Gare TGV/TER d'Antibes à 15 mn
Impôt Foncier : 14 €/HT/m²/an
Régime Fiscal : T.V.A.
Dépôt de garantie : 3 mois de loyer HT/HC
Paiement Loyer : trimestriel
Honoraires : 15% HT du loyer annuel HT/HC à la charge du preneur
Prestations :
Accessibilité:
Autoroute A8 à 5 mn
Aeroport Internatinal de Nice à 20 mn
Bus Réseau urbain
Les informations sur les risques auxquels ce bien est exposé sont disponibles sur le site Géorisques : www.georisques.gouv.fr
Situés sur la zone commerciale de St Bernard à Vallauris (06220), CBRE vous propose à la location des locaux d'environ 950 m². lls bénéficient d'un accès de plain-pied, d'un accès poids-lourds (voirie adaptée aux semi-remorques) et d'une hauteur de 5.5 mètres pour l'entrepôt. De plus, les 9 places de parking privatives ajoutent une valeur supplémentaire.
Cet environnement offre de nombreux avantages, tels que la proximité des accès autoroutiers, des commerces, d'un supermarché, des services et des transports en commun.
Surfaces flexibles - plusieurs configurations possibles :
RDC complet 1 480 m² + 14 parkings - 3 volets roulants ou
R+1 : 702 m² + 7 parkings - 1 portes d'accès + 1 escalier au Rdc ou
2 182 m² (1 480M2 RDC+ 702M2R+1) - 21 parkings - 1 monte-charge, 1 ascenseur, 3 volets roulants, 3 escaliers et 1 accèsR+1.
Si vous êtes intéressés par ces locaux à louer n'hésitez pas à nous contacter pour planifier une visite et obtenir toutes les informations requises pour votre projet immobilier.
Accessibilité :
Autoroute A8 à 10 mn (sortie 44)
A 20 mn de l'aéroport international de Nice
Bus : réseau urbain
Gare TGV/TER d'Antibes à 15 mn
| Étage | Type | Surfaces | Dispo | Loyer | Charges | Type de bailRév. annuelle |
|---|---|---|---|---|---|---|
| RDC | Activités | 950 | Immédiate | 130 m²/an HT HC | 16 HT/m²/an | 3-6-9 ansIndice INSEE du Coût de la Construction |
Impôt Foncier : 14 €/HT/m²/an
Régime Fiscal : T.V.A.
Dépôt de garantie : 3 mois de loyer HT/HC
Paiement Loyer : trimestriel
Honoraires : 15% HT du loyer annuel HT/HC à la charge du preneur
Prestations :
- Surface d'environ 950m² en RDC
- Hauteur sous plafond de 5,5 m
- Charge au sol : 2 T/m²
- Deux volets roulant de 6m
- Accès poids-lourds - voie adaptée aux semi-remorques
- Parking : 9 places privatives
- Immeuble indépendant
- Surface RDC : 950 m²
Accessibilité:
Autoroute A8 à 5 mn
Aeroport Internatinal de Nice à 20 mn
Bus Réseau urbain
Les informations sur les risques auxquels ce bien est exposé sont disponibles sur le site Géorisques : www.georisques.gouv.fr
Voir plus
Afficher les consommations énergétiques
Favoris
Exporter
Appeler
Contacter
Signaler cette annonce
