L’agence CBRE Nice-Sophia Antipolis conseille et accompagne les chefs d’entreprise dans leurs projets immobiliers quels que soient leur taille et leur secteur d’activité. Spécialistes de la transac ...
En savoir plus

530 m²
HT HC
Location activité/entrepôt - 530 m²
Vallauris (06220)
Dernière mise à jour : Il y a 2 jours
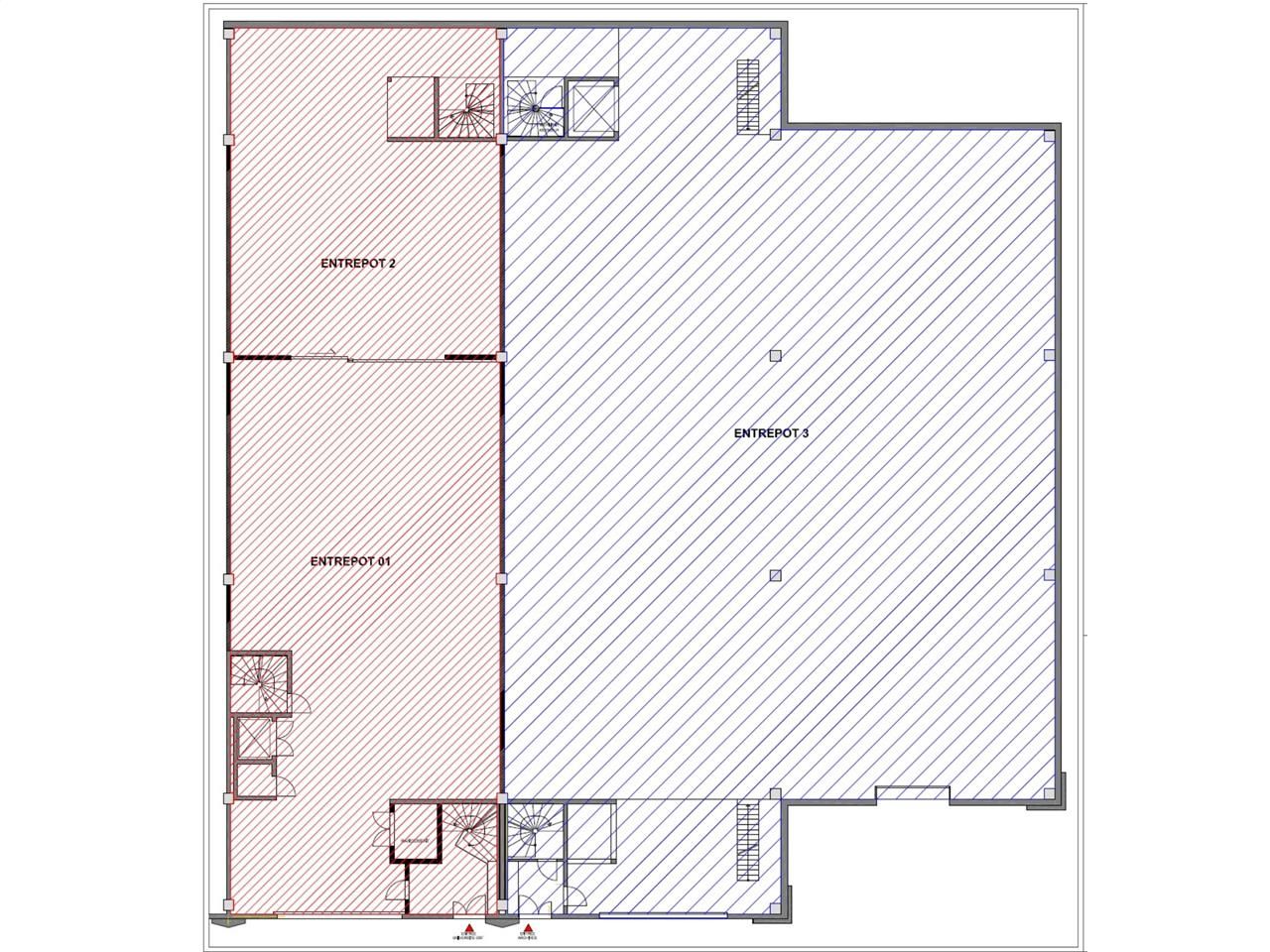
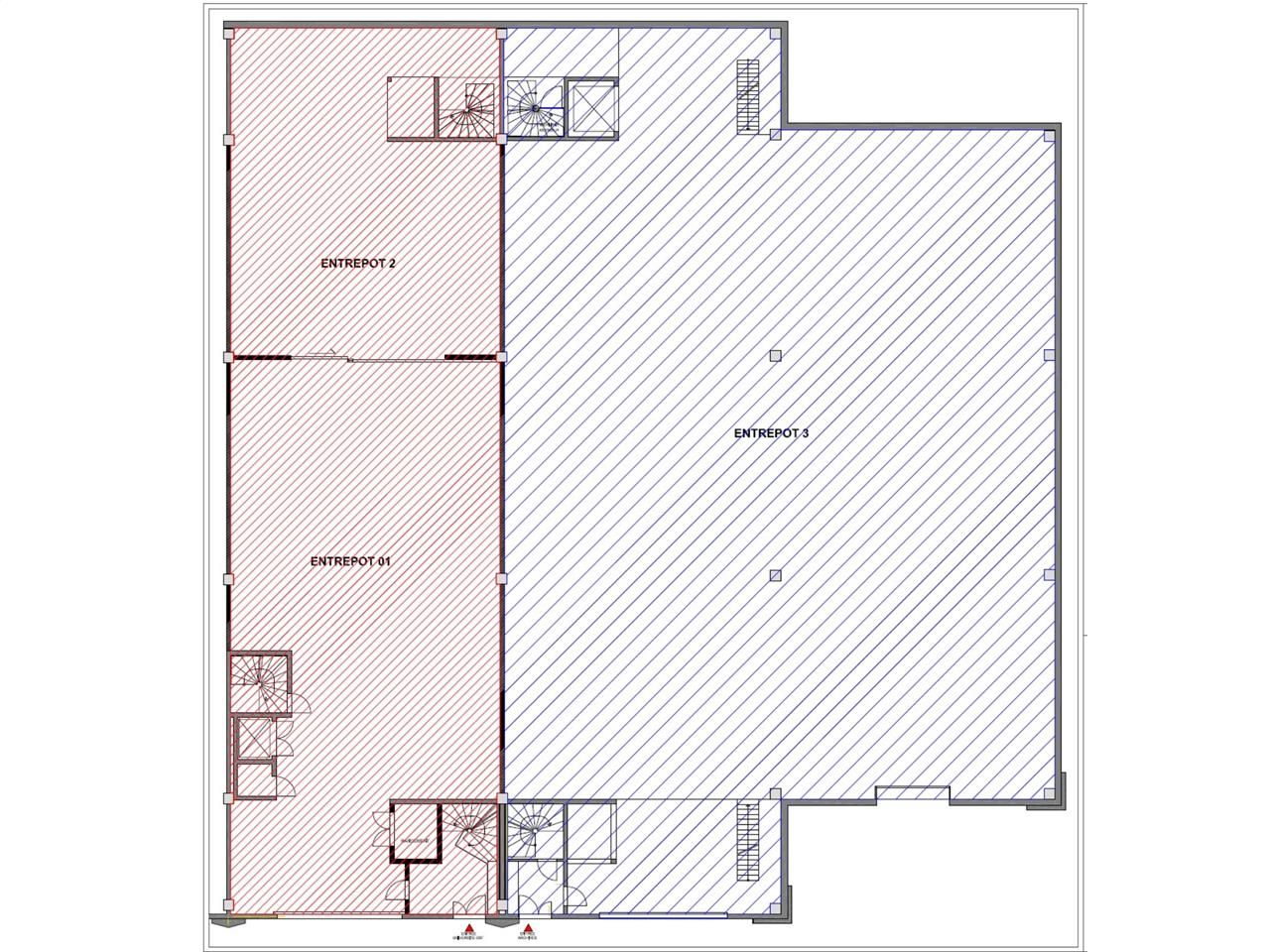
LOCAL D'ACTIVITE 530 m²
Situés sur la zone commerciale de St Bernard à Vallauris (06220), CBRE vous propose à la location des locaux d'environ 530 m². lls bénéficient d'un accès de plain-pied, d'un accès poids-lourds (voirie adaptée aux semi-remorques) et d'une hauteur de 5.5 mètres pour l'entrepôt. De plus, les 5 places de parking privatives ajoutent une valeur supplémentaire.
Cet environnement offre de nombreux avantages, tels que la proximité des accès autoroutiers, des commerces, d'un supermarché, des services et des transports en commun.
Surfaces flexibles - plusieurs configurations possibles :
RDC complet 1 480 m² + 14 parkings - 3 volets roulants ou
R+1 : 702 m² + 7 parkings - 1 portes d'accès + 1 escalier au Rdc ou
2 182 m² (1 480M2 RDC+ 702M2R+1) - 21 parkings - 1 monte-charge, 1 ascenseur, 3 volets roulants, 3 escaliers et 1 accèsR+1.
Si vous êtes intéressés par ces locaux à louer n'hésitez pas à nous contacter pour planifier une visite et obtenir toutes les informations requises pour votre projet immobilier.
Accessibilité :
Autoroute A8 à 10 mn (sortie 44)
A 20 mn de l'aéroport international de Nice
Bus : réseau urbain ENVIBUS
Gare TGV/TER d'Antibes à 15 mn
Impôt Foncier : 14 €/HT/m²/an
Régime Fiscal : T.V.A.
Dépôt de garantie : 3 mois de loyer HT/HC
Paiement Loyer : trimestriel
Honoraires : 15% HT du loyer annuel HT/HC à la charge du preneur
Prestations :
Accessibilité:
Autoroute A8 à 5 mn
Aeroport Internatinal de Nice à 20 mn
Bus Réseau urbain
Les informations sur les risques auxquels ce bien est exposé sont disponibles sur le site Géorisques : www.georisques.gouv.fr
Situés sur la zone commerciale de St Bernard à Vallauris (06220), CBRE vous propose à la location des locaux d'environ 530 m². lls bénéficient d'un accès de plain-pied, d'un accès poids-lourds (voirie adaptée aux semi-remorques) et d'une hauteur de 5.5 mètres pour l'entrepôt. De plus, les 5 places de parking privatives ajoutent une valeur supplémentaire.
Cet environnement offre de nombreux avantages, tels que la proximité des accès autoroutiers, des commerces, d'un supermarché, des services et des transports en commun.
Surfaces flexibles - plusieurs configurations possibles :
RDC complet 1 480 m² + 14 parkings - 3 volets roulants ou
R+1 : 702 m² + 7 parkings - 1 portes d'accès + 1 escalier au Rdc ou
2 182 m² (1 480M2 RDC+ 702M2R+1) - 21 parkings - 1 monte-charge, 1 ascenseur, 3 volets roulants, 3 escaliers et 1 accèsR+1.
Si vous êtes intéressés par ces locaux à louer n'hésitez pas à nous contacter pour planifier une visite et obtenir toutes les informations requises pour votre projet immobilier.
Accessibilité :
Autoroute A8 à 10 mn (sortie 44)
A 20 mn de l'aéroport international de Nice
Bus : réseau urbain ENVIBUS
Gare TGV/TER d'Antibes à 15 mn
| Étage | Type | Surfaces | Dispo | Loyer | Charges | Type de bailRév. annuelle |
|---|---|---|---|---|---|---|
| RDC | Activités | 530 | Immédiate | 130 m²/an HT HC | 8480 HT/an | 3-6-9 ansIndice INSEE du Coût de la Construction |
Impôt Foncier : 14 €/HT/m²/an
Régime Fiscal : T.V.A.
Dépôt de garantie : 3 mois de loyer HT/HC
Paiement Loyer : trimestriel
Honoraires : 15% HT du loyer annuel HT/HC à la charge du preneur
Prestations :
- Surface d'environ 530m² en RDC
- Hauteur sous plafond de 5,5 m
- Charge au sol : 2 T/m²
- Un volet roulant de 6m
- Accès poids-lourds - voie adaptée aux semi-remorques
- Parking : 5 places privatives
- Immeuble indépendant
- Surface RDC : 530 m²
- Haut. libre min. ss poutre : 5,5 m
- Résistance sol : 2 T/m²
Accessibilité:
Autoroute A8 à 5 mn
Aeroport Internatinal de Nice à 20 mn
Bus Réseau urbain
Les informations sur les risques auxquels ce bien est exposé sont disponibles sur le site Géorisques : www.georisques.gouv.fr
Voir plus
Afficher les consommations énergétiques
Favoris
Exporter
Appeler
Contacter
Signaler cette annonce










