Avec près de 80 implantations en France, Arthur Loyd est le premier Réseau National de Conseil en Immobilier d’Entreprise. Nous vous accompagnons dans vos projets sur l’ensemble du territoire natio ...
En savoir plus

1 369 m²
Loyer sur demande
Location activité/entrepôt - 1369 m²
Sotteville-lès-Rouen (76300)
Dernière mise à jour : Hier
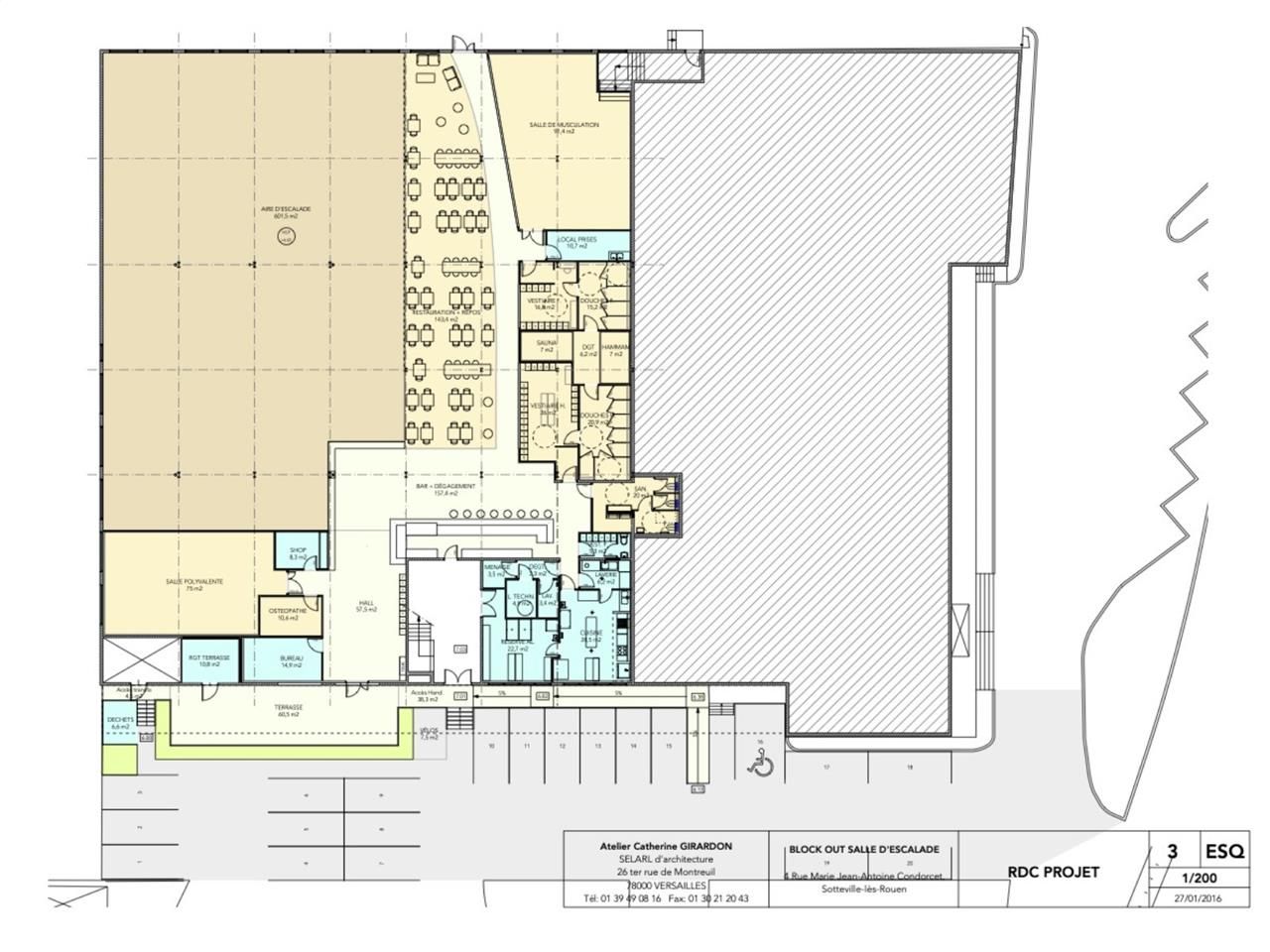
Produit Rare - Belle visibilité commerciale - Local d'activité ERP de 1 368 m² avec accès PMR, vestiaires, terrasse et parking, idéal pour loisirs, commerce ou artisanat.
Impôt Foncier : 13000 €//an HT
Dépôt de garantie : 3 mois de loyer HT/HC
Prestations :
Accessibilité:
Bus Lignes 27, 41, F3, F7.
Autoroute Accès direct au Boulevard industriel axe majeur de l'agglomération reliant Rouen, Sotteville les Rouen et Saint Etienne du Rouvray à l'A13 en Direction de Paris Caen et Le Havre
Autoroute Axe à passage intensif dans une zone d'activité stratégique.
SNCF Gare de Rouen Rive Droite et Gare de Oissel à 5 km
Les informations sur les risques auxquels ce bien est exposé sont disponibles sur le site Géorisques : www.georisques.gouv.fr
| Étage | Type | Surfaces | Dispo | Loyer | Charges | Type de bailRév. annuelle |
|---|---|---|---|---|---|---|
| RDC | Hall | 660 | ||||
| RDC | Restaurant | 392 | ||||
| RDC | Sanitaires | 130 | ||||
| RDC | Bureaux | 108,8 | ||||
| RDC | Cuisine | 78 | ||||
| Total Cellule | Activités | 1368,8 | Immédiate |
Impôt Foncier : 13000 €//an HT
Dépôt de garantie : 3 mois de loyer HT/HC
Prestations :
- ERP : 5ème catégorie
- Situé au coeur de la Zone Industrielle de Sotteville et bénéficiant d'une belle visibilité commerciale sur le Boulevard Industriel.
- Au sein d'un ensemble immobilier mixte Bureaux et Activité, ce local de 1 368 m² est désormais disponible suite à la fermeture d'un centre de loisirs d'escalade et d'une petite restauration ayant opéré avec succès pendant de nombreuses années.
- Aménagements fonctionnels :
- Accès PMR / Rampe aux normes
- Sortie de secours
- Vestiaires séparés Hommes / Femmes, dotés de douches et sanitaires.
- Système de chauffage adapté via gaines textiles sous toiture, avec chaudière installée.
- Cuisine carrelée (sans équipements) pouvant être adaptée selon vos besoins.
- Petits bureaux intégrés dans l'espace principal
- Espaces extérieurs valorisants :
- Terrasse privative aménagée
- Stationnement clientèle en façade
- Charges locatives : 16.800 euros
- Impôt Foncier
- Entretien des espaces verts et vérification de toiture
- Quotepart assurance bailleur
- Surface RDC : 1500 m²
- Haut. libre min. ss poutre : 6,5 m
- Ossature : Métallique
- Murs périmétriques : Parpaing
- Couverture : Bac acier isolé
Accessibilité:
Bus Lignes 27, 41, F3, F7.
Autoroute Accès direct au Boulevard industriel axe majeur de l'agglomération reliant Rouen, Sotteville les Rouen et Saint Etienne du Rouvray à l'A13 en Direction de Paris Caen et Le Havre
Autoroute Axe à passage intensif dans une zone d'activité stratégique.
SNCF Gare de Rouen Rive Droite et Gare de Oissel à 5 km
Les informations sur les risques auxquels ce bien est exposé sont disponibles sur le site Géorisques : www.georisques.gouv.fr
Voir plus
Afficher les consommations énergétiques
Localisation et transport aux alentours
Favoris
Exporter
Appeler
Contacter
Signaler cette annonce
