Nous sommes Immprove, une grande équipe de plus de 200 experts en immobilier d’entreprise, implantés localement avec plus de 20 agences sur tout le territoire.Depuis 2009, notre proximité, notre ét ...
En savoir plus

263 m²
HT HC
Location activité/entrepôt - 263 m²
Saint-Herblain (44800)
Dernière mise à jour : Il y a 7 jours
LOCAUX NEUFS ZONE INDUSTRIELLE ATLANTIS
IMMPROVE vous propose au sein d'un parc d'activité dans la zone de St Herblain nous vous proposons une cellule neuve. Avec une surface totale de 623 m². Ces espaces offrent une flexibilité idéale pour répondre aux besoins spécifiques de votre entreprise. Bénéficiant d'une situation stratégique, ces locaux offrent un accès facile aux principaux axes routiers et aux transports en commun.
Dotés de prestations de qualité, incluant des parkings privatifs, une sécurité renforcée et des espaces modulables, ces locaux représentent l'opportunité parfaite pour développer votre activité dans un environnement professionnel et dynamique.
Régime Fiscal : T.V.A. (20%)
Dépôt de garantie : 3 mois de loyer HT HC
Honoraires : 25 % HT du loyer annuel HT HC à la charge du preneur
Prestations :
Accessibilité:
SNCF Gare de Nantes - 30 min
Autoroute A11/A811
Route N444
Tram Ligne 1 - Arrêt Mitterrand
Les informations sur les risques auxquels ce bien est exposé sont disponibles sur le site Géorisques : www.georisques.gouv.fr
IMMPROVE vous propose au sein d'un parc d'activité dans la zone de St Herblain nous vous proposons une cellule neuve. Avec une surface totale de 623 m². Ces espaces offrent une flexibilité idéale pour répondre aux besoins spécifiques de votre entreprise. Bénéficiant d'une situation stratégique, ces locaux offrent un accès facile aux principaux axes routiers et aux transports en commun.
Dotés de prestations de qualité, incluant des parkings privatifs, une sécurité renforcée et des espaces modulables, ces locaux représentent l'opportunité parfaite pour développer votre activité dans un environnement professionnel et dynamique.
| Étage | Type | Surfaces | Dispo | Loyer | Charges | Type de bailRév. annuelle |
|---|---|---|---|---|---|---|
| RDC | Activités | 263 | Immédiate | 90 m²/an HT HC | Bail Commercial 3-6-9 ansselon l'indice des loyers des activités tertiaires (ILAT) |
Régime Fiscal : T.V.A. (20%)
Dépôt de garantie : 3 mois de loyer HT HC
Honoraires : 25 % HT du loyer annuel HT HC à la charge du preneur
Prestations :
- Immeuble restructuré
- Immeuble récent
- Façade en bardage
- Accès véhicules légers
- Accès poids lourds
- Aire de manoeuvre
- Portail d'accès
- Neuf/Restructuré
- Rénové
- Charge au sol : 2 tonnes / m²
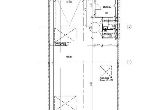
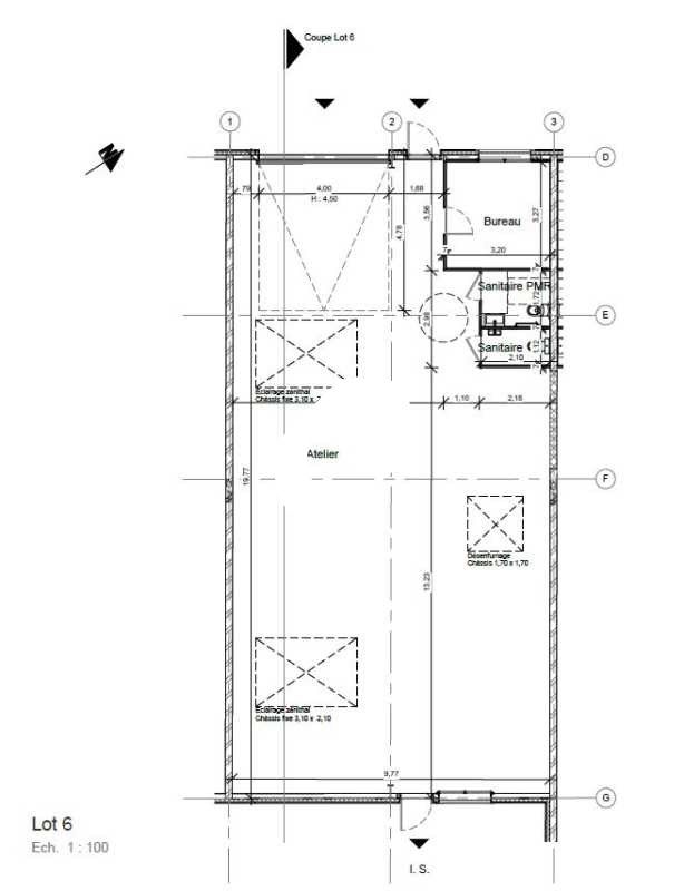
- Hauteur libre : 5 m
- Porte sectionnelle de plain-pied : 1 -ouveture manuelle
- Dimensions porte : 4.5 (H) x4 (L) m
- Puissance électrique : 36kVA
- Bureaux : carrelage en grès Cérame
- Faux plafonds
- Chauffage électrique type panneaux rayonnants
- Tarif bleu
- Immeuble indépendant
- Surface RDC : 263 m²
- Surface terrain : 0
Accessibilité:
SNCF Gare de Nantes - 30 min
Autoroute A11/A811
Route N444
Tram Ligne 1 - Arrêt Mitterrand
Les informations sur les risques auxquels ce bien est exposé sont disponibles sur le site Géorisques : www.georisques.gouv.fr
Voir plus
Afficher les consommations énergétiques
Localisation et transport aux alentours
Favoris
Exporter
Appeler
Contacter
Signaler cette annonce










