Spécialiste du département de la Loire Atlantique, Arthur Loyd Nantes / Saint-Nazaire est un cabinet de conseil en immobilier d'entreprise actif depuis plus de 20 ans. Son équipe de consultants acc ...
En savoir plus

1 990 m²
HT HC
Location activité/entrepôt - 1990 m²
Saint-Herblain (44800)
Dernière mise à jour : Il y a 2 jours
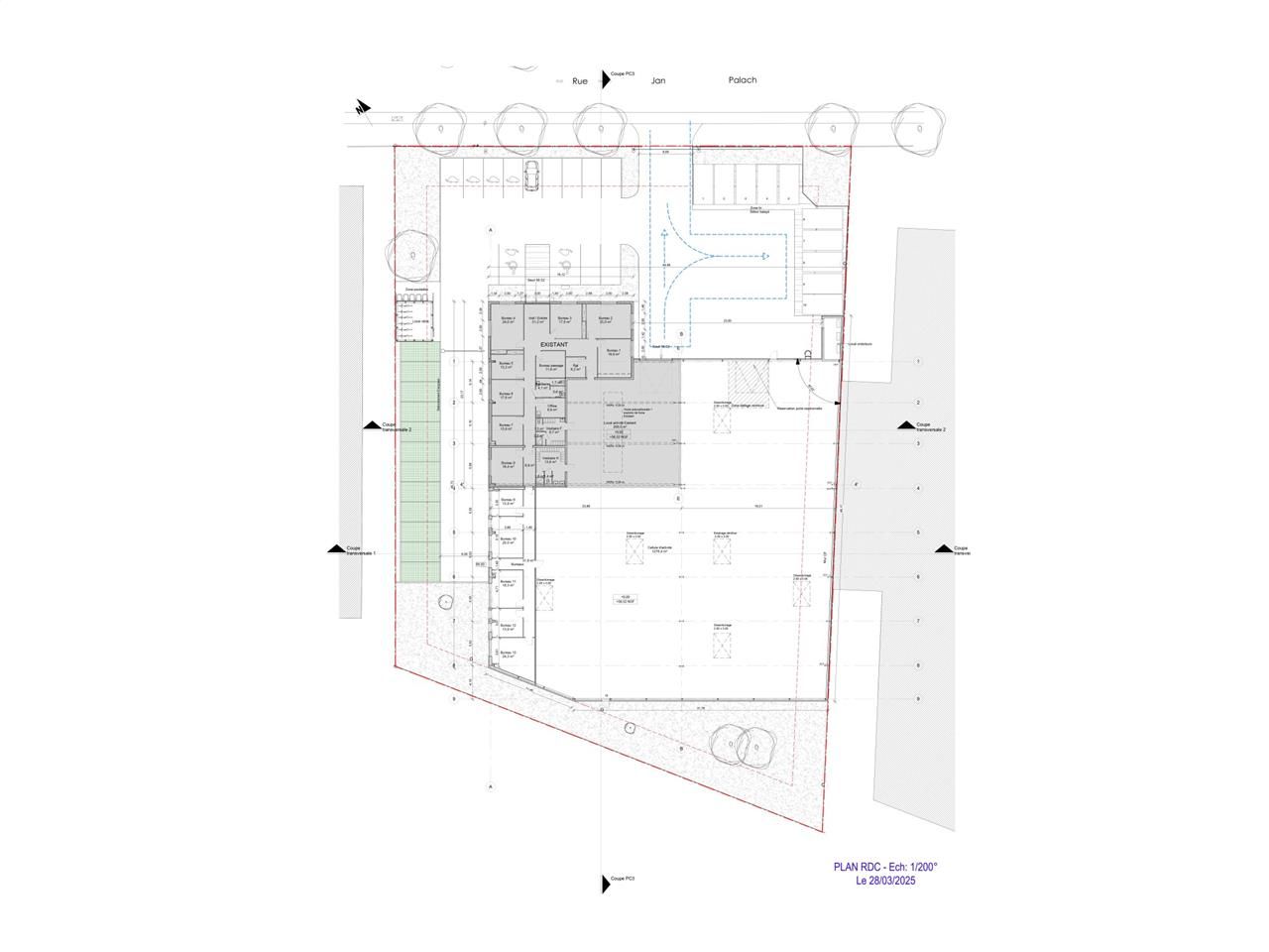
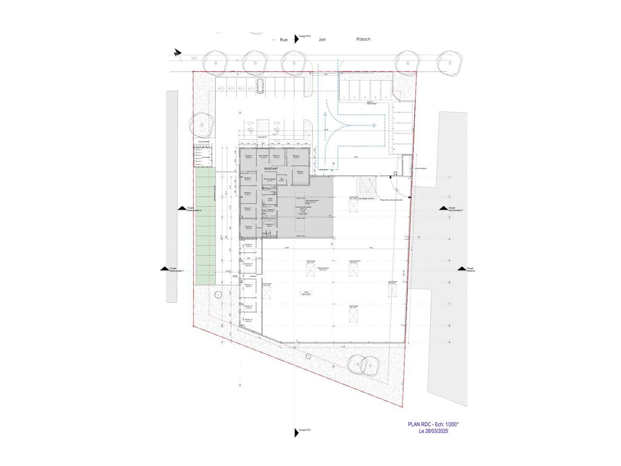
Bâtiment independant 2000m2 St Herblain
Arthur Loyd Nantes vous propose à la location un projet en BEFA de 1 990 m² de locaux d'activité à Saint Herblain. Idéalement situé, cet espace offre un emplacement stratégique pour développer votre activité professionnelle. Bénéficiant de nombreux atouts, ce bien immobilier d'entreprises saura répondre à vos besoins en termes d'espace et d'aménagement.
Ne manquez pas cette opportunité unique et contactez notre équipe dès maintenant pour plus d'informations ou pour organiser une visite sur place.
Régime Fiscal : TVA
Dépôt de garantie : 3 mois de loyer HT/HC
Honoraires : 25% HT du loyer annuel HT à la charge du Preneur
Prestations :
Accessibilité:
Périph Périphérique Porte d'armor à moins de 5 min
Route 2 kms de l'axe Nantes - Vannes
Bus Plusieurs arrêts de bus à proximité
Les informations sur les risques auxquels ce bien est exposé sont disponibles sur le site Géorisques : www.georisques.gouv.fr
Arthur Loyd Nantes vous propose à la location un projet en BEFA de 1 990 m² de locaux d'activité à Saint Herblain. Idéalement situé, cet espace offre un emplacement stratégique pour développer votre activité professionnelle. Bénéficiant de nombreux atouts, ce bien immobilier d'entreprises saura répondre à vos besoins en termes d'espace et d'aménagement.
Ne manquez pas cette opportunité unique et contactez notre équipe dès maintenant pour plus d'informations ou pour organiser une visite sur place.
| Étage | Type | Surfaces | Dispo | Loyer | Charges | Type de bailRév. annuelle |
|---|---|---|---|---|---|---|
| RDC+1 | Activités | 1990 | 1er juin 2026 | 105,53 HT/HC/m²/an | 9 ans type 3-6-9ILAT ou ILC en fonction de l'activité exercée |
Régime Fiscal : TVA
Dépôt de garantie : 3 mois de loyer HT/HC
Honoraires : 25% HT du loyer annuel HT à la charge du Preneur
Prestations :
- PROJET BEFA
- Nous vous proposons à Saint-Herblain un bâtiment indépendant neuf, livraison prévue pour juin 2026.
- Le bâtiment est composé d'environ 1500 m2 d'entrepôt, 400 m2 de bureaux et une mezzanine sur dalle béton de 120 m2
- A l'extérieur environ 30 places de stationnements et 10 emplacements pour bennes.
- L'ensemble est cloturé et sécurisé
- Haut. libre min. ss poutre : 5 m
- Haut. libre max. ss poutre : 7 m
- Résistance sol : 3 T/m²
- Ossature : Métallique
- Murs périmétriques : Double bardage
- Couverture : Bac acier
Accessibilité:
Périph Périphérique Porte d'armor à moins de 5 min
Route 2 kms de l'axe Nantes - Vannes
Bus Plusieurs arrêts de bus à proximité
Les informations sur les risques auxquels ce bien est exposé sont disponibles sur le site Géorisques : www.georisques.gouv.fr
Voir plus
Afficher les consommations énergétiques
Localisation et transport aux alentours
Favoris
Exporter
Appeler
Contacter
Signaler cette annonce










