Arthur Loyd Saint-Etienne - Roanne est un cabinet de conseil spécialiste en immobilier d’entreprise dans la Loire. Le cabinet implanté à Saint-Etienne est membre du réseau Arthur Loyd, 1er réseau n ...
En savoir plus

670 m²
HT HC
Location activité/entrepôt - 670 m²
Saint-Étienne (42000)
Dernière mise à jour : Il y a 2 jours
À LOUER : Local d'activité indépendant de 670 m² sur terrain clos et enrobé, ZI du Bardot - Saint-Etienne
À LOUER : Local d'activité indépendant de 670 m² sur terrain clos et enrobé, ZI du Bardot - Saint-Etienne
À toute proximité de l'autoroute A72 axe Lyon / Clermont situé entre 2 échangeurs
Impôt Foncier : 4300 €/HT/an environ
Régime Fiscal : T.V.A.
Dépôt de garantie : 3 mois de loyer HT/ HC
Honoraires : 20% HT du loyer annuel HT à la charge du preneur, payables à la signature du bail
Prestations :
Accessibilité:
SNCF Gare de Châteaucreux à 5 minutes
Autoroute A 72 à proximité immédiate
Aéroport Aéroport d'Andrézieux-Bouthéon 15 minutes
Les informations sur les risques auxquels ce bien est exposé sont disponibles sur le site Géorisques : www.georisques.gouv.fr
À LOUER : Local d'activité indépendant de 670 m² sur terrain clos et enrobé, ZI du Bardot - Saint-Etienne
À toute proximité de l'autoroute A72 axe Lyon / Clermont situé entre 2 échangeurs
| Étage | Type | Surfaces | Dispo | Loyer | Charges | Type de bailRév. annuelle |
|---|---|---|---|---|---|---|
| Activités | 430 | ILC Indice des Locaux Commerciaux | ||||
| Stockage | 170 | ILC Indice des Locaux Commerciaux | ||||
| Bureaux | 36 | ILC Indice des Locaux Commerciaux | ||||
| Locaux sociaux | 34 | ILC Indice des Locaux Commerciaux | ||||
| Total Cellule | Activités | 670 | 44,78 HT/HC/m²/an | 1200 /an HT | 3-6-9 ansILC Indice des Locaux Commerciaux |
Impôt Foncier : 4300 €/HT/an environ
Régime Fiscal : T.V.A.
Dépôt de garantie : 3 mois de loyer HT/ HC
Honoraires : 20% HT du loyer annuel HT à la charge du preneur, payables à la signature du bail
Prestations :
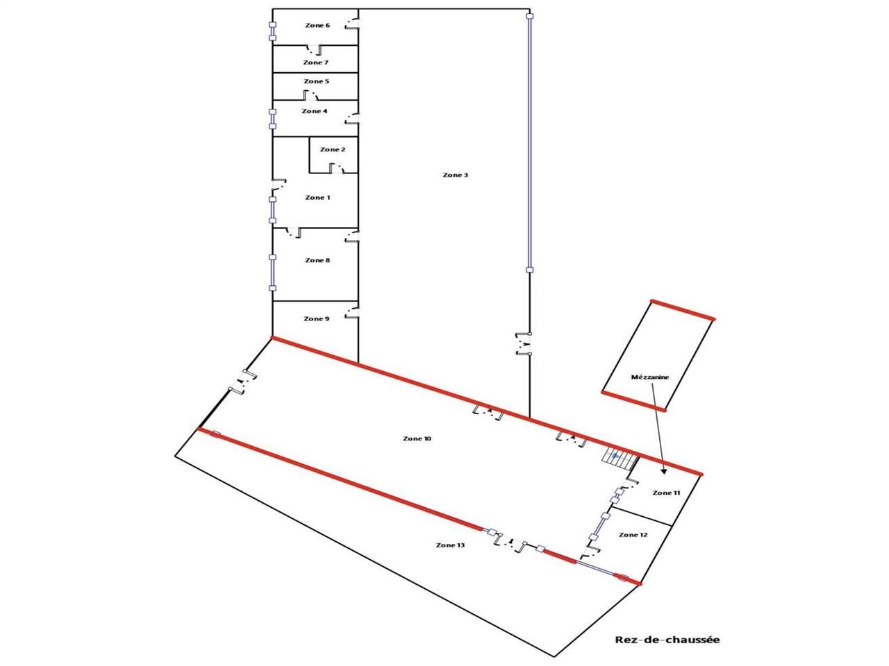
- Sur un terrain d'environ 2.990 m2 - Cour enrobée et close
- Construction :
- Structure métallique
- Murs bardage double peaux - Sol béton traité quartz
- Couverture bac acier isolé, laine tendue, shédisol
- À LOUER : Local d'activité sur un terrain d'environ 2 990 m² avec cour enrobée et close
- CONSTRUCTION :
- Structure métallique
- Murs bardage double peau
- Sol béton traité quartz
- Couverture bac acier isolé, laine tendue sur partie 1 - fibrociment isolé shédisol sur partie 2
- ACTIVITÉ :
- Eclairage rampe tube fluo - Fenêtres latérales
- Electricité triphasée
- Chauffage au fuel par air pulsé - cuve de
- 1 000 litres
- Partie 1
- Hauteur 3,10 à 3,70 m :
- 1 accès par porte à double battant 2 x 2 m
- 1 local technique
- Vestiaires + sanitaires (wc, douche)
- Partie 2
- Hauteur 4,10 à 5,30 m :
- 2 accès plain pied (1 de 3,50 x 3,50 m + 1 de 3 x 3 m)
- 1 pont roulant 2 T
- Mezzanine 40 m²
- 3 ème partie Stockage : non isolée
- BUREAUX :
- 1 accueil de 21 m² + 1 bureau de 13 m²
- Sols béton quartz - Murs peints
- Faux plafonds luminaires encastrés
- Chauffage électrique
- 1 WC PMR
- Immeuble indépendant
- Surface RDC : 0 m²
- Surface terrain : 2990
Accessibilité:
SNCF Gare de Châteaucreux à 5 minutes
Autoroute A 72 à proximité immédiate
Aéroport Aéroport d'Andrézieux-Bouthéon 15 minutes
Les informations sur les risques auxquels ce bien est exposé sont disponibles sur le site Géorisques : www.georisques.gouv.fr
Voir plus
Afficher les consommations énergétiques
Localisation et transport aux alentours
Favoris
Exporter
Appeler
Contacter
Signaler cette annonce
