L’agence CBRE Bordeaux conseille et accompagne les chefs d’entreprise dans leurs projets immobiliers quels que soient leur taille et leur secteur d’activité. Spécialistes de la transaction de burea ...
En savoir plus

155 m²
HT HC
Location activité/entrepôt - 155 m²
Mérignac (33700)
Dernière mise à jour : Il y a 4 jours
CBRE Bordeaux vous propose à la location un local d'activités polyvalent de 160 m² comprenant un entrepôt/atelier de 125 m² en RDC et des bureaux de 30 m² en R+1. Idéalement situé à Mérignac dans une zone d'activités, ce bien offre un accès rapide à la rocade et dispose d'un accès poids lourds.
Caractéristiques clés :
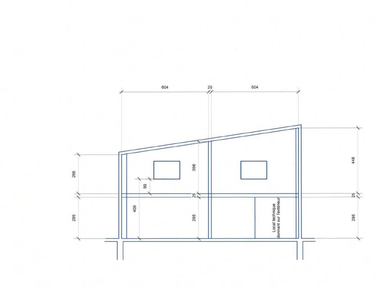
. Superficie totale : 160m² (125m² d'entrepôt 35m² de bureaux)
. Prestations extérieures : Accès PL et VL, 1 porte sectionnelle, bâtiment isolé, 1 place de parking
. Prestations intérieures : Structure métallique, dalle en béton quartz, 1 sanitaires et point d'eau en RDC, bureaux aménagés en R+1, fibre optique
. Loyer mensuel : 1600 euros HT/HC
. Bail commercial, disponible immédiatement
Pour plus d'informations ou pour visiter, n'hésitez pas à me contacter :
Anaïs Judas - 07.63.74.33.75 - [email protected]
Régime Fiscal : T.V.A.
Dépôt de garantie : 3 mois de loyer HT/HC
Honoraires : 20% HT du loyer annuel HT HC à la charge du preneur
Prestations :
Accessibilité:
. Rocade sortie N°10 et N°11
. Aéroport Bordeaux Mérignac à 500m
. Bus N°11, N°48, N°82, N°88
. Tramway extension ligne A (mise en service 2023)
Les informations sur les risques auxquels ce bien est exposé sont disponibles sur le site Géorisques : www.georisques.gouv.fr
Caractéristiques clés :
. Superficie totale : 160m² (125m² d'entrepôt 35m² de bureaux)
. Prestations extérieures : Accès PL et VL, 1 porte sectionnelle, bâtiment isolé, 1 place de parking
. Prestations intérieures : Structure métallique, dalle en béton quartz, 1 sanitaires et point d'eau en RDC, bureaux aménagés en R+1, fibre optique
. Loyer mensuel : 1600 euros HT/HC
. Bail commercial, disponible immédiatement
Pour plus d'informations ou pour visiter, n'hésitez pas à me contacter :
Anaïs Judas - 07.63.74.33.75 - [email protected]
| Étage | Type | Surfaces | Dispo | Loyer | Charges | Type de bailRév. annuelle |
|---|---|---|---|---|---|---|
| RDC | Activités | 125 | Immédiate | Indice des Loyers Commerciaux | ||
| MEZ | Bureaux | 30 | Immédiate | Indice des Loyers Commerciaux | ||
| Total Cellule 1 | Activités | 155 | Immédiate | 6,58 HT/m²/an | 3-6-9 ansIndice des Loyers Commerciaux |
Régime Fiscal : T.V.A.
Dépôt de garantie : 3 mois de loyer HT/HC
Honoraires : 20% HT du loyer annuel HT HC à la charge du preneur
Prestations :
- 1 porte sectionnelle
- Bâtiment isolé
- Structure métallique
- Fibre optique
- Dalle en béton quartz
- Structure métallique
- Escalier métallique
- Sanitaires et point eau en rdc
- Bureaux cloisonnés et aménagés
- 1 place de parking
- Accès PL et VL
- Surface RDC : 125 m²
- Haut. libre min. ss poutre : 5 m
- Haut. libre max. ss poutre : 7 m
Accessibilité:
. Rocade sortie N°10 et N°11
. Aéroport Bordeaux Mérignac à 500m
. Bus N°11, N°48, N°82, N°88
. Tramway extension ligne A (mise en service 2023)
Les informations sur les risques auxquels ce bien est exposé sont disponibles sur le site Géorisques : www.georisques.gouv.fr
Voir plus
Afficher les consommations énergétiques
Favoris
Exporter
Appeler
Contacter
Signaler cette annonce










