L’agence CBRE Lyon conseille et accompagne les chefs d’entreprise dans leurs projets immobiliers quels que soient leur taille et leur secteur d’activité. Spécialistes de la transaction de bureaux, ...
En savoir plus

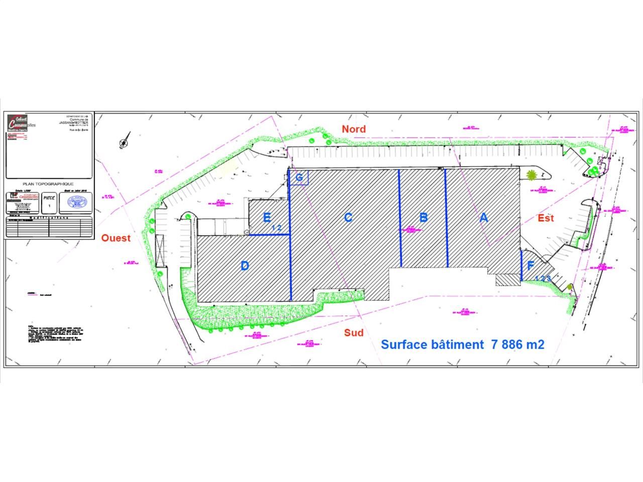
7 883 m²
HT HC
Location activité/entrepôt - 7883 m²
Jassans-Riottier (01480)
Dernière mise à jour : Hier
Vous recherchez un bâtiment indépendant à louer sur la commune de Jassans-Riottier? La société CBRE Lyon, expert en immobilier d'entreprise vous propose de découvrir ce bâtiment industriel de 7 900 m², sur un terrain de 1,6 ha environ, situé au Nord de Lyon, à proximité de l'agglomération de Villefranche sur Saône, à 10 minutes de l'échangeur complet de l'A6 (Villefranche Sud) relié à l'A46.
Ce bâtiment en 3 travées, bénéficie d'une charpente métallique, d'une dalle industrielle béton, d'un chauffage gaz par aérothermes et d'une climatisation réversible dans les bureaux.
Impôt Foncier : 23033 €/an
Régime Fiscal : T.V.A.
Dépôt de garantie : 3 mois de loyer TTC
Paiement Loyer : trimestriel
Information sur le Bail :
Indice de révision : ICC
Prestations :
Accessibilité:
. A6 à 10 mn, échangeur complet (Villefranche Sud) relié à l'A46.
Les informations sur les risques auxquels ce bien est exposé sont disponibles sur le site Géorisques : www.georisques.gouv.fr
Ce bâtiment en 3 travées, bénéficie d'une charpente métallique, d'une dalle industrielle béton, d'un chauffage gaz par aérothermes et d'une climatisation réversible dans les bureaux.
| Étage | Type | Surfaces | Dispo | Loyer | Charges | Type de bailRév. annuelle |
|---|---|---|---|---|---|---|
| RDC | Activités | 6691 | Immédiate | |||
| RDC | Activités | 657 | Immédiate | |||
| RDC | Activités | 535 | Immédiate | |||
| Total Cellule | Activités | 7883 | Immédiate | 74,84 m²/an HT HC | 3-6-9 ans |
Impôt Foncier : 23033 €/an
Régime Fiscal : T.V.A.
Dépôt de garantie : 3 mois de loyer TTC
Paiement Loyer : trimestriel
Information sur le Bail :
Indice de révision : ICC
Prestations :
- Bâtiment en 3 travées.
- Charpente métallique.
- Isolation.
- Dalle industrielle béton.
- Lumineux.
- Chauffage gaz aérothermes.
- Climatisation réversible dans les bureaux.
- Réfectoire équipé.
- 2 cabines peinture.
- Ponts roulants :
- travée 1 : 2 de 20 t et 1 de 3,2 t
- travée 2 : 2 de 20 t et 1 de 3,2 t
- travée 3 : 1 de 20 t et 2 de 3,2 t.
- Hauteur sous crochet : 6,50 m au plus bas.
- Extension : 2 travées chauffées, isolées
- Hauteur : 8,30 m au plus bas
- 2 accès de plain pied.
- Zone auvent.
- ACCES :
- 1 accès plain-pied sur façade avant.
- 1 accès plain-pied sur façade arrière.
- Parkings.
- Surface RDC : 7883 m²
Accessibilité:
. A6 à 10 mn, échangeur complet (Villefranche Sud) relié à l'A46.
Les informations sur les risques auxquels ce bien est exposé sont disponibles sur le site Géorisques : www.georisques.gouv.fr
Voir plus
Afficher les consommations énergétiques
Favoris
Exporter
Appeler
Contacter
Signaler cette annonce
