CBRE Montpellier, situé au cœur de la ville, est votre partenaire de confiance pour tous vos projets immobiliers professionnels. Notre équipe d''experts locaux accompagne les entreprises de toutes ...
En savoir plus

1 244 m²
HT HC
Location activité/entrepôt - 1244 m²
Cournonterral (34660)
Dernière mise à jour : Hier
A louer local d'activités à Cournonterral
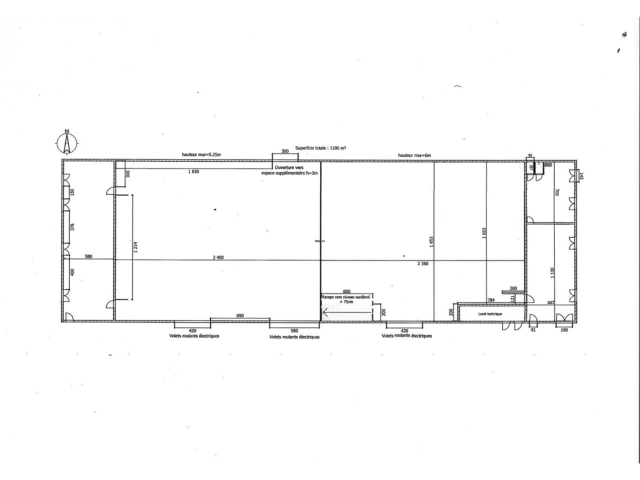
CBRE Montpellier vous propose un local d'activités indépendant de 1 244 m² sur un foncier de 3 550 m²;
Idéal pour stockage et industrie;
Accès livraisons par porte sectionnelle et quai;
Terrain clos idéal pour stockage extérieur;
Hauteur sous plafond importante ;
Bureaux aménagés;
Disponible immédiatement;
Impôt Foncier : 7405 €/HT/an
Régime Fiscal : T.V.A.
Honoraires : 20% + TVA du loyer annuel à la charge du preneur
Prestations :
Accessibilité:
Autoroute A9 à 11 minutes
Autoroute A709 à 17 minutes
Les informations sur les risques auxquels ce bien est exposé sont disponibles sur le site Géorisques : www.georisques.gouv.fr
CBRE Montpellier vous propose un local d'activités indépendant de 1 244 m² sur un foncier de 3 550 m²;
Idéal pour stockage et industrie;
Accès livraisons par porte sectionnelle et quai;
Terrain clos idéal pour stockage extérieur;
Hauteur sous plafond importante ;
Bureaux aménagés;
Disponible immédiatement;
| Étage | Type | Surfaces | Dispo | Loyer | Charges | Type de bailRév. annuelle |
|---|---|---|---|---|---|---|
| RDC | Activités | 1130 | Immédiate | Indice INSEE du Coût de la Construction | ||
| R1 | Bureaux | 114 | Immédiate | Indice INSEE du Coût de la Construction | ||
| Total Cellule | Activités | 1244 | Immédiate | 59,81 m²/an HT HC | 3-6-9 ansIndice INSEE du Coût de la Construction |
Impôt Foncier : 7405 €/HT/an
Régime Fiscal : T.V.A.
Honoraires : 20% + TVA du loyer annuel à la charge du preneur
Prestations :
- Sol : Dalle béton
- Toiture : Métallique
- Climatisation / Chauffage : Clim réversible dans les bureaux
- Surface RDC : 1130 m²
- Nbr de portes à quai : 1
- Ossature : Mur parpaings
Accessibilité:
Autoroute A9 à 11 minutes
Autoroute A709 à 17 minutes
Les informations sur les risques auxquels ce bien est exposé sont disponibles sur le site Géorisques : www.georisques.gouv.fr
Voir plus
Afficher les consommations énergétiques
Favoris
Exporter
Appeler
Contacter
Signaler cette annonce
