EVOLIS, votre partenaire en immobilier d’entreprise! Que vous soyez une entreprise, utilisateur de locaux professionnels, investisseur, ou propriétaire, EVOLIS met à votre service son expertise ...
En savoir plus

480 m²
HT HC
Location activité/entrepôt - 480 m²
Bourgoin-Jallieu (38300)
Dernière mise à jour : Il y a 2 jours
À la recherche de locaux d'activité à louer à Bourgoin Jallieu ? Ne cherchez plus ! EVOLIS vous propose une opportunité exceptionnelle avec ces 480 m² non divisibles, idéalement situés pour votre entreprise. Ces locaux offrent un espace spacieux et fonctionnel, parfaitement adapté à vos besoins professionnels. Ne manquez pas cette occasion unique de trouver le lieu idéal pour développer votre activité. Contactez-nous dès maintenant pour plus d'informations et pour visiter ces locaux d'exception proposés par EVOLIS.
Impôt Foncier : 3900 €/HT/an
Régime Fiscal : T.V.A.
Dépôt de garantie : 3 mois de loyer HT HC
Honoraires : 15% HT du loyer annuel HT/HC à la charge du preneur, payables à la signature du bail
Information sur le Bail :
Possibilité de bail dérogatoire
Prestations :
Accessibilité:
Autoroute A43
Route D522
SNCF Gare TER de Bourgoin Jallieu
Les informations sur les risques auxquels ce bien est exposé sont disponibles sur le site Géorisques : www.georisques.gouv.fr
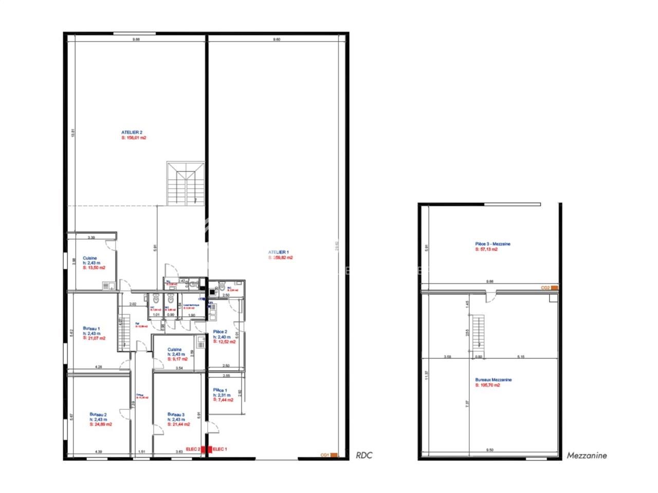
| Étage | Type | Surfaces | Dispo | Loyer | Charges | Type de bailRév. annuelle |
|---|---|---|---|---|---|---|
| RDC | Activités | 160 | ILAT Indice des Loyers des Activités Tertiaires | |||
| RDC | Bureaux | 150 | ILAT Indice des Loyers des Activités Tertiaires | |||
| 1 | Bureaux | 110 | ILAT Indice des Loyers des Activités Tertiaires | |||
| MEZ | Mezzanine | 60 | ILAT Indice des Loyers des Activités Tertiaires | |||
| Total Cellule | Activités | 480 | Immédiate | 72,5 m²/an/ HT/HC | Bail commercial 3-6-9 ansILAT Indice des Loyers des Activités Tertiaires |
Impôt Foncier : 3900 €/HT/an
Régime Fiscal : T.V.A.
Dépôt de garantie : 3 mois de loyer HT HC
Honoraires : 15% HT du loyer annuel HT/HC à la charge du preneur, payables à la signature du bail
Information sur le Bail :
Possibilité de bail dérogatoire
Prestations :
- Accès de plain-pied
- Accès Poids lourds
- Bâtiment sécurisé avec portail manuel
- Bâtiment indépendant
- Accès de plain-pied
- Accès Poids lourds
- Bâtiment sécurisé avec portail manuel
- Bâtiment indépendant
- Terrain goudronné d'environ 2230 m² (dont 800 m2à l'arrière du bâtiment)
- Structure métallique
- Toiture refaite récemment mais comporte de l'amiante
- Gouttière neuve
- Stores métalliques changés récemment
- Isolation
- Éclairage led
- Chauffage gaz
- Sanitaires X 3
- Chauffage radiateur dans les bureaux
- Kitchenette
- Radiant gaz + Aerotherme dans la partie activité
- Triphasé
- Les racks peuvent rester à la demande du client
- 2 Portes en métal 4x4
- Mezzanine
- Bureau 110 m2
- Gaine prise rj 45
- Installation électrique neuve
- Immeuble indépendant
- Surface RDC : 310 m²
Accessibilité:
Autoroute A43
Route D522
SNCF Gare TER de Bourgoin Jallieu
Les informations sur les risques auxquels ce bien est exposé sont disponibles sur le site Géorisques : www.georisques.gouv.fr
Voir plus
Afficher les consommations énergétiques
Localisation et transport aux alentours
Favoris
Exporter
Appeler
Contacter
Signaler cette annonce
