A l’appui d’un réseau leader à l’international, I&L Solutions est une équipe de plus de 70 professionnels spécialisés en immobilier Logistique et Industriel au service des investisseurs, des propri ...
En savoir plus

2 368 m²
HT HC
Location activité/entrepôt - 2368 m²
Bezons (95870)
Dernière mise à jour : Aujourd'hui
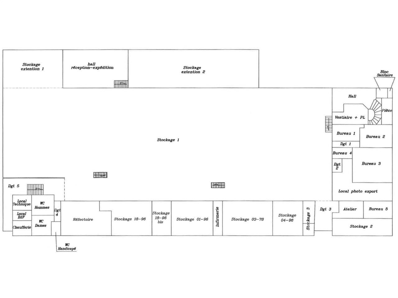
CBRE vous propose à la location sur la commune de Bezons dans le département du Val d'Oise (95), un site indépendant d'environ 2368 m² sur un terrain de 3 800 m². Situé en plein coeur de la zone industrielle. A proximité des autoroutes. Le local dispose d'un tarif jaune, et de nombreuses places de parking (environ 51 places). IDÉAL POUR UN SIÈGE SOCIAL. Disponibilité immédiate.
Si cet entrepôt/local d'activités à louer dans le 95 vous intéresse ou si vous souhaitez obtenir plus de renseignements, n'hésitez pas à me contacter aujourd'hui pour organiser une visite et bénéficier de toutes les informations nécessaires pour votre projet immobilier.
En tant qu'expert en immobilier professionnel/industriel, je suis à votre disposition pour vous aider à trouver le bien adapté à vos activités professionnelles et à votre coeur de métier.
Régime Fiscal : T.V.A.
Honoraires : 20% HT du loyer annuel HT/HC à la charge du preneur
Information sur le Bail :
Bail : 3/6/9 de type investisseur Taxe parking : 825 euros/an Assurance multirisques : 6 euros/m²/an HT TF/TB/TASS : 14 euros/m²/an HT
Prestations :
Accessibilité:
Transilien Houilles-Carrières sur Seine (J, L)
RER Houilles-Carrières sur Seine (A)
Autoroute A86 - A14
Route N192 - N308
Bus Lignes 363
Tramway Ligne T2
Les informations sur les risques auxquels ce bien est exposé sont disponibles sur le site Géorisques : www.georisques.gouv.fr
Si cet entrepôt/local d'activités à louer dans le 95 vous intéresse ou si vous souhaitez obtenir plus de renseignements, n'hésitez pas à me contacter aujourd'hui pour organiser une visite et bénéficier de toutes les informations nécessaires pour votre projet immobilier.
En tant qu'expert en immobilier professionnel/industriel, je suis à votre disposition pour vous aider à trouver le bien adapté à vos activités professionnelles et à votre coeur de métier.
| Étage | Type | Surfaces | Dispo | Loyer | Charges | Type de bailRév. annuelle |
|---|---|---|---|---|---|---|
| RDC | Activités | 1364 | Immédiate | 155 m²/an HT HC | 10 m²/an HT | 3-6-9 ansIndice ILAT |
| 1 | Activités | 988 | Immédiate | 155 m²/an HT HC | 10 m²/an HT | 3-6-9 ansIndice ILAT |
| Locaux techniques | 16 | Immédiate | 155 m²/an HT HC | 10 m²/an HT | 3-6-9 ansIndice ILAT |
Régime Fiscal : T.V.A.
Honoraires : 20% HT du loyer annuel HT/HC à la charge du preneur
Information sur le Bail :
Bail : 3/6/9 de type investisseur Taxe parking : 825 euros/an Assurance multirisques : 6 euros/m²/an HT TF/TB/TASS : 14 euros/m²/an HT
Prestations :
- Site clos et indépendant
- Tarif jaune (90 kVA)
- Cour camion de 21 m
- Eclairage LED
- 51 places parking
- Immeuble indépendant
- Surface RDC : 1364 m²
- Surface terrain : 3692
- Haut. libre max. ss poutre : 5,5 m
- Résistance sol : 2 T/m²
- Chauffage : Aérotherme
- Ossature : Métallique
- Murs périmétriques : Bardage double peau
Accessibilité:
Transilien Houilles-Carrières sur Seine (J, L)
RER Houilles-Carrières sur Seine (A)
Autoroute A86 - A14
Route N192 - N308
Bus Lignes 363
Tramway Ligne T2
Les informations sur les risques auxquels ce bien est exposé sont disponibles sur le site Géorisques : www.georisques.gouv.fr
Voir plus
Afficher les consommations énergétiques
Favoris
Exporter
Appeler
Contacter
Signaler cette annonce
