L’agence CBRE Bordeaux conseille et accompagne les chefs d’entreprise dans leurs projets immobiliers quels que soient leur taille et leur secteur d’activité. Spécialistes de la transaction de burea ...
En savoir plus

174 m²
HT HC
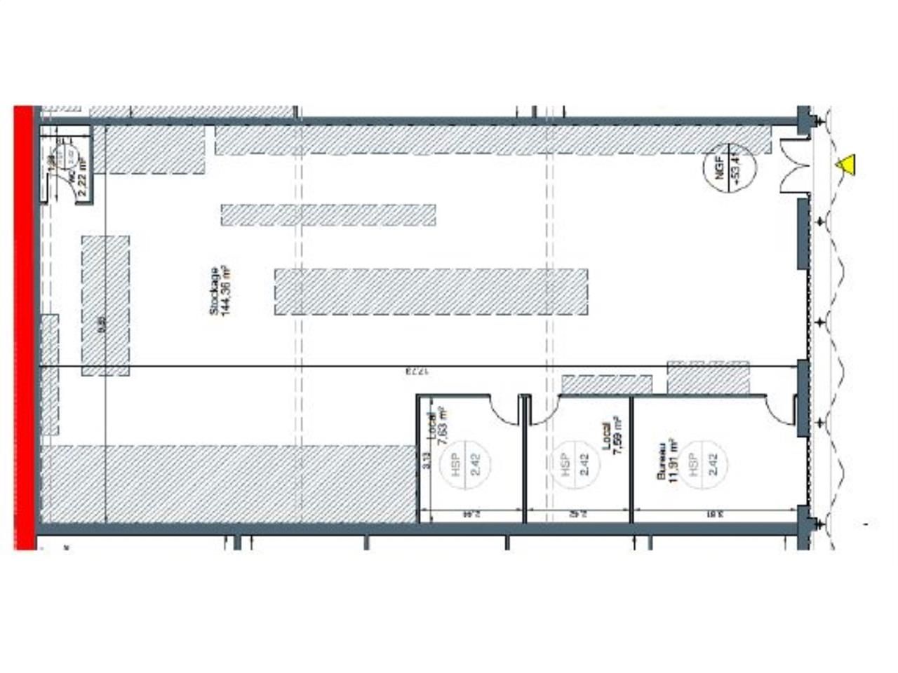
Location activité/entrepôt - 174 m²
Artigues-près-Bordeaux (33370)
Dernière mise à jour : Hier
Sur la commune d'Artigues-près-Bordeaux, à proximité de la rocade Bordelaise ainsi que de la N89, A LOUER local d'activités d'une surface d'environ 174 m² composé d'un petit espace bureaux et d'une partie entrepôt. Le local bénéficie d'un rideau métallique et d'un parking commun devant le local. Disponibilité immédiate.
N'hésitez pas à nous contacter pour obtenir plus de renseignements ou organiser une visite.
Régime Fiscal : T.V.A.
Dépôt de garantie : 3 mois de loyer HT/HC
Paiement Loyer : trimestriel
Honoraires : 20 % HT du loyer annuel HT HC à la charge du preneur.
Information sur le Bail :
Bail dérogatoire 18 - 24 mois
Prestations :
Accessibilité:
Tramway Ligne A "Butinière"
Bus ligne N°64, 65, 67
Route Rocade sortie 26 à 1,3 km
Route N89 sortie 1 à 800 m
Les informations sur les risques auxquels ce bien est exposé sont disponibles sur le site Géorisques : www.georisques.gouv.fr
N'hésitez pas à nous contacter pour obtenir plus de renseignements ou organiser une visite.
| Étage | Type | Surfaces | Dispo | Loyer | Charges | Type de bailRév. annuelle |
|---|---|---|---|---|---|---|
| Entrepôts | 174 | Immédiate | 70 m²/an HT HC | 14,28 HT/m²/an | Indice des Loyers Commerciaux |
Régime Fiscal : T.V.A.
Dépôt de garantie : 3 mois de loyer HT/HC
Paiement Loyer : trimestriel
Honoraires : 20 % HT du loyer annuel HT HC à la charge du preneur.
Information sur le Bail :
Bail dérogatoire 18 - 24 mois
Prestations :
- Bureaux
- Salles de stockage
- Sanitaires privatifs
- Hauteur max sous poutre : 3.7m
- 1 rideau métallique
- Système de chauffage : radiateur
- Locaux éligibles à la fibre optique
- Parking commun
- Portail électrique
- Surface terrain : 0
Accessibilité:
Tramway Ligne A "Butinière"
Bus ligne N°64, 65, 67
Route Rocade sortie 26 à 1,3 km
Route N89 sortie 1 à 800 m
Les informations sur les risques auxquels ce bien est exposé sont disponibles sur le site Géorisques : www.georisques.gouv.fr
Voir plus
Afficher les consommations énergétiques
Favoris
Exporter
Appeler
Contacter
Signaler cette annonce










