Depuis 2003, KEOPS Toulouse accompagne les entreprises dans leurs projets immobiliers sur toute l’aire urbaine toulousaine.Notre équipe de professionnels passionnés met à votre service sa connaissa ...
En savoir plus

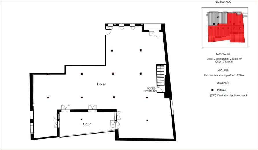
283 m²
Local commercial à vendre - 283 m²
Toulouse (31000)
Dernière mise à jour : Hier
Local commercial / professionel neuf, au coeur du quartier Saint Cyprien à Toulouse
Métro A : Stattion Saint Cyrprien République Bus : N° 13 / 31 / 45 / 66 Tramway T1 / T2 : Station Fer à Cheval
Local commercial / profesionnel neuf, en rez-de chaussée d'une résidence de logement Idéalement situé dans le quartier de St Cyprien à Toulouse, le local profite d'une multitudes de services à proximité : Marché couvert, Hopital Joseph Ducuing, supermarché ainsi qu'un ensemble de groupes scolaires Surface répartie sur 2 niveaux, rdc + cave, ainsi qu'une cour intérieure d'environ 35 m²Livrée brute, fluides en attente et vitrines possées Hauteur sous-plafond : 2,94 m
Métro A : Stattion Saint Cyrprien République Bus : N° 13 / 31 / 45 / 66 Tramway T1 / T2 : Station Fer à Cheval
Local commercial / profesionnel neuf, en rez-de chaussée d'une résidence de logement Idéalement situé dans le quartier de St Cyprien à Toulouse, le local profite d'une multitudes de services à proximité : Marché couvert, Hopital Joseph Ducuing, supermarché ainsi qu'un ensemble de groupes scolaires Surface répartie sur 2 niveaux, rdc + cave, ainsi qu'une cour intérieure d'environ 35 m²Livrée brute, fluides en attente et vitrines possées Hauteur sous-plafond : 2,94 m
| Bâtiment | Libellé | Etage | Surface | Surface Totale | Type de locaux | Disponibilité |
|---|---|---|---|---|---|---|
| COEUR ARZAC | Local commercial | RDC | 283,00 m² | 283 m² | Locaux professionnels | 4ème trimestre 2025 |
| Cave - Sous sol | 1er sous-sol | 191,00 m² | 191 m² | Cave | 4ème trimestre 2025 |
Local commercial / professionnel disponible
Voir plus
Afficher les consommations énergétiques
Localisation et transport aux alentours
- St Cyprien - République172m (3min à pied)A
Favoris
Exporter
Appeler
Contacter
Signaler cette annonce
