Depuis 2003, KEOPS Toulouse accompagne les entreprises dans leurs projets immobiliers sur toute l’aire urbaine toulousaine.Notre équipe de professionnels passionnés met à votre service sa connaissa ...
En savoir plus

212 m²
Local commercial à vendre - 212 m²
Saint-Jory (31790)
Dernière mise à jour : Il y a 2 jours
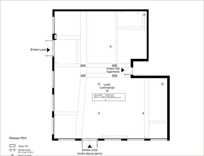
Local commercial neuf à la vente, sur le secteur Nord de Toulouse, à Saint Jory
Local commerical neuf, à la vente sur le secteur de la ville de ST JORY, au Nord de ToulouseIdéalement situé, il profite d'une visibilité directe sur le rond point de l'entrée de la villeSurface commerciale livrée brute, fluides en attentes et vitrines poséesParking à l'avant du local commercialAccès direct à la gare
(2) prix de vente selon la fiscalité en Euros HD HC ou Euros HT HC
Local commerical neuf, à la vente sur le secteur de la ville de ST JORY, au Nord de ToulouseIdéalement situé, il profite d'une visibilité directe sur le rond point de l'entrée de la villeSurface commerciale livrée brute, fluides en attentes et vitrines poséesParking à l'avant du local commercialAccès direct à la gare
| Bâtiment | Libellé | Etage | Surface | Surface Totale | Type de locaux | Prix de vente(2) | Disponibilité |
|---|---|---|---|---|---|---|---|
| ILOT DE LA GARE | Local commercial | RDC | 212,00 m² | 212 m² | Commerce | 1 886,00 | Immédiate |
Local commercial disponible
Voir plus
Afficher les consommations énergétiques
Localisation et transport aux alentours
Favoris
Exporter
Appeler
Contacter
Signaler cette annonce
