Depuis 2003, KEOPS Toulouse accompagne les entreprises dans leurs projets immobiliers sur toute l’aire urbaine toulousaine.Notre équipe de professionnels passionnés met à votre service sa connaissa ...
En savoir plus

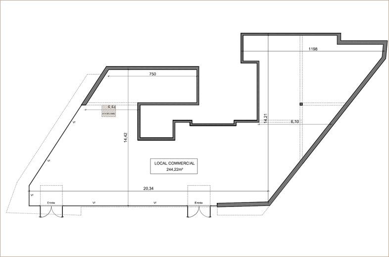
244 m²
Local commercial à vendre - 244 m²
Ramonville-Saint-Agne (31520)
Dernière mise à jour : Hier
Local commercial à vendre, au coeur de Ramonville Saint Agne
Local commercial à la vente, sur le secteur de Ramonville Saint Agne, au Sud Est de ToulouseEmplacement stratégique, avec une belle vibilité sur l'Avenue de TolosaneSituée au rez-de-chaussée d'un immeuble habitations, la surface commerciale est entièrement vitrée
Local commercial à la vente, sur le secteur de Ramonville Saint Agne, au Sud Est de ToulouseEmplacement stratégique, avec une belle vibilité sur l'Avenue de TolosaneSituée au rez-de-chaussée d'un immeuble habitations, la surface commerciale est entièrement vitrée
Voir plus
Afficher les consommations énergétiques
Localisation et transport aux alentours
Favoris
Exporter
Appeler
Contacter
Signaler cette annonce
