Nous sommes Immprove, une grande équipe de plus de 200 experts en immobilier d’entreprise, implantés localement avec plus de 20 agences sur tout le territoire.Depuis 2009, notre proximité, notre ét ...
En savoir plus

320 m²
Local commercial à vendre - 320 m²
Paris 11 (75011)
Dernière mise à jour : Il y a 3 jours
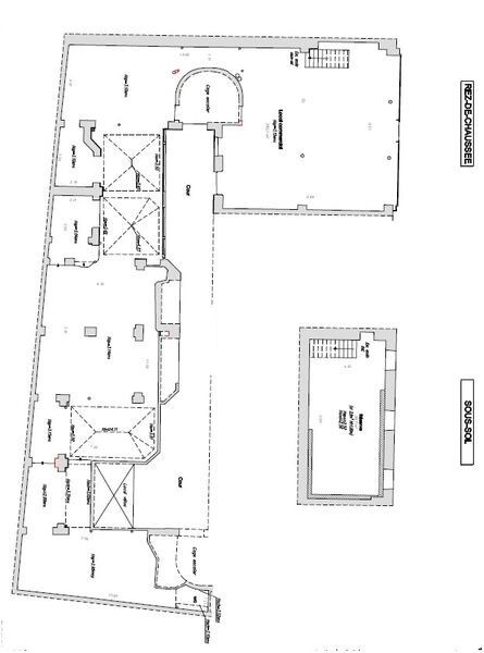
Immprove vous propose à la vente les murs libres d'un beau local commercial, livré brut, développant une surface de 320 m², ( 280 m² en rez-de-chaussée et 40 m² en sous-sol) accessible par 1 escalier intérieur.
Excellent emplacement sur axe passant au coeur du 11ème arrondissement. Façade de 9,5 ml - Belle hauteur sous plafond - Présence de verrières. Prix de vente : 2.800.000 euros + 5% HT d'honoraires - charge acquéreur.
Egalement disponible à la location.
Disponible immédiatement
Impôt Foncier : 12,35 €/m²/an HT
Régime Fiscal : Nous consulter
Honoraires : 5% HT du prix de vente NV à la charge de l'acquéreur (140.000 euros HT, soit 168.000 euros TTC)
Prestations :
Accessibilité:
Bus Ferry - Lenoir (20, N23, N12), Jean-Pierre Timbaud (56, 91), Jean-Pierre Timbaud - Richard Lenoir (96)
Métro Filles du Calvaire (8), Oberkampf (5, 9), Parmentier (3), République (11)
Transilien Gare de l'Est (TER)
Les informations sur les risques auxquels ce bien est exposé sont disponibles sur le site Géorisques : www.georisques.gouv.fr
Excellent emplacement sur axe passant au coeur du 11ème arrondissement. Façade de 9,5 ml - Belle hauteur sous plafond - Présence de verrières. Prix de vente : 2.800.000 euros + 5% HT d'honoraires - charge acquéreur.
Egalement disponible à la location.
Disponible immédiatement
| Étage | Type | Surfaces | Dispo | Prix(m²) | Charges | Honoraires | Fiscal |
|---|---|---|---|---|---|---|---|
| RDC | Locaux Commerciaux | 280 | Immédiate | n.c. | n.c. | 5% HT du prix de vente NV à la charge de l'acquéreur (140.000 euros HT, soit 168.000 euros TTC) | Nous consulter |
| SS | Locaux Commerciaux | 40 | Immédiate | n.c. | n.c. | 5% HT du prix de vente NV à la charge de l'acquéreur (140.000 euros HT, soit 168.000 euros TTC) | Nous consulter |
Impôt Foncier : 12,35 €/m²/an HT
Régime Fiscal : Nous consulter
Honoraires : 5% HT du prix de vente NV à la charge de l'acquéreur (140.000 euros HT, soit 168.000 euros TTC)
Prestations :
- Immeuble ancien
- Brut de béton
- Accueil
- Espace ouvert
- Façade 9.5 ml
- Belle hauteur sous plafond
- Verrières
- Local technique
- Sanitaires privatifs
- Surface RDC : 280 m²
Accessibilité:
Bus Ferry - Lenoir (20, N23, N12), Jean-Pierre Timbaud (56, 91), Jean-Pierre Timbaud - Richard Lenoir (96)
Métro Filles du Calvaire (8), Oberkampf (5, 9), Parmentier (3), République (11)
Transilien Gare de l'Est (TER)
Les informations sur les risques auxquels ce bien est exposé sont disponibles sur le site Géorisques : www.georisques.gouv.fr
Voir plus
Afficher les consommations énergétiques
Favoris
Exporter
Appeler
Contacter
Signaler cette annonce
