

86 m²
Local commercial à vendre - 86 m²
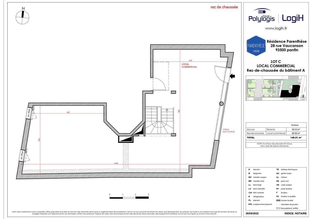
Pantin (93500)
Publiée : Il y a 9 mois
LOCAL COMMERCIAL - 86 m² - PANTIN (93500)
A seulement 5 minutes du Métro Hoche - 28 rue Vaucanson à Pantin
À Vendre : Local professionnel de 86m² (179 m²avec la réserve) situé en pied d’un immeuble neuf en cours de livraison.
Ce local offre un espace polyvalent pouvant convenir à diverses activités commerciales, artisanales ou de services.
Livré brut / Vitrine à charge du preneur
Prix : 408 333€HT
Contactez-nous pour plus d'informations ou pour organiser une visite.
Voir plus
Afficher les consommations énergétiques
Localisation et transport aux alentours
- Hoche356m (5min à pied)5
Favoris
Exporter
Appeler
Contacter
Signaler cette annonce