Nous sommes Immprove, une grande équipe de plus de 200 experts en immobilier d’entreprise, implantés localement avec plus de 20 agences sur tout le territoire.Depuis 2009, notre proximité, notre ét ...
En savoir plus

243 m²
Local commercial à vendre - 243 m²
Levallois-Perret (92300)
Dernière mise à jour : Il y a 4 jours
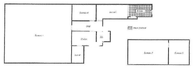
IMMPROVE vous propose une opportunité exceptionnelle à LEVALLOIS PERRET : Bureaux et Locaux Commerciaux de 243 m² non divisibles, disponibles à la vente ou à la location. Emplacement stratégique, luminosité optimale, espaces modulables. Ne manquez pas cette offre unique pour votre entreprise.
Impôt Foncier : 4010 €//an
Dépôt de garantie : 3 mois de loyer HT HC
Honoraires : 5% HT du prix de vente HD à la charge de l'acquéreur
Taxe Bureau : 25,77 €/m²/an
Prestations :
Accessibilité:
Bus Bus 53 - 174 - 274
Metro Anatole France (3)
Metro Louise Michel (3)
Train Gare de Clichy Levallois
Les informations sur les risques auxquels ce bien est exposé sont disponibles sur le site Géorisques : www.georisques.gouv.fr
| Étage | Type | Surfaces | Dispo | Prix(m²) | Charges | Honoraires | Fiscal |
|---|---|---|---|---|---|---|---|
| RDC | Bureaux | 243 | Après accord | 7366,26 m² HD | n.c. | 5% HT du prix de vente HD à la charge de l'acquéreur |
Impôt Foncier : 4010 €//an
Dépôt de garantie : 3 mois de loyer HT HC
Honoraires : 5% HT du prix de vente HD à la charge de l'acquéreur
Taxe Bureau : 25,77 €/m²/an
Prestations :
- Immeuble récent
- Accès PMR
- Fibre optique
- Surface atypique de 240 m² environs sur deux niveaux
- Cloisons vitrées
- Lumière zénithale
- Climatisation
- Convecteurs électriques
- Deux sanitaires
- Espace cuisine
- Rez-de-chaussée : entrée privative sur rue avec belle hauteur sous plafond, grand espace ouvert, salle de réunion, cuisine, local informatique et de stockage
- 1er étage : 1 open space + 1 bureau fermé
- Surface RDC : 243 m²
Accessibilité:
Bus Bus 53 - 174 - 274
Metro Anatole France (3)
Metro Louise Michel (3)
Train Gare de Clichy Levallois
Les informations sur les risques auxquels ce bien est exposé sont disponibles sur le site Géorisques : www.georisques.gouv.fr
Voir plus
Afficher les consommations énergétiques
Favoris
Exporter
Appeler
Contacter
Signaler cette annonce
