Notre équipe est aujourd’hui formée de 20 collaborateurs, composés de consultants, tous spécialisés dans leurs métiers, bureaux, commerces, locaux d’activités, investissement et de nos assistantes. ...
En savoir plus



150 m²
HT HC
Location local commercial - 150 m²
Sète (34200)
Dernière mise à jour : Hier
À louer, local commercial ou bureaux de 150 m2, en très bon état, le long du Canal Royal, au coeur de Sète
À louer en centre-ville de Sète, ce local commercial de 150 m² en rez-de-chaussée bénéficie d'un emplacement stratégique au bord du Canal Royal, entre la gare SNCF et les rues commerçantes du coeur de ville.
Offrant une excellente visibilité grâce à sa façade sur un axe passant et touristique, ce local professionnel conviendra parfaitement pour une activité commerciale, de service ou de bureaux. Sa configuration et sa situation permettent une grande variété d'usages.
Ce bien rare dans le secteur offre une opportunité unique d'implantation pour toute entreprise souhaitant développer sa visibilité au coeur de Sète, dans un environnement attractif mêlant commerce, tourisme et vie locale.
Régime Fiscal : T.V.A.
Dépôt de garantie : 2 mois de loyer HT/HC
Honoraires : 15 % HT du loyer annuel facial HT/HC à la charge du preneur
Information sur le Bail :
- Provision pour charges : 840 euros par an (charges de copropriété) - Provision pour Taxe foncière : estimation à 1 750 euros par an
Prestations :
Accessibilité:
Autoroute A9 Sortie 33 (14 mins)
Centre-Ville de Sète (5 mins à pied)
Aéroport Aéroport Montpellier (36 mins)
SNCF Gare de Sète (8 mins à pied)
Bus Bus urbains Lignes 4,7 et 8 (1 min à pied)
Les informations sur les risques auxquels ce bien est exposé sont disponibles sur le site Géorisques : www.georisques.gouv.fr
À louer en centre-ville de Sète, ce local commercial de 150 m² en rez-de-chaussée bénéficie d'un emplacement stratégique au bord du Canal Royal, entre la gare SNCF et les rues commerçantes du coeur de ville.
Offrant une excellente visibilité grâce à sa façade sur un axe passant et touristique, ce local professionnel conviendra parfaitement pour une activité commerciale, de service ou de bureaux. Sa configuration et sa situation permettent une grande variété d'usages.
Ce bien rare dans le secteur offre une opportunité unique d'implantation pour toute entreprise souhaitant développer sa visibilité au coeur de Sète, dans un environnement attractif mêlant commerce, tourisme et vie locale.
| Étage | Type | Surfaces | Dispo | Loyer | Charges | Type de bailRév. annuelle |
|---|---|---|---|---|---|---|
| RDC | Locaux Commerciaux | 150 | Immédiate | 2590 an HT | 3-6-9 ansA définir en fonction du projet |
Régime Fiscal : T.V.A.
Dépôt de garantie : 2 mois de loyer HT/HC
Honoraires : 15 % HT du loyer annuel facial HT/HC à la charge du preneur
Information sur le Bail :
- Provision pour charges : 840 euros par an (charges de copropriété) - Provision pour Taxe foncière : estimation à 1 750 euros par an
Prestations :
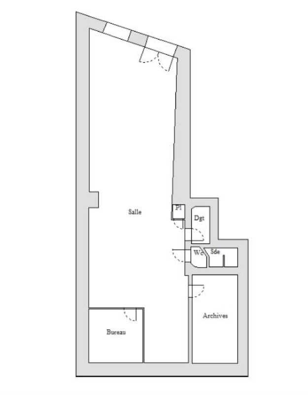
- Ce local se compose de :
- 150 m2 de commerce ou bureaux
- 4 bureaux individuelles et 1 pièce de réserve
- Caractéristiques complémentaires :
- rideau métallique motorisé
- PMR
- porte vitrée coulissante automatique
- équipements alarme et vidéosurveillance existants
- équipement alarme incendie
- baie de brassage informatique
- un wc et une douche.
- Stationnements sur chaussée devant le local. 2 Parkings publics à moins de 5 mn à pied.
- Surface RDC : 150 m²
Accessibilité:
Autoroute A9 Sortie 33 (14 mins)
Centre-Ville de Sète (5 mins à pied)
Aéroport Aéroport Montpellier (36 mins)
SNCF Gare de Sète (8 mins à pied)
Bus Bus urbains Lignes 4,7 et 8 (1 min à pied)
Les informations sur les risques auxquels ce bien est exposé sont disponibles sur le site Géorisques : www.georisques.gouv.fr
Voir plus
Afficher les consommations énergétiques
Favoris
Exporter
Appeler
Contacter
Signaler cette annonce
