Nous sommes Immprove, une grande équipe de plus de 200 experts en immobilier d’entreprise, implantés localement avec plus de 20 agences sur tout le territoire.Depuis 2009, notre proximité, notre ét ...
En savoir plus

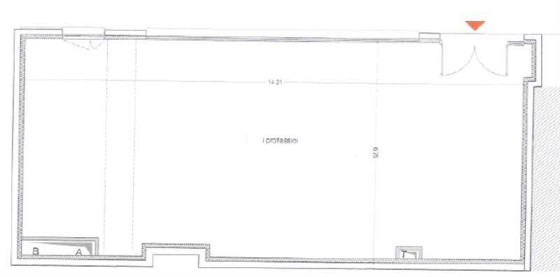
94 m²
HT HC
Location local commercial - 94 m²
Nogent-sur-Marne (94130)
Dernière mise à jour : Il y a 13 jours
Immprove vous propose, en coeur, de ville de Nogent-sur-Marne, à proximité de la Place du Marché, nous vous proposons à la location une surface commerciale en rez-de-chaussée de 93,59 m2. Loyer annuel 44 000 euros HT/HC.
Régime Fiscal : T.V.A. (20%)
Dépôt de garantie : 3 mois de loyer HT HC
Honoraires : 30% HT du loyer annuel HT HC à la charge du preneur
Information sur le Bail :
. . Provisions pour charges : 10 % HT du loyer HT HC, avec régularisation annuelle
Prestations :
Accessibilité:
RER Nogent Le Perreux (E)
RER Nogent-sur-Marne (A)
Autoroute A4
Autoroute A86
Les informations sur les risques auxquels ce bien est exposé sont disponibles sur le site Géorisques : www.georisques.gouv.fr
| Étage | Type | Surfaces | Dispo | Loyer | Charges | Type de bailRév. annuelle |
|---|---|---|---|---|---|---|
| RDC | Locaux Commerciaux | 93,59 | Immédiate | 470,14 m²/an HT HC | Bail Commercial 6-9-12 ansselon l'indice des loyers commerciaux (ILC) |
Régime Fiscal : T.V.A. (20%)
Dépôt de garantie : 3 mois de loyer HT HC
Honoraires : 30% HT du loyer annuel HT HC à la charge du preneur
Information sur le Bail :
. . Provisions pour charges : 10 % HT du loyer HT HC, avec régularisation annuelle
Prestations :
- Immeuble neuf
- Accès privatif sur rue
- Immeuble de 2019
- Belle visibilité
- Grande façade sur rue
- Surface RDC : 93,59 m²
Accessibilité:
RER Nogent Le Perreux (E)
RER Nogent-sur-Marne (A)
Autoroute A4
Autoroute A86
Les informations sur les risques auxquels ce bien est exposé sont disponibles sur le site Géorisques : www.georisques.gouv.fr
Voir plus
Afficher les consommations énergétiques
Favoris
Exporter
Appeler
Contacter
Signaler cette annonce
