Nous sommes Immprove, une grande équipe de plus de 200 experts en immobilier d’entreprise, implantés localement avec plus de 20 agences sur tout le territoire.Depuis 2009, notre proximité, notre ét ...
En savoir plus

196 m²
HT HC
Location local commercial - 196 m²
Nantes (44000)
Dernière mise à jour : Il y a 11 jours
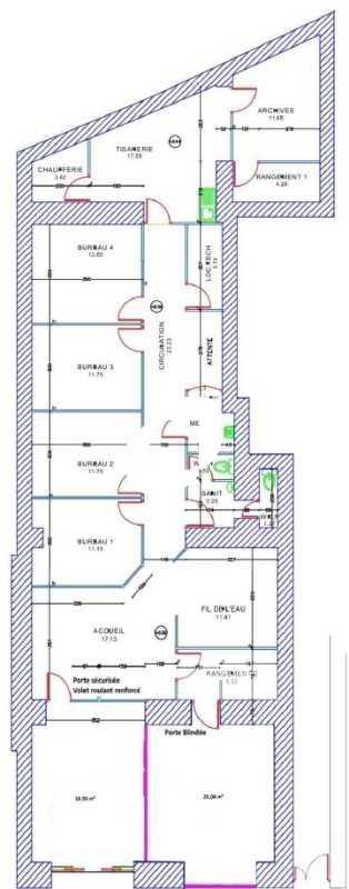
ILE-DE-NANTES / REPUBLIQUE - Immprove vous propose à la location ou à l'acquisition un local commercial ERP au coeur d'un secteur en développement avec une très bonne visibilité.
Vous bénéficiez de 196m2 en RDC à aménager selon vos besoins.
Impôt Foncier : 3643 €/
Régime Fiscal : T.V.A. (20%)
Dépôt de garantie : 3 mois de loyer HT HC
Honoraires : 30% du loyer annuel HT HC à la charge du preneur
Prestations :
Les informations sur les risques auxquels ce bien est exposé sont disponibles sur le site Géorisques : www.georisques.gouv.fr
Vous bénéficiez de 196m2 en RDC à aménager selon vos besoins.
| Étage | Type | Surfaces | Dispo | Loyer | Charges | Type de bailRév. annuelle |
|---|---|---|---|---|---|---|
| RDC | Locaux Commerciaux | 196 | Immédiate | 198,98 /m²/an HT HC | 400 / trimestre HT | Bail Commercial 3-6-9 ansselon l'indice des loyers des activités tertiaires (ILAT) |
Impôt Foncier : 3643 €/
Régime Fiscal : T.V.A. (20%)
Dépôt de garantie : 3 mois de loyer HT HC
Honoraires : 30% du loyer annuel HT HC à la charge du preneur
Prestations :
- ERP : Catégorie non définie
- Accès PMR indépendant
- Accueil / surface de vente
- 5 bureaux cloisonnés
- Espaces de stockage
- Espace de repos
- Kichenette
- Sanitaires
- Local vélos
- Sol : Carrelage
- Faux plafond
- Cloisonnement amovible (vitré avec stores)
- Climatisation réversible
- Baie de brassage
- Plinthes techniques
- Rideau métalique
- Porte électrique
- Double vitrine
- Belle visibilité
- Type de rue :Rue passante
- Surface RDC : 196 m²
- Sanitaires : oui
Les informations sur les risques auxquels ce bien est exposé sont disponibles sur le site Géorisques : www.georisques.gouv.fr
Voir plus
Afficher les consommations énergétiques
Favoris
Exporter
Appeler
Contacter
Signaler cette annonce
