Nous sommes Immprove, une grande équipe de plus de 200 experts en immobilier d’entreprise, implantés localement avec plus de 20 agences sur tout le territoire.Depuis 2009, notre proximité, notre ét ...
En savoir plus

355 m²
HT HC
Location local commercial - 355 m²
Carquefou (44470)
Dernière mise à jour : Il y a 11 jours
IMMPROVE vous propose un local commercial avec une très bonne visibilité sur la route de Paris.
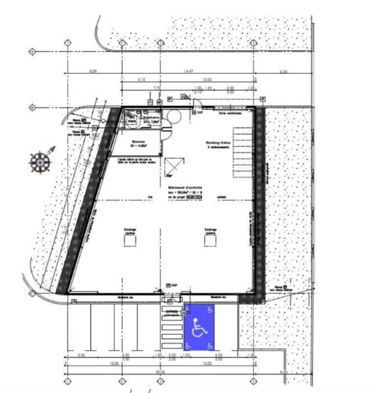
Ce local se compose de 2 bureaux, sanitaires, une surface commerciale et une surface de stockage avec accès par une porte sectionnelle motorisée.
Impôt Foncier : 2000 €//an HT
Régime Fiscal : T.V.A. (20%)
Dépôt de garantie : 2 mois de loyer HT/HC
Paiement Loyer : Trimestriel
Honoraires : 30 % HT du loyer annuel HT HC à la charge du preneur.
Prestations :
Accessibilité:
Autoroute Route de Paris
Route Boulevard Périphérique D723 - Route de Paris - Rond Point de la Belle Etoile
SNCF Gare de Nantes à 20min en voiture
Bus Véga (Ligne 77)
Les informations sur les risques auxquels ce bien est exposé sont disponibles sur le site Géorisques : www.georisques.gouv.fr
Ce local se compose de 2 bureaux, sanitaires, une surface commerciale et une surface de stockage avec accès par une porte sectionnelle motorisée.
| Étage | Type | Surfaces | Dispo | Loyer | Charges | Type de bailRév. annuelle |
|---|---|---|---|---|---|---|
| RDC | Locaux Commerciaux | 355 | 1er septembre 2025 | 128,55 m²/an HT HC | 2,54 /m²/an HT | Bail Commercial 3-6-9 ansselon l'indice des loyers commerciaux (ILC) |
Impôt Foncier : 2000 €//an HT
Régime Fiscal : T.V.A. (20%)
Dépôt de garantie : 2 mois de loyer HT/HC
Paiement Loyer : Trimestriel
Honoraires : 30 % HT du loyer annuel HT HC à la charge du preneur.
Prestations :
- ERP : Catégorie non définie
- Bâtiment indépendant
- Façade en bardage
- Accès véhicules légers
- Accès poids lourds
- Accès PMR
- Climatisation réversible
- Aérothermes
- Espace ouvert
- Bureaux cloisonnés
- Locaux E.R.P.
- Possibilité de normes E.R.P.
- Chauffage par aérotherme
- Climatisation réversible
- Porte sectionnelle de plain-pied :3.5X4
- Immeuble indépendant
- Surface RDC : 355 m²
Accessibilité:
Autoroute Route de Paris
Route Boulevard Périphérique D723 - Route de Paris - Rond Point de la Belle Etoile
SNCF Gare de Nantes à 20min en voiture
Bus Véga (Ligne 77)
Les informations sur les risques auxquels ce bien est exposé sont disponibles sur le site Géorisques : www.georisques.gouv.fr
Voir plus
Afficher les consommations énergétiques
Favoris
Exporter
Appeler
Contacter
Signaler cette annonce
