Arthur Loyd Bretagne est une société de conseil en immobilier d'entreprise de la métropole brestoise. Spécialiste de l’immobilier d’entreprise sur le Finistère, les Côtes-d’Armor, l’Ille et Vilaine ...
En savoir plus

40 m²
Loyer sur demande
Location local commercial - 40 m²
Brest (29200)
Dernière mise à jour : Il y a 2 jours
LOCAL COMMERCIAL 40 M² HYPER CENTRE-VILLE BREST
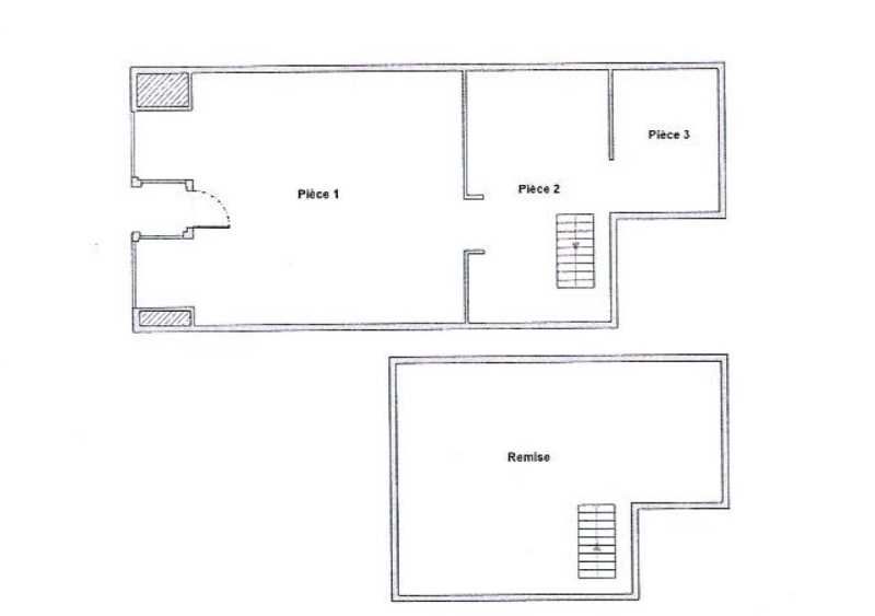
Arthur Loyd vous propose à la location, un local commercial d'environ 40 m² avec réserve situé en hyper centre-ville de Brest, à deux pas de la rue de Siam.
Impôt Foncier : 663 €/
Dépôt de garantie : 2 mois de loyer HT/HC
Information sur le Bail :
Option 2 : - Pas de porte : 20 000 euros HT - Loyer : 9 804 euros HT / an
Prestations :
Accessibilité:
Gare Gare SNCF à 5min
Tramway à proximité
Les informations sur les risques auxquels ce bien est exposé sont disponibles sur le site Géorisques : www.georisques.gouv.fr
Arthur Loyd vous propose à la location, un local commercial d'environ 40 m² avec réserve situé en hyper centre-ville de Brest, à deux pas de la rue de Siam.
| Étage | Type | Surfaces | Dispo | Loyer | Charges | Type de bailRév. annuelle |
|---|---|---|---|---|---|---|
| RDC | Locaux Commerciaux | 40 |
Impôt Foncier : 663 €/
Dépôt de garantie : 2 mois de loyer HT/HC
Information sur le Bail :
Option 2 : - Pas de porte : 20 000 euros HT - Loyer : 9 804 euros HT / an
Prestations :
- Espace de stockage en mezzanine d'environ 14 m²
- Cave d'environ 12 m²
- Sanitaires partagés
- Forme juridique : SARL
- Surface RDC : 40 m²
Accessibilité:
Gare Gare SNCF à 5min
Tramway à proximité
Les informations sur les risques auxquels ce bien est exposé sont disponibles sur le site Géorisques : www.georisques.gouv.fr
Voir plus
Afficher les consommations énergétiques
Favoris
Exporter
Appeler
Contacter
Signaler cette annonce
