Nous sommes Immprove, une grande équipe de plus de 200 experts en immobilier d’entreprise, implantés localement avec plus de 20 agences sur tout le territoire.Depuis 2009, notre proximité, notre ét ...
En savoir plus

800 m² divisible dès 400 m²
Activité/Entrepôt à vendre - 800 m²
Audenge (33980)
Dernière mise à jour : Il y a 17 jours
IDEAL ARTISANS
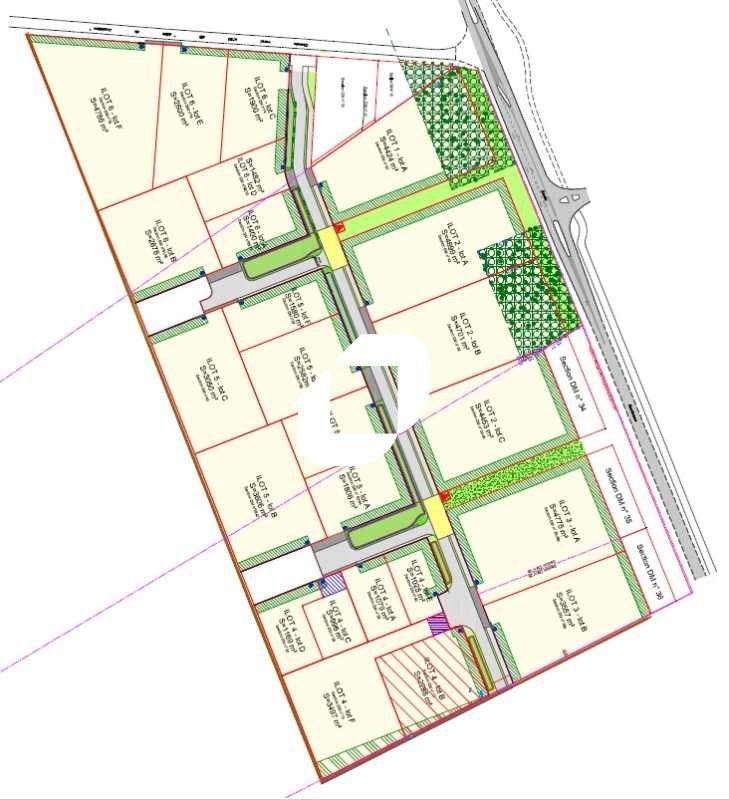
Situé sur la commune d'Audenge, au sein de la nouvelle zone d'activité P2A, IMMPROVE vous propose à la vente ou à la location des cellules d'activités à construire, divisibles à partir de 400 m². Idéal artisans! Environnement paysager. Locaux livrés brut de béton avec compteur électrique individuel triphasé. Le site bénéficiera de 14 places de parking goudronnées.
Possibilité de projet clé en mains. Livraison 12 mois après accord.
Pour toutes vos recherches immobilières professionnelles, nous sommes à votre entière disposition afin d'échanger sur votre projet!
Régime Fiscal : TVA (20%)
Honoraires : 5 % HT du prix de vente HT à la charge de l'acquéreur
Prestations :
Accessibilité:
Autoroute Autoroute: A660 Sortie 2
Les informations sur les risques auxquels ce bien est exposé sont disponibles sur le site Géorisques : www.georisques.gouv.fr
Situé sur la commune d'Audenge, au sein de la nouvelle zone d'activité P2A, IMMPROVE vous propose à la vente ou à la location des cellules d'activités à construire, divisibles à partir de 400 m². Idéal artisans! Environnement paysager. Locaux livrés brut de béton avec compteur électrique individuel triphasé. Le site bénéficiera de 14 places de parking goudronnées.
Possibilité de projet clé en mains. Livraison 12 mois après accord.
Pour toutes vos recherches immobilières professionnelles, nous sommes à votre entière disposition afin d'échanger sur votre projet!
| Étage | Type | Surfaces | Dispo | Prix(m²) | Charges | Honoraires | Fiscal |
|---|---|---|---|---|---|---|---|
| RDC | Activités | 400 | 12 mois après accord | 1500 m² HT | n.c. | 5 % HT du prix de vente HT à la charge de l'acquéreur | TVA (20%) |
| RDC | Activités | 400 | 12 mois après accord | 1500 m² HT | n.c. | 5 % HT du prix de vente HT à la charge de l'acquéreur | TVA (20%) |
Régime Fiscal : TVA (20%)
Honoraires : 5 % HT du prix de vente HT à la charge de l'acquéreur
Prestations :
- Immeuble neuf
- Structure métallique
- Façade en bardage double peau isolé
- Accès véhicules légers et petits porteurs
- Aire de chargement
- Possibilité fibre optique
- Neuf/Restructuré
- Locaux livrés brut de béton,
- Charge au sol : 1, 5 tonnes /m²
- Menuiserie en R+1
- Compteur triphasé
- Hauteur libre : de 6 à 7 m
- Porte sectionnelle de plain-pied
- Dimensions porte : 4 (H) x 3 (L) m
- 14 places de parking
- Surface RDC : 800 m²
- Surface terrain : 0
Accessibilité:
Autoroute Autoroute: A660 Sortie 2
Les informations sur les risques auxquels ce bien est exposé sont disponibles sur le site Géorisques : www.georisques.gouv.fr
Voir plus
Afficher les consommations énergétiques
Favoris
Exporter
Appeler
Contacter
Signaler cette annonce
