Arthur Loyd Bordeaux fait partie du 1er réseau national de conseil en immobilier d'entreprise (plus de 75 implantations et 440 collaborateurs sur toute la France et DOM TOM).En tant que spécialiste ...
En savoir plus

100 m²
Fonds de commerce café hôtel restaurant à vendre
Bordeaux (33000)
Dernière mise à jour : Il y a 2 jours
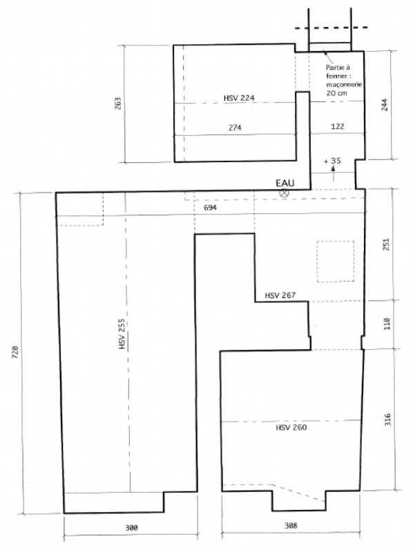
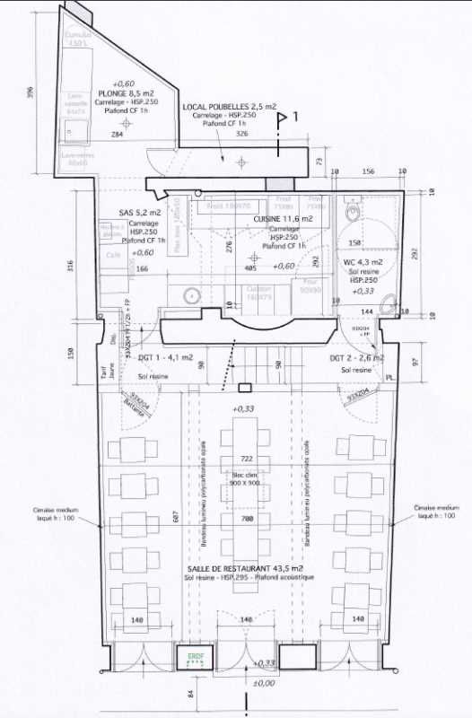
Cession de Fonds de Commerce 100 m² - Restaurant à Bordeaux Centre
Arthur Loyd Bordeaux propose la cession d'un fonds de commerce pour un restaurant entièrement rénové d'environ 100 m², situé en plein coeur de Bordeaux.
Ce restaurant bénéficie d'un emplacement stratégique sur un axe très passant, en hyper centre-ville, à proximité immédiate du Triangle d'Or.
Cette affaire saine est idéale pour un couple de professionnels souhaitant s'établir dans une zone à forte affluence.
Loyer : 30240 € an HT HC
Régime Fiscal : Droits d'enregistrement
Dépôt de garantie : 3 mois de loyer HT/HC
Honoraires : 7% HT du prix de vente HT/HD et 30% du montant du loyer annuel HTHC à la charge de l'acquéreur
Prestations :
Accessibilité:
Bus Quinconces (BUS-2, BUS-3, BUS-26, BUS), Gambetta (BUS-4, BUS-12, BUS-15)
Tram Sainte Catherine (TRAMWAY-A), Grand Théâtre (TRAMWAY-B), Quinconces (TRAMWAY-C, TRAMWAY-D)
Afficher notre barème d'honoraires.
Les informations sur les risques auxquels ce bien est exposé sont disponibles sur le site Géorisques : www.georisques.gouv.fr
Arthur Loyd Bordeaux propose la cession d'un fonds de commerce pour un restaurant entièrement rénové d'environ 100 m², situé en plein coeur de Bordeaux.
Ce restaurant bénéficie d'un emplacement stratégique sur un axe très passant, en hyper centre-ville, à proximité immédiate du Triangle d'Or.
Cette affaire saine est idéale pour un couple de professionnels souhaitant s'établir dans une zone à forte affluence.
| Étage | Type | Surfaces | Dispo | Prix(m²) | Charges | Honoraires | Fiscal |
|---|---|---|---|---|---|---|---|
| Locaux Commerciaux | 100 | Immédiate | n.c. | n.c. | 7% HT du prix de vente HT/HD et 30% du montant du loyer annuel HTHC à la charge de l'acquéreur | Droits d'enregistrement |
Loyer : 30240 € an HT HC
Régime Fiscal : Droits d'enregistrement
Dépôt de garantie : 3 mois de loyer HT/HC
Honoraires : 7% HT du prix de vente HT/HD et 30% du montant du loyer annuel HTHC à la charge de l'acquéreur
Prestations :
Accessibilité:
Bus Quinconces (BUS-2, BUS-3, BUS-26, BUS), Gambetta (BUS-4, BUS-12, BUS-15)
Tram Sainte Catherine (TRAMWAY-A), Grand Théâtre (TRAMWAY-B), Quinconces (TRAMWAY-C, TRAMWAY-D)
Afficher notre barème d'honoraires.
Les informations sur les risques auxquels ce bien est exposé sont disponibles sur le site Géorisques : www.georisques.gouv.fr
Voir plus
Afficher les consommations énergétiques
Favoris
Exporter
Appeler
Contacter
Signaler cette annonce
