Arthur Loyd Nord-Pas-de-Calais est un cabinet de conseil en immobilier d'entreprise sur les Hauts-de-France et plus particulièrement sur les secteurs du bassin de Valenciennes, de Cambrai ou encore ...
En savoir plus

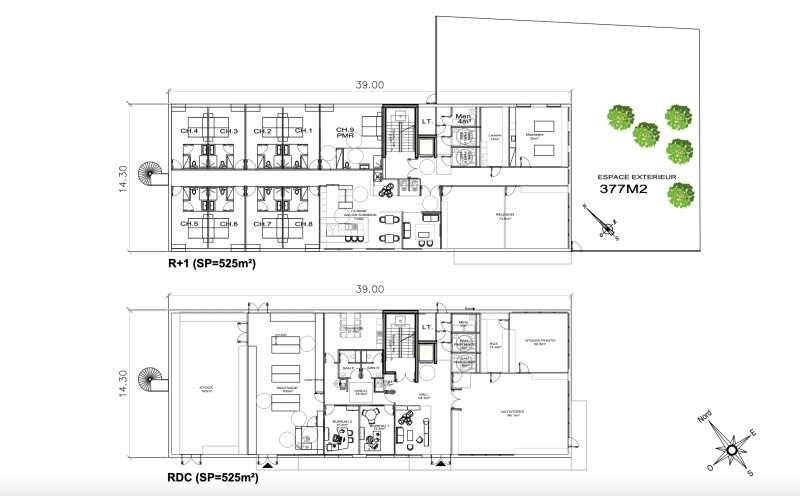
1 050 m² divisible dès 525 m²
Bureau à vendre - 1050 m²
Calais (62100)
Dernière mise à jour : Il y a 23 jours
CLÉS EN MAIN - BÂTIMENT TERTIAIRE OU D'ACTIVITÉ À L'ENTRÉE DE LA VILLE DE CALAIS
CLÉS EN MAIN - Bureaux neufs à Calais, emplacement stratégique !
Profitez d'une opportunité exceptionnelle avec la construction d'un bâtiment neuf situé à la sortie de l'autoroute A16, à l'entrée même de la ville de Calais.
Ce projet moderne vous propose plusieurs plateaux de bureaux livrés "clé en main", disponibles en rez-de-chaussée et en R+1, prêts à accueillir votre activité professionnelle dans un cadre fonctionnel et contemporain.
Ce que vous offre ce bâtiment :
- Locaux neufs, livrés prêts à l'usage, avec finitions soignées
- Plateaux modulables, adaptés à vos besoins, facilement divisibles
- Emplacement idéal avec accès direct à l'autoroute A16
- Visibilité optimale à l'entrée de Calais, facilitant l'accès pour vos collaborateurs et clients
Conception moderne et respect des normes en vigueur (sécurité, accessibilité, performance énergétique)
Un cadre professionnel adapté à vos ambitions
Ce bâtiment est parfait pour les entreprises recherchant des bureaux fonctionnels, ou professions libérales, de service en pied d'immeuble, accessibles et rapidement opérationnels, dans un environnement dynamique et en développement.
Ne manquez pas cette chance d'installer votre activité dans un immeuble neuf, pensé pour la performance et la praticité !
Contactez-nous dès maintenant pour plus d'informations, plans et disponibilités.
Dépôt de garantie : 3 mois de loyer HT/HC
Prestations :
Les informations sur les risques auxquels ce bien est exposé sont disponibles sur le site Géorisques : www.georisques.gouv.fr
CLÉS EN MAIN - Bureaux neufs à Calais, emplacement stratégique !
Profitez d'une opportunité exceptionnelle avec la construction d'un bâtiment neuf situé à la sortie de l'autoroute A16, à l'entrée même de la ville de Calais.
Ce projet moderne vous propose plusieurs plateaux de bureaux livrés "clé en main", disponibles en rez-de-chaussée et en R+1, prêts à accueillir votre activité professionnelle dans un cadre fonctionnel et contemporain.
Ce que vous offre ce bâtiment :
- Locaux neufs, livrés prêts à l'usage, avec finitions soignées
- Plateaux modulables, adaptés à vos besoins, facilement divisibles
- Emplacement idéal avec accès direct à l'autoroute A16
- Visibilité optimale à l'entrée de Calais, facilitant l'accès pour vos collaborateurs et clients
Conception moderne et respect des normes en vigueur (sécurité, accessibilité, performance énergétique)
Un cadre professionnel adapté à vos ambitions
Ce bâtiment est parfait pour les entreprises recherchant des bureaux fonctionnels, ou professions libérales, de service en pied d'immeuble, accessibles et rapidement opérationnels, dans un environnement dynamique et en développement.
Ne manquez pas cette chance d'installer votre activité dans un immeuble neuf, pensé pour la performance et la praticité !
Contactez-nous dès maintenant pour plus d'informations, plans et disponibilités.
| Étage | Type | Surfaces | Dispo | Prix(m²) | Charges | Honoraires | Fiscal |
|---|---|---|---|---|---|---|---|
| 1 | Bureaux | 525 | Après travaux | 1200 m² HT HD | n.c. | ||
| RDC | Bureaux | 525 | Après travaux | 1200 m² HT HD | n.c. |
Dépôt de garantie : 3 mois de loyer HT/HC
Prestations :
- Livraison " clé en main "
- Structure béton
- Toiture béton
- Menuiseries aluminium
- Bardage aluminium
- Santitaire PMR
- Accès PMR
- Ascenseur
- Escalier intérieur
- Surface RDC : 525 m²
Les informations sur les risques auxquels ce bien est exposé sont disponibles sur le site Géorisques : www.georisques.gouv.fr
Voir plus
Afficher les consommations énergétiques
Favoris
Exporter
Appeler
Contacter
Signaler cette annonce
