Nous sommes Immprove, une grande équipe de plus de 200 experts en immobilier d’entreprise, implantés localement avec plus de 20 agences sur tout le territoire.Depuis 2009, notre proximité, notre ét ...
En savoir plus

1 200 m²
Activité/Entrepôt à vendre - 1200 m²
Wolfisheim (67202)
Dernière mise à jour : Il y a 17 jours
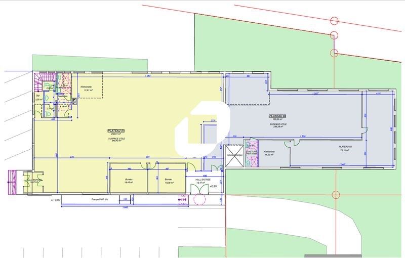
IMMPROVE propose à Wolfisheim une opportunité à vendre de 600 m² de bureaux avec possiblité de stockage en sous-sol.
Le bâtiment a été refait à neuf en toiture et isolation, climatisation, reste à terminer, les cloisonnements, sols et sanitaires.
Le bâtiment dispose de son foncier privatif avec parking et rampe d'accès au sous sol.
Régime Fiscal : Droits d'enregistrement
Honoraires : 5% HT du prix de vente HD HT à la charge de l'acquéreur
Prestations :
Accessibilité:
Autoroute A35 - Sortie 5 Wolfisheim
Tram Ligne F
Bus Ligne 240
Les informations sur les risques auxquels ce bien est exposé sont disponibles sur le site Géorisques : www.georisques.gouv.fr
Le bâtiment a été refait à neuf en toiture et isolation, climatisation, reste à terminer, les cloisonnements, sols et sanitaires.
Le bâtiment dispose de son foncier privatif avec parking et rampe d'accès au sous sol.
| Étage | Type | Surfaces | Dispo | Prix(m²) | Charges | Honoraires | Fiscal |
|---|---|---|---|---|---|---|---|
| RDC | Bureaux | 600 | n.c. | n.c. | 5% HT du prix de vente HD HT à la charge de l'acquéreur | Droits d'enregistrement | |
| SS | Activités | 600 | n.c. | n.c. | 5% HT du prix de vente HD HT à la charge de l'acquéreur | Droits d'enregistrement | |
| Total Cellule | Activités | 1200 | Immédiate | 833,33 m² HD | n.c. | 5% HT du prix de vente HD HT à la charge de l'acquéreur | Droits d'enregistrement |
Régime Fiscal : Droits d'enregistrement
Honoraires : 5% HT du prix de vente HD HT à la charge de l'acquéreur
Prestations :
- Ossature béton
- Toiture bac acier isolée
- Murs maçonnerie + isolation intérieur
- Sol béton
- Hauteur libre : 3 m environ
- Climatisation réversible
- Fenêtres double vitrage
- 1 sous sol accessible par rampe pour stockage
- Immeuble indépendant
- Surface RDC : 600 m²
- Surface terrain : 1700
Accessibilité:
Autoroute A35 - Sortie 5 Wolfisheim
Tram Ligne F
Bus Ligne 240
Les informations sur les risques auxquels ce bien est exposé sont disponibles sur le site Géorisques : www.georisques.gouv.fr
Voir plus
Afficher les consommations énergétiques
Localisation et transport aux alentours
Favoris
Exporter
Appeler
Contacter
Signaler cette annonce
