Nous sommes Immprove, une grande équipe de plus de 200 experts en immobilier d’entreprise, implantés localement avec plus de 20 agences sur tout le territoire.Depuis 2009, notre proximité, notre ét ...
En savoir plus



853 m²
Bureau à vendre - 853 m²
Paris 12 (75012)
Dernière mise à jour : Il y a 3 jours
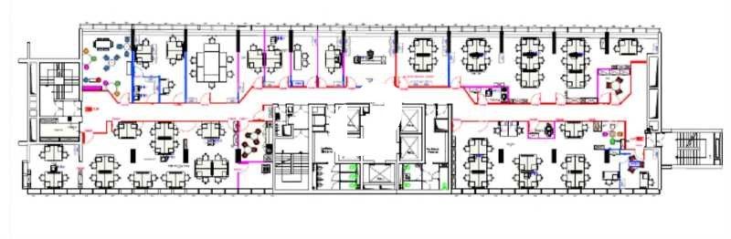
Immprove vous propose à la vente, en plein coeur de Gare de Lyon, un plateau de bureaux de 865m² au 11ème étage. Le plateau est fonctionnel, lumineux et offre une vue dégagée. Quartier dynamique et bien desservi par les transports en commun (RER A et D / métro 1 et 14 / Gare SNCF). Hall d'accueil rénové récemment. 13 places de parkings en sous-sol complètent ce lot.
Impôt Foncier : 38,17 €/m²/an HT
Régime Fiscal : Droits d'enregistrement
Honoraires : 3,5% HT du prix de vente net vendeur HT HC
Taxe Bureau : 27,98 €/m²/an
Prestations :
Accessibilité:
SNCF Gare de Lyon (R)
Métro Gare de Lyon (1,14)
RER Paris Gare de Lyon (A,D)
Bus Gare de Lyon (24,87)
Bus Gare de Lyon - Maison de la RATP (63,72,77,BUSM14)
Bus Van Gogh (57)
Route Gare de Lyon - Maison de la RATP (N,31,N32,N34,N35)
Les informations sur les risques auxquels ce bien est exposé sont disponibles sur le site Géorisques : www.georisques.gouv.fr
| Étage | Type | Surfaces | Dispo | Prix(m²) | Charges | Honoraires | Fiscal |
|---|---|---|---|---|---|---|---|
| 11 | Bureaux | 853,1 | Immédiate | 12894,15 m² HD | 154,59 m²/an HT | 3,5% HT du prix de vente net vendeur HT HC | Droits d'enregistrement |
| SS | Parkings | Immédiate | n.c. | n.c. | 3,5% HT du prix de vente net vendeur HT HC | Droits d'enregistrement |
Impôt Foncier : 38,17 €/m²/an HT
Régime Fiscal : Droits d'enregistrement
Honoraires : 3,5% HT du prix de vente net vendeur HT HC
Taxe Bureau : 27,98 €/m²/an
Prestations :
- Immeuble de bureaux en IGH
- Façade mur rideau
- Accès PMR
- Contrôle d'accès
- Gardiennage
- Télésurveillance
- PC sécurité
- Digicode
- Accès sécurisé par badge
- Climatisation réversible
- Fibre optique
- Hôtesse d'accueil
- R.I.E.
- Immeuble IGH
- Hall d'accueil rénové avec hôtesse
- PC Sécurité 24/24
- Salles de réunion mutualisées
- Ascenseurs
- Climatisation réversible
- Parkings en sous-sol
- Espace réfectoire
Accessibilité:
SNCF Gare de Lyon (R)
Métro Gare de Lyon (1,14)
RER Paris Gare de Lyon (A,D)
Bus Gare de Lyon (24,87)
Bus Gare de Lyon - Maison de la RATP (63,72,77,BUSM14)
Bus Van Gogh (57)
Route Gare de Lyon - Maison de la RATP (N,31,N32,N34,N35)
Les informations sur les risques auxquels ce bien est exposé sont disponibles sur le site Géorisques : www.georisques.gouv.fr
Voir plus
Afficher les consommations énergétiques
Favoris
Exporter
Appeler
Contacter
Signaler cette annonce
