Nous sommes Immprove, une grande équipe de plus de 200 experts en immobilier d’entreprise, implantés localement avec plus de 20 agences sur tout le territoire.Depuis 2009, notre proximité, notre ét ...
En savoir plus

1 898 m² divisible dès 350 m²
LE RASPAIL - Bureau à vendre - 1898 m²
Ivry-sur-Seine (94200)
Dernière mise à jour : Il y a 2 mois
PLATEAUX DE BUREAUX PROCHE PARIS & METRO à VENDRE
Immeuble LE RASPAIL
Découvrez une occasion rare et exceptionnelle pour votre entreprise avec cette offre exclusive proposée par IMMPROVE. Située à Ivry-sur-Seine, l'une des zones les plus dynamiques de la couronne parisienne, cette propriété bénéficie d'un emplacement stratégique à proximité immédiate du Métro 7 et du RER C, facilitant ainsi l'accès quotidien de vos collaborateurs et de vos partenaires commerciaux. Ces bureaux, à vendre, s'étendent sur une surface totale de 1 877 m², avec une modularité pensée pour s'adapter parfaitement à vos besoins, allant de 346 m² pour des configurations plus restreintes, jusqu'à des espaces vastes et décloisonnés, idéaux pour stimuler la créativité et la collaboration. Un atout essentiel de cette offre est la présence de terrasses privatives, un luxe indéniable qui permettra d'offrir à vos équipes un cadre de travail épanouissant et une rare opportunité de profiter d'un espace extérieur en milieu urbain. L'immeuble est conçu pour répondre aux exigences modernes, équipé d'un monte-charge pour faciliter vos opérations logistiques. De plus, chaque bureau est doté de l'air conditionné, garantissant un confort thermique optimal tout au long de l'année. En mettant l'accent sur l'accessibilité, nous sommes également ouverts à la transformation des plateaux pour les rendre ERP, avec des aménagements pour les personnes à mobilité réduite (PMR), assurant ainsi que votre entreprise est en phase avec les normes inclusives et modernes. Cette attention aux détails fait de ce bien une opportunité unique non seulement pour son emplacement stratégique mais aussi par sa flexibilité d'aménagement et sa capacité à offrir un environnement de travail optimal et accessible. Faites le pas vers l'avenir avec IMMPROVE et redéfinissez votre manière de travailler dans un espace conçu pour inspirer, tout en offrant la praticité et le confort dont vous avez besoin. Ne manquez pas cette opportunité unique de vous installer dans un lieu qui allie parfaitement fonctionnalité, accessibilité et élégance moderne. Contactez-nous dès aujourd'hui pour discuter des options qui s'offrent à vous et pour découvrir comment ce bien peut devenir l'épicentre stratégique de votre entreprise.
Impôt Foncier : 38 €/m²/an HT
Régime Fiscal : Droits d'enregistrement
Honoraires : A la charge de l'acquéreur
Prestations :
Accessibilité:
Bus Saint-Just (BUS-182)
Métro Mairie d'Ivry (METRO-7)
RER IVRY-SUR-SEINE (RER C)
Transilien Ivry-sur-Seine (TRAIN-RER C)
SNCF Ivry-sur-Seine (France)
Les informations sur les risques auxquels ce bien est exposé sont disponibles sur le site Géorisques : www.georisques.gouv.fr
Immeuble LE RASPAIL
Découvrez une occasion rare et exceptionnelle pour votre entreprise avec cette offre exclusive proposée par IMMPROVE. Située à Ivry-sur-Seine, l'une des zones les plus dynamiques de la couronne parisienne, cette propriété bénéficie d'un emplacement stratégique à proximité immédiate du Métro 7 et du RER C, facilitant ainsi l'accès quotidien de vos collaborateurs et de vos partenaires commerciaux. Ces bureaux, à vendre, s'étendent sur une surface totale de 1 877 m², avec une modularité pensée pour s'adapter parfaitement à vos besoins, allant de 346 m² pour des configurations plus restreintes, jusqu'à des espaces vastes et décloisonnés, idéaux pour stimuler la créativité et la collaboration. Un atout essentiel de cette offre est la présence de terrasses privatives, un luxe indéniable qui permettra d'offrir à vos équipes un cadre de travail épanouissant et une rare opportunité de profiter d'un espace extérieur en milieu urbain. L'immeuble est conçu pour répondre aux exigences modernes, équipé d'un monte-charge pour faciliter vos opérations logistiques. De plus, chaque bureau est doté de l'air conditionné, garantissant un confort thermique optimal tout au long de l'année. En mettant l'accent sur l'accessibilité, nous sommes également ouverts à la transformation des plateaux pour les rendre ERP, avec des aménagements pour les personnes à mobilité réduite (PMR), assurant ainsi que votre entreprise est en phase avec les normes inclusives et modernes. Cette attention aux détails fait de ce bien une opportunité unique non seulement pour son emplacement stratégique mais aussi par sa flexibilité d'aménagement et sa capacité à offrir un environnement de travail optimal et accessible. Faites le pas vers l'avenir avec IMMPROVE et redéfinissez votre manière de travailler dans un espace conçu pour inspirer, tout en offrant la praticité et le confort dont vous avez besoin. Ne manquez pas cette opportunité unique de vous installer dans un lieu qui allie parfaitement fonctionnalité, accessibilité et élégance moderne. Contactez-nous dès aujourd'hui pour discuter des options qui s'offrent à vous et pour découvrir comment ce bien peut devenir l'épicentre stratégique de votre entreprise.
| Étage | Type | Surfaces | Dispo | Prix(m²) | Charges | Honoraires | Fiscal |
|---|---|---|---|---|---|---|---|
| 6 | Bureaux | 360,6 | Immédiate | 2900 m² HD | 61 m²/an HT | A la charge de l'acquéreur | Droits d'enregistrement |
| 3 | Bureaux | 403,7 | Immédiate | 2900 m² HD | 61 m²/an HT | A la charge de l'acquéreur | Droits d'enregistrement |
| 1 | Bureaux | 406,1 | Immédiate | 2900 m² HD | 61 m²/an HT | A la charge de l'acquéreur | Droits d'enregistrement |
| 1 | Bureaux | 378 | Immédiate | 2900 m² HD | 61 m²/an HT | A la charge de l'acquéreur | Droits d'enregistrement |
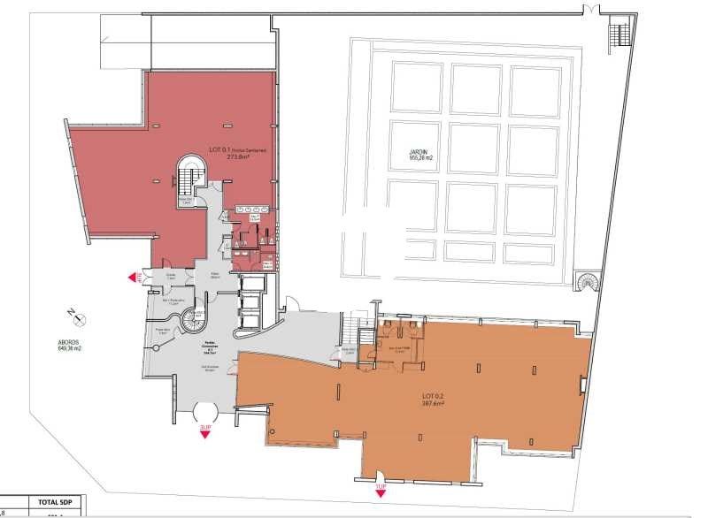
| RDC | Bureaux | 350 | Immédiate | 2900 m² HD | 61 m²/an HT | A la charge de l'acquéreur | Droits d'enregistrement |
| 1SS | Archives | 127 | Immédiate | 1000 m² HD | 61 m²/an HT | A la charge de l'acquéreur | Droits d'enregistrement |
| 2SS | Archives | 276 | Immédiate | 1000 m² HD | 61 m²/an HT | A la charge de l'acquéreur | Droits d'enregistrement |
| Parkings | Immédiate | 12000 m² HD | n.c. | A la charge de l'acquéreur | Droits d'enregistrement |
Impôt Foncier : 38 €/m²/an HT
Régime Fiscal : Droits d'enregistrement
Honoraires : A la charge de l'acquéreur
Prestations :
- Immeuble moderne
- Façade en pierres agrafées
- Accès PMR
- Parties communes de bon standing
- Ascenseur PMR
- Contrôle d'accès
- Digicode
- Interphone
- Accès sécurisé par badge
- Climatisation réversible
- Fibre optique
- R.I.E à proximité
- Jardin paysager commun au RDC
- Façade ravalée
- 2 terrasses dont une terrasse privative au 6eme étage de 92,3 m²
- Archives : en sous sol
- Moquette
- Faux plafond
- Climatisation réversible
- Sanitaires privatifs
- Plateau du 1er étage en cours de rénovation
- Les deux plateaux du RDC sont accessibles PMR
- Surface RDC : 388,8 m²
Accessibilité:
Bus Saint-Just (BUS-182)
Métro Mairie d'Ivry (METRO-7)
RER IVRY-SUR-SEINE (RER C)
Transilien Ivry-sur-Seine (TRAIN-RER C)
SNCF Ivry-sur-Seine (France)
Les informations sur les risques auxquels ce bien est exposé sont disponibles sur le site Géorisques : www.georisques.gouv.fr
Voir plus
Afficher les consommations énergétiques
Localisation et transport aux alentours
Favoris
Exporter
Appeler
Contacter
Signaler cette annonce










