Nous sommes Immprove, une grande équipe de plus de 200 experts en immobilier d’entreprise, implantés localement avec plus de 20 agences sur tout le territoire.Depuis 2009, notre proximité, notre ét ...
En savoir plus

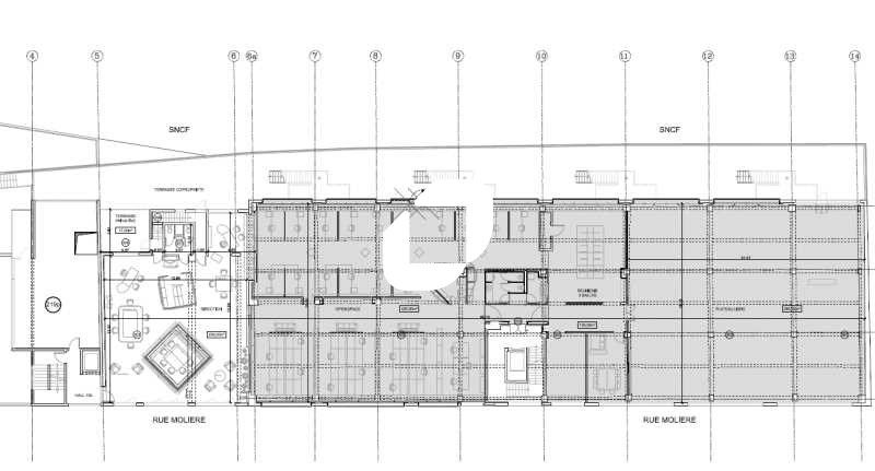
1 240 m² divisible dès 210 m²
Bureau à vendre - 1240 m²
Ivry-sur-Seine (94200)
Dernière mise à jour : Il y a 2 mois
BUREAUX A VENDRE PROCHE PARIS
À Ivry-sur-Seine, une opportunité rare se présente pour les entreprises cherchant à s'établir dans un cadre dynamique : deux plateaux de bureaux, proposés par IMMPROVE, sont désormais à vendre. Avec une superficie totale de 1 240 m², ces espaces modulables, divisibles à partir de 210 m², se distinguent par leur capacité à s'adapter aux besoins spécifiques de chaque activité. Confort et fonctionnalité sont au rendez-vous, offrant un cadre de travail optimal. Situés dans un secteur stratégique, ces locaux constituent un investissement de choix pour les entreprises en quête de croissance et de visibilité.
Impôt Foncier : 19,2 €/
Régime Fiscal : Droits d'enregistrement
Honoraires : 5% HT du prix de vente HD à la charge de l'acquéreur
Prestations :
Accessibilité:
Bus Jules Vanzuppe (BUS-325), Jules Vanzuppe (BUS-125), Victor Hugo-Bretagne (BUS-25)
RER IVRY-SUR-SEINE (RER C)
Route Quai d'Ivry à 9 minutes en voiture
Route Départementale D19
Autoroute Boulevard Périphérique: 10 minutes de la Sortie Quai d'Ivry
Autoroute A4 / A6
Transilien Ivry-sur-Seine (TRAIN)
SNCF Ivry-sur-Seine (France)
Les informations sur les risques auxquels ce bien est exposé sont disponibles sur le site Géorisques : www.georisques.gouv.fr
À Ivry-sur-Seine, une opportunité rare se présente pour les entreprises cherchant à s'établir dans un cadre dynamique : deux plateaux de bureaux, proposés par IMMPROVE, sont désormais à vendre. Avec une superficie totale de 1 240 m², ces espaces modulables, divisibles à partir de 210 m², se distinguent par leur capacité à s'adapter aux besoins spécifiques de chaque activité. Confort et fonctionnalité sont au rendez-vous, offrant un cadre de travail optimal. Situés dans un secteur stratégique, ces locaux constituent un investissement de choix pour les entreprises en quête de croissance et de visibilité.
| Étage | Type | Surfaces | Dispo | Prix(m²) | Charges | Honoraires | Fiscal |
|---|---|---|---|---|---|---|---|
| 1 | Bureaux | 950 | Immédiate | 3368,42 m² HD | 31 m²/an HT | 5% HT du prix de vente HD à la charge de l'acquéreur | Droits d'enregistrement |
| 1 | Bureaux | 210 | Immédiate | 4285,71 m² HD | 31 m²/an HT | 5% HT du prix de vente HD à la charge de l'acquéreur | Droits d'enregistrement |
| 1SS | Cave | 80 | Immédiate | n.c. | n.c. | 5% HT du prix de vente HD à la charge de l'acquéreur | Droits d'enregistrement |
| Parkings | Immédiate | n.c. | n.c. | 5% HT du prix de vente HD à la charge de l'acquéreur | Droits d'enregistrement |
Impôt Foncier : 19,2 €/
Régime Fiscal : Droits d'enregistrement
Honoraires : 5% HT du prix de vente HD à la charge de l'acquéreur
Prestations :
- ERP : 5ème catégorie
- Immeuble restructuré
- Parties communes de qualité
- Accès sécurisé
- Fibre optique
- Accueil
- Espace ouvert
- Bureaux cloisonnés
- Salle de réunion
- Espace détente
- Sanitaires privatifs
- belle hauteur sous plafond
- Locaux traversants
- Double exposition
- Décloisonnement possible
- Locaux rationnels et modulables
- Terrasse privative
- Béton ciré
- Possibilité de normes ERP
- Chauffage CPU (lot n°1)
- Chauffage individuel (lot n°2)
- Charge au sol : 500 kgs / m²
Accessibilité:
Bus Jules Vanzuppe (BUS-325), Jules Vanzuppe (BUS-125), Victor Hugo-Bretagne (BUS-25)
RER IVRY-SUR-SEINE (RER C)
Route Quai d'Ivry à 9 minutes en voiture
Route Départementale D19
Autoroute Boulevard Périphérique: 10 minutes de la Sortie Quai d'Ivry
Autoroute A4 / A6
Transilien Ivry-sur-Seine (TRAIN)
SNCF Ivry-sur-Seine (France)
Les informations sur les risques auxquels ce bien est exposé sont disponibles sur le site Géorisques : www.georisques.gouv.fr
Voir plus
Afficher les consommations énergétiques
Localisation et transport aux alentours
- Ivry-sur-Seine681m (10min à pied)C
- Avenue de France1km (15min à pied)3a
- Baron Le Roy1.2km (17min à pied)3a
- Mairie d'Ivry1.2km (17min à pied)7
- Pierre et Marie Curie1.4km (20min à pied)7
- Maryse Bastié1.4km (21min à pied)3a
Favoris
Exporter
Appeler
Contacter
Signaler cette annonce










