EVOLIS, votre partenaire en immobilier d’entreprise! Que vous soyez une entreprise, utilisateur de locaux professionnels, investisseur, ou propriétaire, EVOLIS met à votre service son expertise ...
En savoir plus

343 m²
GREEN PARK - Bureau à vendre - 343 m²
Bourgoin-Jallieu (38300)
Dernière mise à jour : Il y a 2 jours
Immeuble GREEN PARK
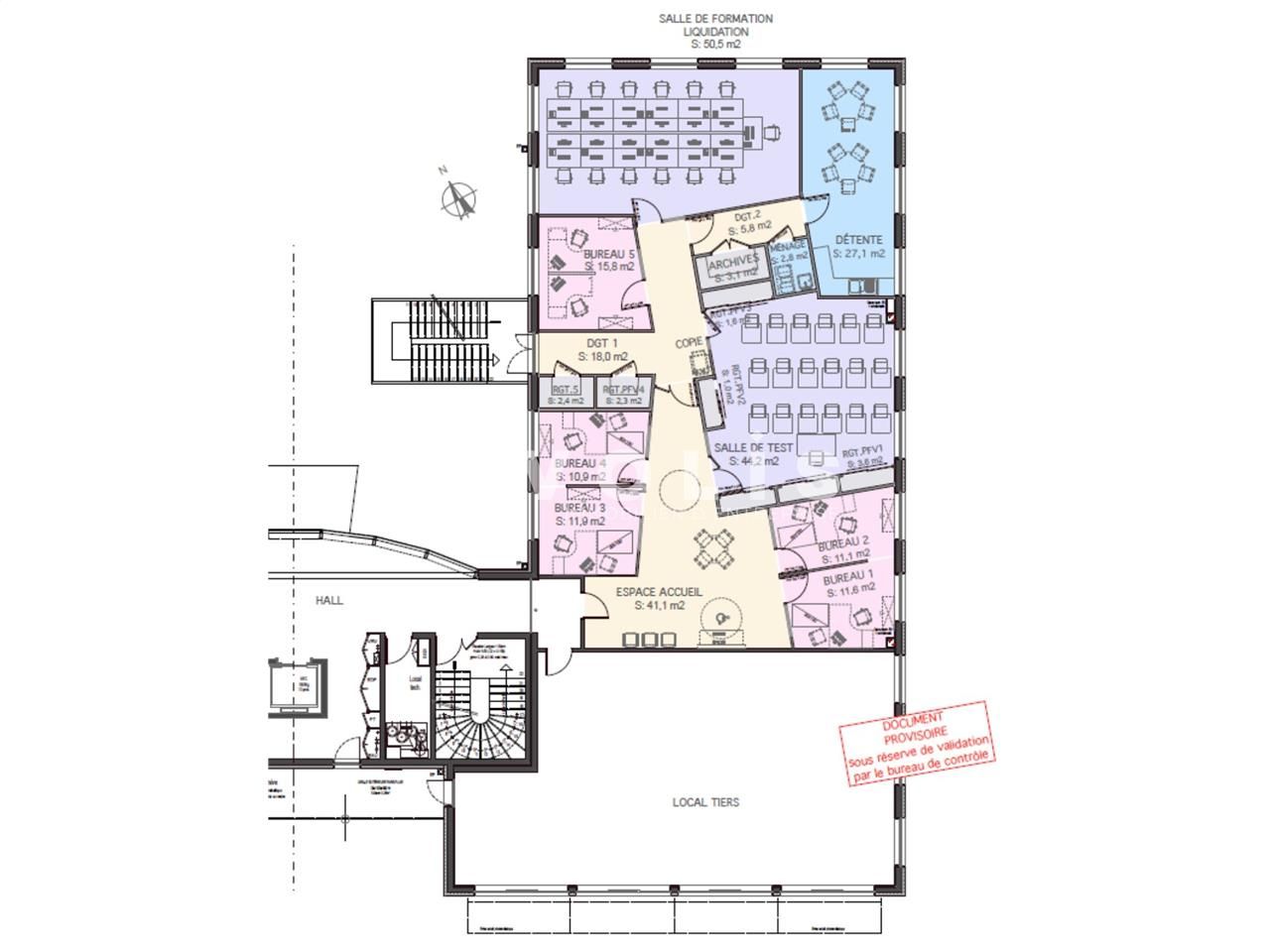
EVOLIS vous propose sur la commune de Bourgoin Jallieu un plateau de bureau situé au premier étage d'un bâtiment HQE.
D'une surface de 343,12 m² parties de communes incluses, ce plateau de bureaux est accompagné de 9 places de parking.
Bus, gare TER et commodités commerciales à toute proximité. Disponible immédiate, venez vite le visiter!
Impôt Foncier : 3868 €// an
Régime Fiscal : Droit d'enregistrement
Dépôt de garantie : 3 mois de loyer HT HC
Honoraires : 5% HT du prix de vente HD à la charge de l'acquéreur
Prestations :
Accessibilité:
Bus Ligne 76 Chassieu Lavoisier et ligne ZI5
SNCF TER Bourgoin Jallieu
Route Route départementale D1006
Route E711
Autoroute A43
Les informations sur les risques auxquels ce bien est exposé sont disponibles sur le site Géorisques : www.georisques.gouv.fr
EVOLIS vous propose sur la commune de Bourgoin Jallieu un plateau de bureau situé au premier étage d'un bâtiment HQE.
D'une surface de 343,12 m² parties de communes incluses, ce plateau de bureaux est accompagné de 9 places de parking.
Bus, gare TER et commodités commerciales à toute proximité. Disponible immédiate, venez vite le visiter!
| Étage | Type | Surfaces | Dispo | Prix(m²) | Charges | Honoraires | Fiscal |
|---|---|---|---|---|---|---|---|
| 1 | Bureaux | 343,12 | Immédiate | 2185,82 m² HD | n.c. | 5% HT du prix de vente HD à la charge de l'acquéreur | Droit d'enregistrement |
| Parkings | Immédiate | n.c. | n.c. | 5% HT du prix de vente HD à la charge de l'acquéreur | Droit d'enregistrement |
Impôt Foncier : 3868 €// an
Régime Fiscal : Droit d'enregistrement
Dépôt de garantie : 3 mois de loyer HT HC
Honoraires : 5% HT du prix de vente HD à la charge de l'acquéreur
Prestations :
- ERP : Catégorie non définie
- Immeuble récent (10 ans)
- Accès véhicules légers
- Accès PRM
- Parties commune de qualité
- Ascenseur PMR
- Contrôle d'accès
- Digicode
- Interphone
- Sas d'entrée
- Climatisation réversible 3 tubes
- Fibre optique
- Bon état
- Bureaux cloisonnés
- Salle de réunion
- Espace détente
- Local technique
- Cuisine
- Sanitaires dans les parties communes
- Bureaux:
- Locaux lumineux
- Décloisonnement possible
- Locaux rationnels et modulables
- Archives
- Faux plafonds
- Sol PVC
- Cloisonnement amovible
- Plinthes périphériques
- Câblage informatique et téléphonique
- Prises RJ45
- Triple vitrage avec stores intégrés
- Menuiseries mixtes bois et aluminium
- Locaux E.R.P.
Accessibilité:
Bus Ligne 76 Chassieu Lavoisier et ligne ZI5
SNCF TER Bourgoin Jallieu
Route Route départementale D1006
Route E711
Autoroute A43
Les informations sur les risques auxquels ce bien est exposé sont disponibles sur le site Géorisques : www.georisques.gouv.fr
Voir plus
Afficher les consommations énergétiques
Localisation et transport aux alentours
Favoris
Exporter
Appeler
Contacter
Signaler cette annonce
