fiu est une plateforme indépendante destinée à simplifier la recherche de bureaux en alliant parcours digital et conseil personnalisé.
En savoir plus

443 m²
Bureau à vendre - 443 m²
Boulogne-Billancourt (92100)
Dernière mise à jour : Il y a 2 jours
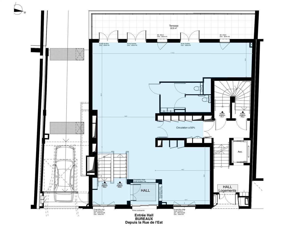
Bureaux à vendre . FAUBOURG 45 FAUBOURG 45
Découvrez cette offre à Boulogne-Billancourt , des surfaces de bureaux au sein d'un immeuble entièrement réhabilité et surélevé, offrant des prestations modernes et fonctionnelles.
DPE en cours de détermination.
Découvrez cette offre à Boulogne-Billancourt , des surfaces de bureaux au sein d'un immeuble entièrement réhabilité et surélevé, offrant des prestations modernes et fonctionnelles.
DPE en cours de détermination.
Afficher les consommations énergétiques
Favoris
Exporter
Appeler
Contacter
Signaler cette annonce
