Nous sommes Immprove, une grande équipe de plus de 200 experts en immobilier d’entreprise, implantés localement avec plus de 20 agences sur tout le territoire.Depuis 2009, notre proximité, notre ét ...
En savoir plus

1 236 m² divisible dès 123 m²
Bureau à vendre - 1236 m²
Asnières-sur-Seine (92600)
Dernière mise à jour : Il y a 10 jours
IMMPROVE vous propose des surfaces de bureaux entièrement rénovées, situées dans un immeuble équipé d'un restaurant inter-entreprises. Ces bureaux modernes offrent un cadre professionnel de qualité, avec l'avantage supplémentaire de services de restauration sur place pour plus de commodité.
Impôt Foncier : 27 €/m² /an HT
Taxe Bureau : 17,56 €/m²/an
Prestations :
Accessibilité:
Metro Gabriel Péri Asnières-Gennevilliers (13)
Bus Bus : 175 - 177 - 577 - 138 - 366 - N154
RER Les Grésillons (C)
Autoroute A86, A15, Périphérique
Les informations sur les risques auxquels ce bien est exposé sont disponibles sur le site Géorisques : www.georisques.gouv.fr
| Étage | Type | Surfaces | Dispo | Prix(m²) | Charges | Honoraires | Fiscal |
|---|---|---|---|---|---|---|---|
| 7 | Bureaux | 545 | Immédiate | 2600 m² HD | n.c. | ||
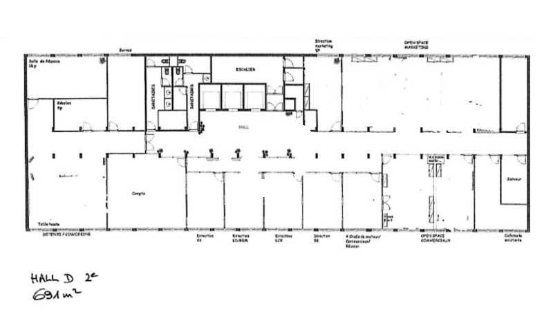
| 2 | Bureaux | 691 | Immédiate | 2500 m² HD | n.c. |
Impôt Foncier : 27 €/m² /an HT
Taxe Bureau : 17,56 €/m²/an
Prestations :
- Immeuble récent
- Ascenseur PMR
- Contrôle d'accès
- Télésurveillance
- Accès sécurisé par badge
- Chauffage immeuble gaz
- Air rafraichi
- Fibre optique
- Locaux en bon état
- Open space
- Climatisation partielle
- Locaux lumineux
- Faux plafonds
- Moquette
- Prises RJ45
- Fibre
Accessibilité:
Metro Gabriel Péri Asnières-Gennevilliers (13)
Bus Bus : 175 - 177 - 577 - 138 - 366 - N154
RER Les Grésillons (C)
Autoroute A86, A15, Périphérique
Les informations sur les risques auxquels ce bien est exposé sont disponibles sur le site Géorisques : www.georisques.gouv.fr
Voir plus
Afficher les consommations énergétiques
Favoris
Exporter
Appeler
Contacter
Signaler cette annonce
