Conseil en immobilier d'entreprise, Cushman & Wakefield est un acteur incontournable au rayonnement international. Cushman & Wakefield offre des solutions dans toutes les étapes que comporte un p ...
En savoir plus



1 772 m² divisible dès 350 m²
HT HC
L'ODYSSEY - Location bureau - 1772 m²
Vénissieux (69200)
Dernière mise à jour : Il y a 4 mois
Bureaux à louer Secteur Grand Parilly
Immeuble L'ODYSSEY
Cushman & Wakefield vous propose une offre de bureaux à Vénissieux (69200), au sein de l'immeuble de standing "L'Odyssée", idéalement situé au coeur du quartier en plein développement du Grand Parilly.
Ce bâtiment moderne et fonctionnel se distingue par la qualité de ses espaces de travail, lumineux et adaptés aux besoins des entreprises contemporaines.
"L'Odyssée" offre des prestations haut de gamme et dispose de terrasses sur tous les niveaux, permettant aux occupants de profiter de moments de détente en extérieur tout en travaillant dans un environnement agréable.
Grâce à sa proximité avec la station de métro ligne D et la ligne de tramway T4, l'immeuble bénéficie d'une excellente accessibilité, facilitant les déplacements et la connexion avec les autres quartiers de Lyon.
Ce lieu de travail représente une véritable opportunité pour les entreprises en quête d'un cadre professionnel moderne et bien desservi.
Impôt Foncier : 15 €//m²/an
Régime Fiscal : T.V.A.
Dépôt de garantie : 3 mois de loyer HT/HC
Paiement Loyer : Trimestriel
Honoraires : 15 % HT du loyer annuel HT/HC à la charge du preneur.
Prestations :
Accessibilité:
Métro Parilly (métro ligne D)
Tram Joliot Curie - Marcel Sembat (ligne T4)
SNCF Gare Part-Dieu via bus C25 ou T4
Bus Joliot Curie - Marcel Sembat (bus lignes 35 ou 79) ou Parilly (lignes C25, 26, 39 ou 79)
Les informations sur les risques auxquels ce bien est exposé sont disponibles sur le site Géorisques : www.georisques.gouv.fr
Immeuble L'ODYSSEY
Cushman & Wakefield vous propose une offre de bureaux à Vénissieux (69200), au sein de l'immeuble de standing "L'Odyssée", idéalement situé au coeur du quartier en plein développement du Grand Parilly.
Ce bâtiment moderne et fonctionnel se distingue par la qualité de ses espaces de travail, lumineux et adaptés aux besoins des entreprises contemporaines.
"L'Odyssée" offre des prestations haut de gamme et dispose de terrasses sur tous les niveaux, permettant aux occupants de profiter de moments de détente en extérieur tout en travaillant dans un environnement agréable.
Grâce à sa proximité avec la station de métro ligne D et la ligne de tramway T4, l'immeuble bénéficie d'une excellente accessibilité, facilitant les déplacements et la connexion avec les autres quartiers de Lyon.
Ce lieu de travail représente une véritable opportunité pour les entreprises en quête d'un cadre professionnel moderne et bien desservi.
| Étage | Type | Surfaces | Dispo | Loyer | Charges | Type de bailRév. annuelle |
|---|---|---|---|---|---|---|
| R+5 | Bureaux | 350 | 180 HT/HC/m²/an | 20 HT/m²/an | 3-6-9 ansSur l'indice ILAT | |
| R+3 | Bureaux | 713 | 180 HT/HC/m²/an | 20 HT/m²/an | 6-9 ansSur l'indice ILAT | |
| R+2 | Bureaux | 709 | 180 HT/HC/m²/an | 20 HT/m²/an | 6-9 ansSur l'indice ILAT | |
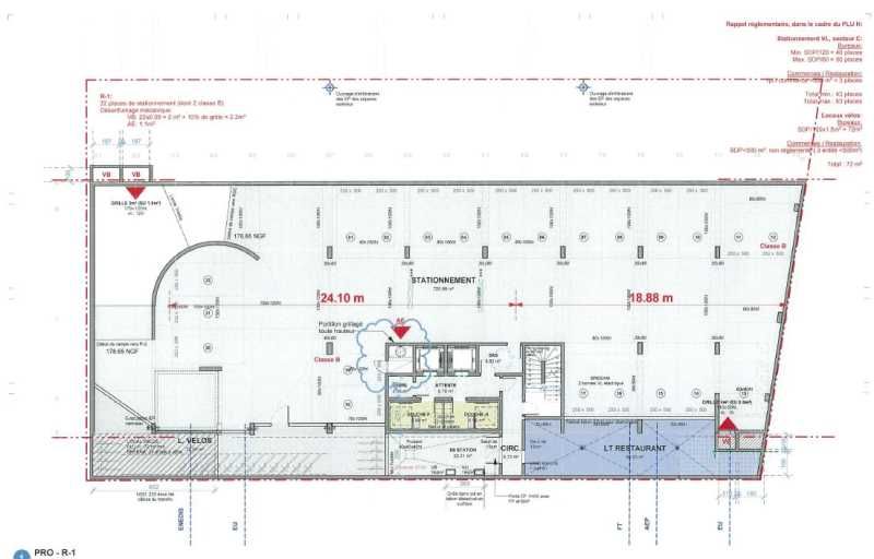
| SS | Parkings | 1200 HT/HC/U/an | 3-6-9 ansSur l'indice ILAT |
Impôt Foncier : 15 €//m²/an
Régime Fiscal : T.V.A.
Dépôt de garantie : 3 mois de loyer HT/HC
Paiement Loyer : Trimestriel
Honoraires : 15 % HT du loyer annuel HT/HC à la charge du preneur.
Prestations :
- Parking en sous-sol
- Local vélos
- Chauffage urbain / Climatisation 4 tubes
- Hauteur sous faux plafond : 1.70 m
- Trame 1.35 m
- Faux plancher
- Eclairage led
- Sol moquette
- Local douche en sous sol
- Local vélos en sous sol
- Sanitaires en parties communes
- Certification Bream Excellent
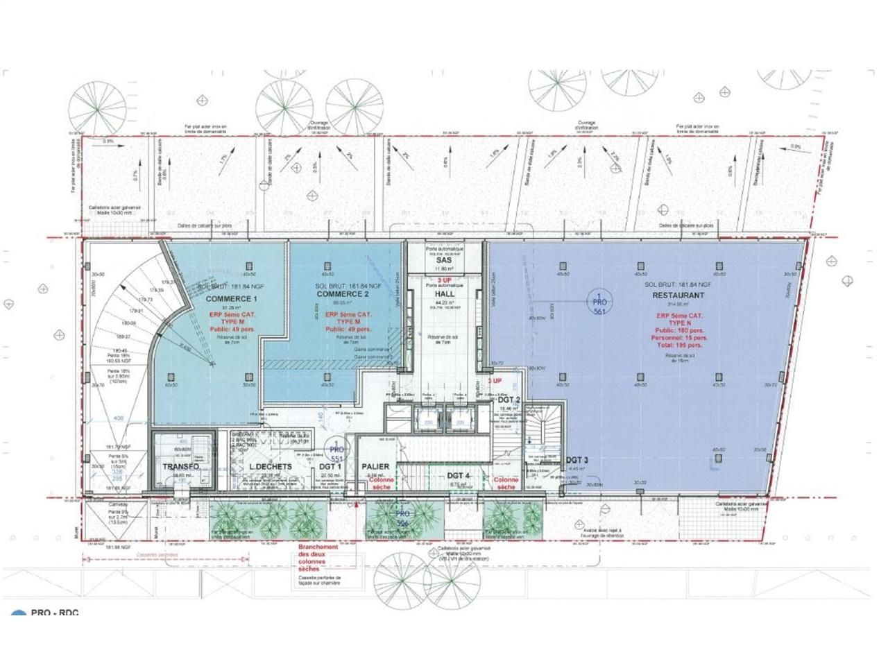
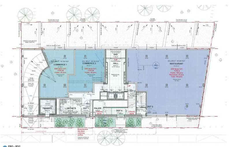
- Restaurant au RDC de l'immeuble
- Surface RDC : 0 m²
Accessibilité:
Métro Parilly (métro ligne D)
Tram Joliot Curie - Marcel Sembat (ligne T4)
SNCF Gare Part-Dieu via bus C25 ou T4
Bus Joliot Curie - Marcel Sembat (bus lignes 35 ou 79) ou Parilly (lignes C25, 26, 39 ou 79)
Les informations sur les risques auxquels ce bien est exposé sont disponibles sur le site Géorisques : www.georisques.gouv.fr
Emplacement(s) de Parking: 44 places
Voir plus
Afficher les consommations énergétiques
Localisation et transport aux alentours
Favoris
Exporter
Appeler
Contacter
Signaler cette annonce










