Nous sommes Immprove, une grande équipe de plus de 200 experts en immobilier d’entreprise, implantés localement avec plus de 20 agences sur tout le territoire.Depuis 2009, notre proximité, notre ét ...
En savoir plus

1 199 m² divisible dès 113 m²
HT HC
Location bureau - 1199 m²
Malakoff (92240)
Dernière mise à jour : Il y a 19 jours
BUREAUX ESPRIT INDUSTRIELS PROCHE METRO !
IMMPROVE vous propose dans le centre ville de Malakoff, dans un ensemble immobilier entièrement restructuré, divisé en 3 parties articulé autour d'une cour commune, des surfaces de bureaux atypiques avec de très beaux volumes, et une très belle hauteur sous plafond.
L'immeuble principal composé de 4 niveaux, proposent diverses surfaces de bureaux, rénovées dans un esprit industriel entre les briques et le bois.
De grandes huisseries baignant toutes les surfaces d'une très belle lumière naturelle. Toutes les installations techniques de l'immeuble sont adaptées aux standards du marché (Ascenseur, ventilation double flux, climatisation, plomberie, désenfumage .)
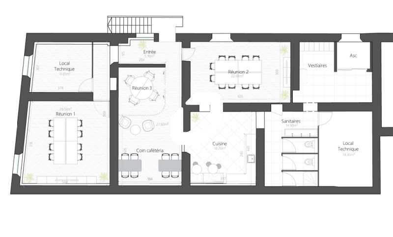
Une partie en sous-sol sera aménagée en espaces communs partagés et tous équipés en salles de réunion, vestiaires, sanitaires et une cuisine entièrement aménagée ..
Le 3ème étage bénéficie d'une belle terrasse privative avec une vue dégagée. Les étages bas, des balcons.
Dans cet ensemble immobilier, une halle avec verrières et mezzanine à ne pas louper car très rare sur le marché !
L'immeuble se trouve non loin de la rue principale de Malakoff avec ses nombreux commerces de proximité, et à moins de 10 minutes à pied du métro ligne 13.
Impôt Foncier : 23 €//m²/an HT
Honoraires : 15% HT du loyer annuel HT HC à la charge du preneur
Taxe Bureau : 21 €/m²/an
Information sur le Bail :
Assurance immeuble : 2 euros HT / m²/ an à la charge du preneur
Prestations :
Accessibilité:
Bus Bus 191,126
Metro Malakoff Plateau de Vanves (13)
Metro Malakoff Rue Etienne Dolet (13)
Les informations sur les risques auxquels ce bien est exposé sont disponibles sur le site Géorisques : www.georisques.gouv.fr
IMMPROVE vous propose dans le centre ville de Malakoff, dans un ensemble immobilier entièrement restructuré, divisé en 3 parties articulé autour d'une cour commune, des surfaces de bureaux atypiques avec de très beaux volumes, et une très belle hauteur sous plafond.
L'immeuble principal composé de 4 niveaux, proposent diverses surfaces de bureaux, rénovées dans un esprit industriel entre les briques et le bois.
De grandes huisseries baignant toutes les surfaces d'une très belle lumière naturelle. Toutes les installations techniques de l'immeuble sont adaptées aux standards du marché (Ascenseur, ventilation double flux, climatisation, plomberie, désenfumage .)
Une partie en sous-sol sera aménagée en espaces communs partagés et tous équipés en salles de réunion, vestiaires, sanitaires et une cuisine entièrement aménagée ..
Le 3ème étage bénéficie d'une belle terrasse privative avec une vue dégagée. Les étages bas, des balcons.
Dans cet ensemble immobilier, une halle avec verrières et mezzanine à ne pas louper car très rare sur le marché !
L'immeuble se trouve non loin de la rue principale de Malakoff avec ses nombreux commerces de proximité, et à moins de 10 minutes à pied du métro ligne 13.
| Étage | Type | Surfaces | Dispo | Loyer | Charges | Type de bailRév. annuelle |
|---|---|---|---|---|---|---|
| Duplex | Bureaux | 93 | Immédiate | 267 m²/an HT HC | 20 m²/an HT | Bail Commercial 3-6-9 ans |
| RDC | Bureaux | 20 | Immédiate | 267 m²/an HT HC | 20 m²/an HT | Bail Commercial 3-6-9 ans |
| 2 | Bureaux | 82 | Immédiate | 267 m²/an HT HC | 20 m²/an HT | Bail Commercial 3-6-9 ans |
| 2 | Bureaux | 19 | Immédiate | 267 m²/an HT HC | 20 m²/an HT | Bail Commercial 3-6-9 ans |
| 2 | Bureaux | 19 | Immédiate | 267 m²/an HT HC | 20 m²/an HT | Bail Commercial 3-6-9 ans |
| Etage | Bureaux | 62,8 | Immédiate | 287 m²/an HT HC | 20 m²/an HT | Bail Commercial 3-6-9 ans |
| MEZ | Bureaux | 23 | Immédiate | 287 m²/an HT HC | 20 m²/an HT | Bail Commercial 3-6-9 ans |
| RDC | Activités | 229,8 | Immédiate | 287 m²/an HT HC | 20 m²/an HT | Bail Commercial 3-6-9 ans |
| 1SS | Show Room | 136 | Immédiate | 130 m²/an HT HC | 20 m²/an HT | Bail Commercial 3-6-9 ans |
| 1 | Bureaux | 238 | Immédiate | 277 m²/an HT HC | 20 m²/an HT | Bail Commercial 3-6-9 ans |
| 1 | Bureaux | 79 | Immédiate | 277 m²/an HT HC | 20 m²/an HT | Bail Commercial 3-6-9 ans |
| 3 | Bureaux | 197 | Immédiate | 317 m²/an HT HC | 20 m²/an HT | Bail Commercial 3-6-9 ans |
Impôt Foncier : 23 €//m²/an HT
Honoraires : 15% HT du loyer annuel HT HC à la charge du preneur
Taxe Bureau : 21 €/m²/an
Information sur le Bail :
Assurance immeuble : 2 euros HT / m²/ an à la charge du preneur
Prestations :
- Immeuble récent
- Bâtiment indépendant
- Site clos
- Digicode
- Portail d'accès
- Parties communes de qualité
- Accès véhicules légers
- Site sécurisé 24h/24h
- Climatisation réversible
- Immeuble divisé en 3 parties : Bâtiment principal, extension et Halle de type industriel
- Restructuration globale du bâtiment et mise aux standards du marché.
- PARTIE HALLE :
- Bâtiment de type industriel
- très belle hauteur sous plafond
- Vérriere neuve et extrement lumineuse
- Mezzanine climatisée
- PARTIE BATIMENT PRINCIPAL :
- Asenseur PMR desservant tous les niveaux
- Hall d'entrée avec escalier catédrale desservant les 3 niveaux
- Sanitaires en parties communes sur chaque palier
- Climatisation réversible (installation des terminaux à prévoir)
- livrés en open space et brut
- PARTIES SOUS SOL :
- Espaces communs avec salles de réunions, sanitaires, et vestiaires.
- Travaux à prévoir : Revetements sols / Courants forts et faibles / terminaux élec et clim / stores / luminaires
- Surface RDC : 249,8 m²
Accessibilité:
Bus Bus 191,126
Metro Malakoff Plateau de Vanves (13)
Metro Malakoff Rue Etienne Dolet (13)
Les informations sur les risques auxquels ce bien est exposé sont disponibles sur le site Géorisques : www.georisques.gouv.fr
Voir plus
Afficher les consommations énergétiques
Localisation et transport aux alentours
Favoris
Exporter
Appeler
Contacter
Signaler cette annonce
