Conseil en immobilier d'entreprise, Cushman & Wakefield est un acteur incontournable au rayonnement international. Cushman & Wakefield offre des solutions dans toutes les étapes que comporte un p ...
En savoir plus

385 m²
HT HC
LE RIVAY - Location bureau - 385 m²
Levallois-Perret (92300)
Dernière mise à jour : Il y a 2 jours
Sous-location flexible
Immeuble LE RIVAY
Bureaux à sous-louer - Levallois-Perret
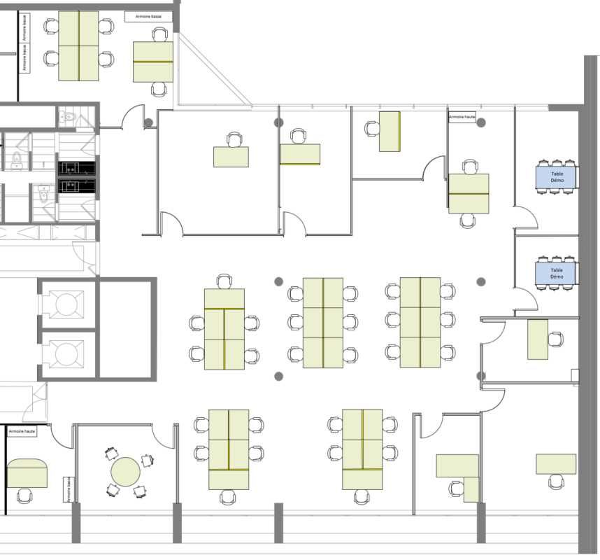
Cushman & Wakefield vous propose à la sous-location une surface de bureaux de 385 m² située au 6e étage d'un immeuble de bon standing, à proximité immédiate du métro Pont de Levallois-Bécon (ligne 3) et desservie par plusieurs lignes de bus.
Ces bureaux lumineux, sont entièrement Plug & Play. Ils sont aménagés avec du mobilier intégré, des espaces cloisonnés, un balcon, du câblage électrique, une climatisation réversible, et la possibilité d'y installer une cuisine. L'accès à l'immeuble est sécurisé par badge, et le hall d'accueil dispose d'une hôtesse.
L'immeuble propose des services qualitatifs : cafétéria avec frigos connectés, auditorium, salle de réunion, et parking en sous-sol équipé de bornes électriques. Cinq places de stationnement sont disponibles, dont des emplacements pour motos.
N'hésitez pas à nous contacter pour organiser une visite et découvrir cette surface idéale pour accueillir vos équipes dans un cadre fonctionnel et agréable à Levallois.
Impôt Foncier : 33,16 €/
Régime Fiscal : T.V.A.
Dépôt de garantie : 3 mois de loyer HT/HC
Paiement Loyer : Trimestriel
Honoraires : à la charge du preneur
Taxe Bureau : 22,38 €/m²/an
Information sur le Bail :
- Charges annuelles privatives et services obligatoires (2024) : 82 euros HT/m²/an (Electricité 35 euros - Surveillance 36 euros - Accueil/standard 11 euros ) Charges optionnelles /m²/HT : cafétéria 23 euros - nettoyage 33 euros - Courrier 12 euros - Tri sélectif : sur demande) Sous-location possible jusqu'au 30/06/2028, pour une durée minimale de 12 mois et maximale de 36 mois
Prestations :
Accessibilité:
Métro Pont de Levallois-Bécon (ligne 3) à 400 m
Bus Lignes 53-165
Les informations sur les risques auxquels ce bien est exposé sont disponibles sur le site Géorisques : www.georisques.gouv.fr
Immeuble LE RIVAY
Bureaux à sous-louer - Levallois-Perret
Cushman & Wakefield vous propose à la sous-location une surface de bureaux de 385 m² située au 6e étage d'un immeuble de bon standing, à proximité immédiate du métro Pont de Levallois-Bécon (ligne 3) et desservie par plusieurs lignes de bus.
Ces bureaux lumineux, sont entièrement Plug & Play. Ils sont aménagés avec du mobilier intégré, des espaces cloisonnés, un balcon, du câblage électrique, une climatisation réversible, et la possibilité d'y installer une cuisine. L'accès à l'immeuble est sécurisé par badge, et le hall d'accueil dispose d'une hôtesse.
L'immeuble propose des services qualitatifs : cafétéria avec frigos connectés, auditorium, salle de réunion, et parking en sous-sol équipé de bornes électriques. Cinq places de stationnement sont disponibles, dont des emplacements pour motos.
N'hésitez pas à nous contacter pour organiser une visite et découvrir cette surface idéale pour accueillir vos équipes dans un cadre fonctionnel et agréable à Levallois.
| Étage | Type | Surfaces | Dispo | Loyer | Charges | Type de bailRév. annuelle |
|---|---|---|---|---|---|---|
| 5 | Bureaux | 384,9 | 300 HT/HC/m²/an | 35 HT/m²/an | Sous locationSur l'indice ILAT | |
| SS | Parkings | 1200 HT/HC/place/an | Sous locationSur l'indice ILAT | |||
| Pkg Moto | Parkings | 500 HT/HC/place/an | Sous locationSur l'indice ILAT |
Impôt Foncier : 33,16 €/
Régime Fiscal : T.V.A.
Dépôt de garantie : 3 mois de loyer HT/HC
Paiement Loyer : Trimestriel
Honoraires : à la charge du preneur
Taxe Bureau : 22,38 €/m²/an
Information sur le Bail :
- Charges annuelles privatives et services obligatoires (2024) : 82 euros HT/m²/an (Electricité 35 euros - Surveillance 36 euros - Accueil/standard 11 euros ) Charges optionnelles /m²/HT : cafétéria 23 euros - nettoyage 33 euros - Courrier 12 euros - Tri sélectif : sur demande) Sous-location possible jusqu'au 30/06/2028, pour une durée minimale de 12 mois et maximale de 36 mois
Prestations :
- Immeuble rénové de bon standing
- Hall d'entrée
- Hôtesse d'accueil
- Cafétéria
- Frigos connectés
- Ascenseur
- Auditorium
- Salle de réunion
- Accès sécurisé par badge
- Parking en sous-sol avec bornes électriques
- 5ème étage :
- Surface meublée équipée et en état d'usage
- 6ème étage :
- Surface rénovée lumineuse, Plug & Play
- Climatisation réversible
- Cloisonnement
- Balcon
- Câblage électrique
- Mobilier intégré
- Possibilité de mettre une cuisine
Accessibilité:
Métro Pont de Levallois-Bécon (ligne 3) à 400 m
Bus Lignes 53-165
Les informations sur les risques auxquels ce bien est exposé sont disponibles sur le site Géorisques : www.georisques.gouv.fr
Voir plus
Afficher les consommations énergétiques
Localisation et transport aux alentours
Favoris
Exporter
Appeler
Contacter
Signaler cette annonce
