Depuis 2003, KEOPS Toulouse accompagne les entreprises dans leurs projets immobiliers sur toute l’aire urbaine toulousaine.Notre équipe de professionnels passionnés met à votre service sa connaissa ...
En savoir plus

1 203 m²
Activité/Entrepôt à vendre - 1203 m²
Auterive (31190)
Dernière mise à jour : Hier
Idéal investisseur, bâtiment d'activités loué, à vendre, situé au sud de Toulouse
Accès : par route d'Espagne Par A64
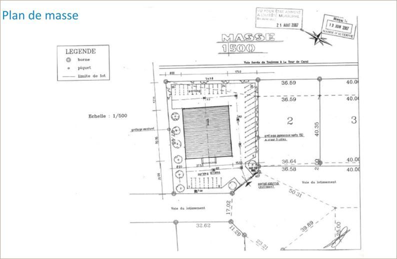
Sur un terrain de 3 432 m², bâtiment d'activités d'une surface de 1 203 m²Une partie bureaux de 900 m² environBureaux climatisés et câblésSalle de réunion, réfectoire, vestiaires, sanitairesUne partie dépôt de 300 m² environ avec porte sectionnelle électrique, dalle béton quartzBâtiment type structure métallique, bardage double peauConstruction de 2008/2011
Accès : par route d'Espagne Par A64
Sur un terrain de 3 432 m², bâtiment d'activités d'une surface de 1 203 m²Une partie bureaux de 900 m² environBureaux climatisés et câblésSalle de réunion, réfectoire, vestiaires, sanitairesUne partie dépôt de 300 m² environ avec porte sectionnelle électrique, dalle béton quartzBâtiment type structure métallique, bardage double peauConstruction de 2008/2011
Voir plus
Afficher les consommations énergétiques
Localisation et transport aux alentours
Favoris
Exporter
Appeler
Contacter
Signaler cette annonce
