MALSH Realty accompagne les entreprises dans leurs projets immobiliers, qu’il s’agisse de locaux d’activités, de bureaux, de commerces, d’entrepôts ou de terrains. L’agence intervient aussi bien au ...
En savoir plus

1 150 m² divisible dès 150 m²
Prix sur demande
Activité/Entrepôt à vendre - 1150 m²
Corbas (69960)
Dernière mise à jour : Il y a 3 jours
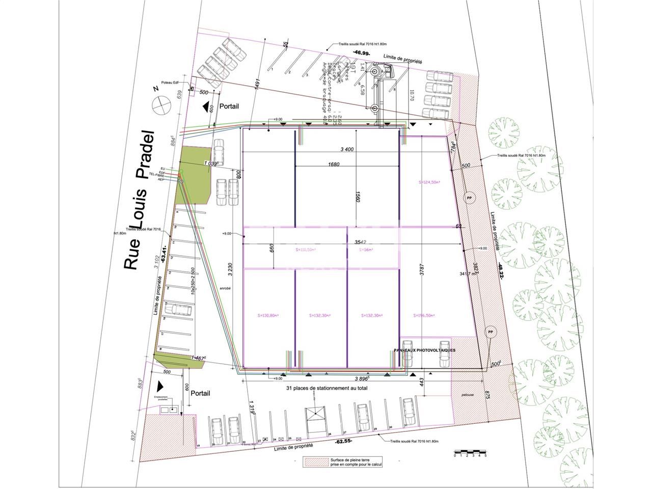
Bâtiment clé en main de 1 150 m² divisibles à partir de 150 m² sur un foncier de 2 978 m² à CORBAS - A VENDRE OU A LOUER
Sur un foncier de 2 978 m², nous vous proposons à la vente en VEFA ou à la location en BEFA, un bâtiment clé en main d'une surface totale d'environ 1 150 m² divisibles à partir de 150 m². Possibilité de travaux sur mesure ou d'adapter les cellules.
Livré brut et si location les bureaux seront aménagés en plateau.
Location ou Vente - Corbas (69960) - Bâtiment clé en main de 1 150 m² divisibles à partir de 150 m² sur un foncier de 2 978 m²
Régime Fiscal : TVA
Dépôt de garantie : 3 mois de loyer HT/HC
Honoraires : 5 % HT du prix de vente HT, à la charge de l'acquéreur, payables à la signature de l'acte
Prestations :
Accessibilité:
Route A proximité immédiate du Boulevard Urbain Sud et de la Rocade Est (A46)
Bus Bus TCL lignes 76, 87 et Zi1
Les informations sur les risques auxquels ce bien est exposé sont disponibles sur le site Géorisques : www.georisques.gouv.fr
Sur un foncier de 2 978 m², nous vous proposons à la vente en VEFA ou à la location en BEFA, un bâtiment clé en main d'une surface totale d'environ 1 150 m² divisibles à partir de 150 m². Possibilité de travaux sur mesure ou d'adapter les cellules.
Livré brut et si location les bureaux seront aménagés en plateau.
Location ou Vente - Corbas (69960) - Bâtiment clé en main de 1 150 m² divisibles à partir de 150 m² sur un foncier de 2 978 m²
| Étage | Type | Surfaces | Dispo | Prix(m²) | Charges | Honoraires | Fiscal |
|---|---|---|---|---|---|---|---|
| Activités | 1150 | Livraison Nous consulter | n.c. | n.c. | 5 % HT du prix de vente HT, à la charge de l'acquéreur, payables à la signature de l'acte | TVA |
Régime Fiscal : TVA
Dépôt de garantie : 3 mois de loyer HT/HC
Honoraires : 5 % HT du prix de vente HT, à la charge de l'acquéreur, payables à la signature de l'acte
Prestations :
- 31 places de stationnement
- Possibilité de travaux sur mesure ou d'adapter les cellules.
- Livré brut et si location les bureaux seront aménagés en plateau.
- Surface terrain : 2978
Accessibilité:
Route A proximité immédiate du Boulevard Urbain Sud et de la Rocade Est (A46)
Bus Bus TCL lignes 76, 87 et Zi1
Les informations sur les risques auxquels ce bien est exposé sont disponibles sur le site Géorisques : www.georisques.gouv.fr
Voir plus
Afficher les consommations énergétiques
Localisation et transport aux alentours
Favoris
Exporter
Appeler
Contacter
Signaler cette annonce
