Société de conseil immobilier implantée sur Lyon et Paris, Sorovim accompagne particuliers et professionnels dans leurs projets de vente, d’acquisition, d’investissement et d’estimation de bien.Sor ...
En savoir plus

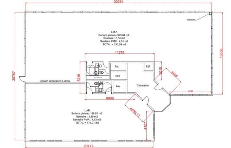
508 m² divisible dès 177 m²
LE SAINT NICOLAS - Bureau à vendre - 508 m²
Villeurbanne (69100)
Dernière mise à jour : Il y a 7 mois
VILLEURBANNE /GRANDCLEMENT : Bureaux A VENDRE entièrement rénovés de 508 m², divisibles à partir de 177 m²,
Immeuble LE SAINT NICOLAS
VILLEURBANNE /GRANDCLEMENT : des bureaux entièrement rénovés de 508 m², divisibles à partir de 177 m², au sien d'un immeuble tertiaire indépendant, donnant sur un jardin commun sont disponibles à l'acquisition.
Environnement calme, bien desservi par les transports, avec de nombreux parkings
Impôt Foncier : 21 €/HT/ m² /an
Régime Fiscal : Droits d'enregistrement et TVA sur marge
Dépôt de garantie : 3 mois de loyer HT HC
Honoraires : 3% HT du prix de vente HT HD, en sus, à la charge de l'acquéreur
Information sur le Bail :
Loyer parking compris
Prestations :
Accessibilité:
Route Cours Tolstoï, rue Léon Blum, Boulevard Périphérique à 5 minutes
Bus Lignes C3, C11 et C26
Tram T3 Gare Part-Dieu/Meyzieu : Station "Reconnaissance-Balzac"
Les informations sur les risques auxquels ce bien est exposé sont disponibles sur le site Géorisques : www.georisques.gouv.fr
Immeuble LE SAINT NICOLAS
VILLEURBANNE /GRANDCLEMENT : des bureaux entièrement rénovés de 508 m², divisibles à partir de 177 m², au sien d'un immeuble tertiaire indépendant, donnant sur un jardin commun sont disponibles à l'acquisition.
Environnement calme, bien desservi par les transports, avec de nombreux parkings
| Étage | Type | Surfaces | Dispo | Prix(m²) | Charges | Honoraires | Fiscal |
|---|---|---|---|---|---|---|---|
| 3 | Bureaux | 331 | 2400 HD/m² | n.c. | 3% HT du prix de vente HT HD, en sus, à la charge de l'acquéreur | Droits d'enregistrement et TVA sur marge | |
| 3 | Bureaux | 177 | 2400 HD/m² | n.c. | 3% HT du prix de vente HT HD, en sus, à la charge de l'acquéreur | Droits d'enregistrement et TVA sur marge |
Impôt Foncier : 21 €/HT/ m² /an
Régime Fiscal : Droits d'enregistrement et TVA sur marge
Dépôt de garantie : 3 mois de loyer HT HC
Honoraires : 3% HT du prix de vente HT HD, en sus, à la charge de l'acquéreur
Information sur le Bail :
Loyer parking compris
Prestations :
- Immeuble tertiaire, de 1989, indépendant en fond de cour
- Ascenseur, interphone
- 2 lots de copropriété réunis
- 2 portes d'entrée par les parties communes
- 2 issues de secours
- Bureaux livrés rénovés, décloisonnés
- Chauffage émétique et groupe froid pour la climatisation par ventilo convecteur
- Double vitrage
- Faux plafonds techniques
- Sol dalle moquette
- Plinthes périphériques
- Sanitaires privatifs
- Jardin en copropriété
- 14 places de parking en sous-sol
- Local vélos
- Servitude de passage pour accéder à l'immeuble (passerelle)
- Immeuble indépendant
Accessibilité:
Route Cours Tolstoï, rue Léon Blum, Boulevard Périphérique à 5 minutes
Bus Lignes C3, C11 et C26
Tram T3 Gare Part-Dieu/Meyzieu : Station "Reconnaissance-Balzac"
Les informations sur les risques auxquels ce bien est exposé sont disponibles sur le site Géorisques : www.georisques.gouv.fr
Voir plus
Afficher les consommations énergétiques
Localisation et transport aux alentours
- Gare de Villeurbanne501m (8min à pied)3
Favoris
Exporter
Appeler
Contacter
Signaler cette annonce
