Leader mondial des services dédiés à l'immobilier d'entreprise, Cushman & Wakefield accompagne ses clients dans la transformation de leurs modes de travail, de consommation et de vie. Nos 43 000 co ...
En savoir plus



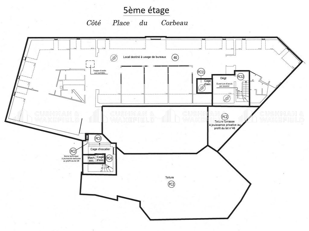
298 m²
Bureau à vendre - 298 m²
Strasbourg (67000)
Dernière mise à jour : Il y a 3 jours
Bureaux au 5ème étage d'un bel immeuble d'angel de centre ville. Immeuble tertiaire, proche de la Cathédrale, situation géographique exceptionnelle - excellente visibilité. Ascenseur dans l'immeuble et commerces en rez-de-chaussée. Strasbourg, capitale de l''Europe et de l''Alsace, possède un patrimoine historique et architectural qui en fait la ville la plus riche de la Région Grand Est. Le centre-ville de Strasbourg, le coeur historique et géographique de la ville de Strasbourg, ainsi que la Neustadt font partie du patrimoine mondial de l''UNESCO. Métropole de près de 530 000 habitants dont plus de la moitié sont strasbourgeois, Strasbourg dispose de l''ensemble des services, commerces, facultés, écoles et moyens de transport (TGV en coeur de ville), lui conférant son statut de ville ou il fait très bon vivre. Bureaux à vendre, au sein d'un immeuble tertiaire, proche de la Cathédrale et de l'hyper centre. Situation géographique exceptionnelle. Bel immeuble d'angle, excellente visibilité. Ascenseur dans l'immeuble et commerces en rez-de-chaussée. Le département Bureaux & Investissement de Cushman & Wakefield Strasbourg est à votre entière disposition pour vous apporter plus de précisions concernant ces bureaux à louer au centre-ville de Strasbourg. N'hésitez plus, contactez-nous ! . Moquettes antistatiques en dalles interchangeables, revêtement mural en toile de verre peinte ou crepis . Plafonds en dalle incorporant les luminaires . Plinthes techniques avec courants faibles et forts . Chauffage / climatisation par ventilo convecteurs réversibles en alléges ou bouches en plafond . Sanitaires privatifs . Ascenseur Locaux cloisonnés Possibilité de caves en sous-sol : conditions à confirmer Bus : lignes 10, 14 et 24 arrêt Porte de l'Hôpital Tram : Lignes A et D arrêt Porte de l'Hôpital Accès routier : Autoroute sortie Place de l'Etoile
Voir plus
Afficher les consommations énergétiques
Localisation et transport aux alentours
Favoris
Exporter
Appeler
Contacter
Signaler cette annonce
