Leader mondial des services dédiés à l'immobilier d'entreprise, Cushman & Wakefield accompagne ses clients dans la transformation de leurs modes de travail, de consommation et de vie. Nos 43 000 co ...
En savoir plus



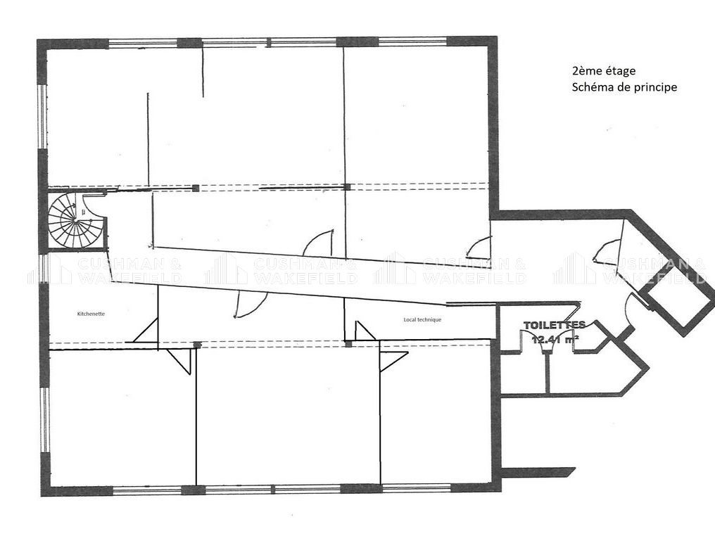
260 m²
Bureau à vendre - 260 m²
Strasbourg (67000)
Dernière mise à jour : Il y a 3 jours
Plateau de bureaux à vendre, au sein d'un immeuble de bureaux situé sur l'axe commercial de Strasbourg Poteries. Plateau de bureaux à vendre, au sein d'un immeuble de bureaux situé sur l'axe commercial de Strasbourg Poteries. Le Parc des Poteries est situé à Strasbourg, dans le quartier du même nom bordé au nord par l'autoroute A351 et situé entre Eckbolsheim à l'ouest et au sud et le quartier de Koenigshoffen à l'est, à proximité du quartier de Hautepierre et de la zone commerciale des Poteries Le département Bureaux & Investissement de Cushman & Wakefield Strasbourg est à votre entière disposition pour vous apporter plus de précisions concernant ces bureaux N'hésitez plus, contactez-nous ! . Sol parquet, murs peints . Faux plafonds avec luminaires . Double vitrage . Sanitaires Hommes / femmes . Cloisonnement en cloisons modulaires . Chauffage et climatisation réversibles (cassettres en plafond) Ascenseur desservant l'ensemble des niveaux La surface est actuellement organisée en 2 lots de respectivement 127 et 133 m². Chacun étant cloisonné 4 parkings extérieurs et 2 parkings en sous-sol Tram : ligne f Bus : ligne 70 Accès routier : A351 sortie Eckbolsheim ou Hautepierre
Voir plus
Afficher les consommations énergétiques
Localisation et transport aux alentours
- Paul Éluard281m (4min à pied)D
- Marcel Rudloff312m (5min à pied)D
Favoris
Exporter
Appeler
Contacter
Signaler cette annonce










